這座房子是基於一個經典的瑞典房子的想法,以當地天然石材、木框架和木立麵為堅實基礎,簡單的山牆屋頂帶有可見的山牆圖案。該建築應被解讀為對位於神奇森林山丘上的傳統房屋的現代詮釋。
由於地塊有一定的限製尺寸和相對複雜的地麵條件,在此基礎上的草圖過程力求找到最佳位置,同時利用這些條件賦予房屋和地塊以自己的特點。該建築的設計基於方向和日照條件,但也盡可能地保護了該場地今天所具有的自然場地品質,包括可見的山脈、莊嚴的鬆樹和未受破壞的森林斜坡。
通過擬議的布置,盡可能避免爆破和土方工程,並且由於該物業在同一自然特征的兩側與公地接壤,感覺這是一種使該地點從屬的方式。地基的牆壁是用磚砌成,它們之間的空間使森林能夠在房子下麵和旁邊自由生長。凸起的露台實現並強化了這種姿態。
∇ 區位圖
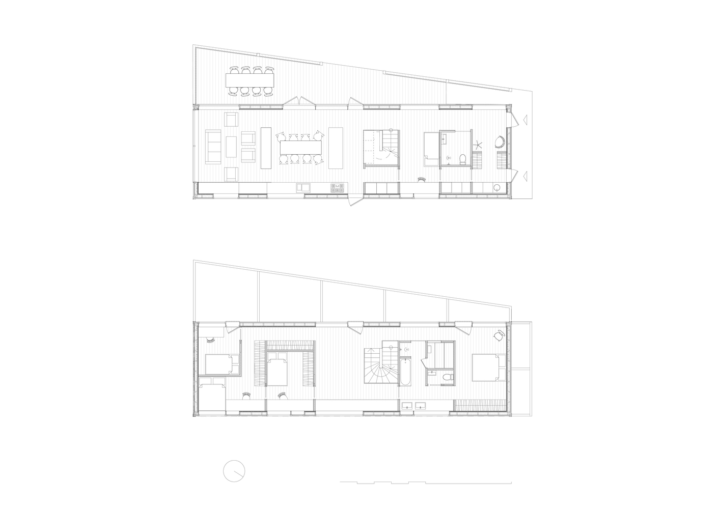
∇ 平麵圖
版權聲明:本站所有文章除投稿授權發布外,其他文字內容均為原創,享有著作權保護,未經許可不得以任何形式進行轉載(包括且不限於:媒體、網站、公眾號等)。所有項目照片/設計圖形版權歸原作者所有。本站部分內容源自網絡公開資源或用戶分享,如若侵犯了原作者的合法權益,可聯係我們進行處理。






























