全球設計風向感謝來自 圭侯設計 的住宅空間項目案例分享:
設計概念 Design concept
「泰初有無 ,無有無名。」──莊子天地篇。
「無」並不是物質,但也不是「空無所有」,從無到有,再由有至無,進而臻至「天地與我並生,萬物與我齊一」的境界。自設計開始,風格裝飾到工藝美學,皆不以任何機械化的時代表征,做多餘而過分的闡述,由著光影的行進、動線的流暢以及機能的演繹,和諧地融合風格與美學藝術型態的抽象特性,創造出充滿想象力且自在的空間樣貌。
一塵不染,普遍有潔凈之意,泛指保持心地潔凈,不被六塵所汙染。我認為居家生活裏的纖纖脈絡,多半來自於個人生命經驗,甚至帶有自我剖析的意味,於設計不過分誇飾,讓居者實質的感受著室內與建築對話,了解個體與環境的互依互賴,將有形有意的質與量弱化減少、去蕪存菁之後,簡單、純粹、利落的隱喻了人與生活的情感關係。
拒絕既有的流行語彙或潮流風格,環繞著「有」與「無」關係的轉變。設計之後所展示的是居者生活情感作用後的結果,線麵之間未有太多的色彩與造型,家具也是簡化之後的陳列,卻深深蘊含著不同情緒的力量,如:和諧與靜謐、安定與舒適、承載與包容,以及生活裏可能產生的複雜難言感受,在空間當中均如實清澈的羅列,具體而微的展現屬於居者的典範與美感。
“At the creation of the universe, there are no names for nonexistence and existence” from “The Heaven & Earth Chapter” of Zhuangzi.
“Nonexistence” is not about substances nor is it void; from nonexistence to existence, then from existence to nonexistence to ultimately improve to “myself coexisting with heaven and earth and all beings and I are becoming one”. From the beginning of this case, I refuse to use any mechanical symbols of eras for style and aesthetic concept of craftsmanship to spare excessive interpretation. Instead, I harmonically combined the abstract features of style and aesthetic art with the changes of light and shadow, the smooth traffic flow as well as the interpretation of its functions to create a space that is imaginative and nonrestrictive.
設計規劃 Design plan
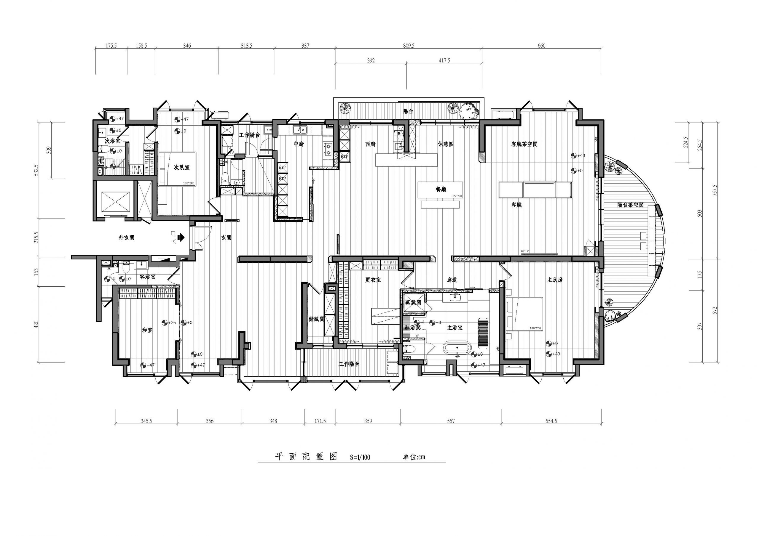
自大門甫入,由客廳、廚房及餐廳連綴迤邐成之貫通格局,少了傳統區域框線的遞次緩進,區域分野上的動線開口,除開放之外,便是隱於牆線之中,以此結構的規律性自明空間美感且擘分平麵段落,勾摹出室內豁然平麵,見得設計結構骨骼發乎精簡明快的規劃。在有無與清寂並列的設計思維中,轉載著居者對於生活的期許,也能達觀的表現其生活內在精神與生命進程脈絡,順性自然,當能無為消遙。
The moment you step into the front door, what awaits you is a see-through layout composed of living room, kitchen and dining room located one after another. This layout is without the restrictions of traditional one that is defined by lines and frames. Except for openness for traffic flow on the borders of different areas, all openness is hidden behind walls. This pattern defines the aesthetics of different spaces as well as separating different areas, outlining the open and bright space while allowing inhabitants to see the simplified and sleek arrangement in the layout. The design ideas for existence & nonexistence and silence carry the inhabitants’ expectations for life. It also displays the spirit of life and traces of life openly and clearly: go with the flow and be at ease and carefree.
設計重點 Design point
1.在九十坪的空間中,隻用單一材質:橡木木地板,貫穿所有空間(除浴室外)。隔間牆門、櫃體用白色係統櫃體去微劃分居室各所屬機能,讓空間顯現最原始的樣態與光影層次變化。在此空間,眼睛所及有彩度的地方為橡木木地板,特別切割木地板尺寸每一塊為275公分乘以30公分,讓其與牆麵、壁麵形成比例合宜的視覺密度。
2.因樓高隻有280公分,特將係統整合設置於開放性過道上方:照明、空調濾清、水電管線有序地整合到天花板裏,視覺上保持淨空,無壓迫感。
1.One single material in all 297.52 square meters space: oak flooring is used in the entire space (excluding the bathroom); partition walls, doors and white system cabinets are used to define functions in different rooms; eventually what meets the eye is the original state of the space and various layers of light & shadow. In this space, the only color you see is the color of the oak wood flooring; and cutting the floor piece to 275 x 30 cm together with the walls, seamlessly forming a perfect proportion for visual gratification.
2. The most difficult part lies in system integration. With a 280 cm high ceiling, lighting, AC system, water pipes and electricity circuits are neatly tucked away inside the ceiling over an open passage way to keep the space visually clear and stress-free.
主要項目信息
項目名稱:601號・泰
設計師或設計公司:設計師/洪文諒;設計公司/圭侯設計
官網:http://www.ghid-h.com/
聯係郵箱:service@ghid-h.com
完成年份:2019年
建築麵積(平方米/坪):298平方米/90坪
項目位置:中國深圳
材質:橡木
格局:三房兩廳





















