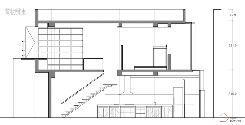
喜歡老空間的屋主們,應該常常在看屋階段就被陰暗、漏水潮濕問題嚇得退步三舍!其實隻需要拆除多餘牆壁隔間,創造空氣流通、引入陽光,馬上化身采光十足溫馨宅。如果同是老屋和水泥材質愛好者,絕對別錯過 Lightance 質物霽畫 的 40 年老宅翻新分享,擁有一切空間最怕遇到問題,包括采光、漏水、機能規劃不符合實際需求等,首先把牆壁打掉、增加軌道燈照射改善光線,並在廚房後方區域,利用玻璃形成角落天井設計,料理時也能享受自然光,並且讓水泥看來更溫潤。
針對二樓私密臥室空間,則把隔間牆壁將低至 1 米 8 高度,不幹擾隱私又可讓光進入。若是預算不夠,設計師李霽也建議,可選擇鐵件、樺木夾板、水泥等元素打造,好比屋主因為職業關係,收藏千萬本童書,利用鐵件加夾板客製化大麵積書櫃,比起購買現成家具更有味道。另外,樓梯處收納區同樣應用樺木夾板作為活動可拉式層架,除了放置物品同時能區隔和二樓的分區界定。也正在為老房子改造苦惱嗎?來參考更多細節設計吧!
版權聲明:本站所有文章除投稿授權發布外,其他文字內容均為原創,享有著作權保護,未經許可不得以任何形式進行轉載(包括且不限於:媒體、網站、公眾號等)。所有項目照片/設計圖形版權歸原作者所有。本站部分內容源自網絡公開資源或用戶分享,如若侵犯了原作者的合法權益,可聯係我們進行處理。




















