由Arthur Casas工作室的建築師設計的SysHaus項目是巴西聖保羅預製房屋的展覽空間。這座占地206平方米的房子代表了現代生活方式的新概念,其中效率,便利和環境友好不僅是理想,而且是有效的實踐。
結構係統由獨特類型的柱,梁,連接件和螺栓組成,可以適應平坦或傾斜地形。設計師還設計了外部和內部塗層,例如地板,牆壁和天花板,因此房屋可以完全在現場建造,而不會產生浪費,也不會消耗自然資源。從計劃之刻到交房入住,僅用六個月就可以實現這樣的房子。
住宅整體采用高效的係統和可回收材料設計而成,因此無需進行修改即可引入環保的可持續解決方案。該項目提供了一個用於收集和再利用雨水的係統,光伏板可產生能量,有機廢物被轉化為氣體,以實現廚房和壁爐的功能。
節能係統可最大程度地降低能源成本,並具有自動化功能。智能鎖,攝像機,水管理係統隻是客戶可以將其納入房屋的一些元素。每個住宅都可以為客戶定製,他們有機會為價格和時間選擇不同的選項。
在房屋的演示版中,是典型的裝飾,家具,配件和通訊。由Studio Arthur Casas與大型公司和本地製造商合作開發,所有裝飾元素均單獨製作。通常固定的櫥櫃和廚房是通過模塊運送到房屋的。因此,在搬家的情況下,它們可以簡單地拆卸並重新安裝在新空間內。
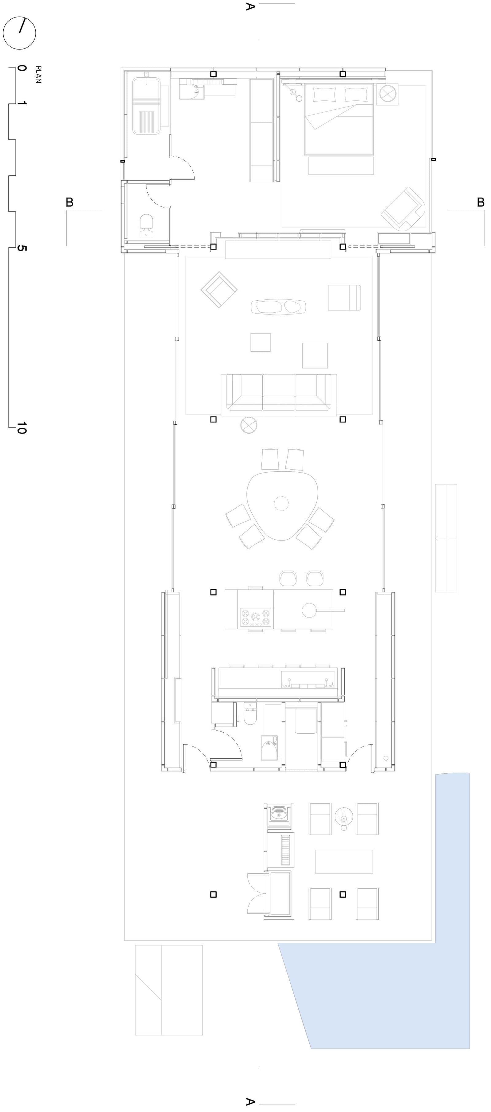
∇ 平麵布置圖
版權聲明:本站所有文章除投稿授權發布外,其他文字內容均為原創,享有著作權保護,未經許可不得以任何形式進行轉載(包括且不限於:媒體、網站、公眾號等)。所有項目照片/設計圖形版權歸原作者所有。本站部分內容源自網絡公開資源或用戶分享,如若侵犯了原作者的合法權益,可聯係我們進行處理。



























