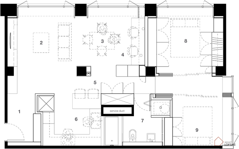
誰說居家風格有年齡限製區別,隻要善加利用色彩、材質規劃搭配,即使是退休後無障礙空間,依舊時髦又有型!來自爾聲空間設計 Archlin Studio 的 40 年老屋分享,屋主雖然已經升格當阿公、阿媽,設計上則勇於嚐試不設限。

考慮到生活需求便利,破解原本陰暗、狹小困擾,首先加大窗框範圍,下方製作隱藏式收納櫃,創造連續性視野,並透過胡桃木延伸平台,多一份溫暖感受。第二步將臥室區域以拉門區隔,隨著家人朋友入住,門打開變為大通鋪,達成彈性靈活運用。並加入多材質混搭配置,包括綠色水泥、不鏽鋼鐵件、花磚、天然木皮、橡木海島型木地板等材質呈現,設計師也提醒,比例拿捏很重要,最好藉由白色牆麵當基底,降低整體混亂感。針對年長者住宅設計要點,風格可以活潑,但細節可馬虎不得,譬如說衛浴空間要注意地麵防滑處理,推薦加裝懸掛式馬桶、壁櫃與洗手台的幹濕分離規劃,好清理又避免地麵潮濕。











Photos © Crosby Studios
版權聲明:本站所有文章除投稿授權發布外,其他文字內容均為原創,享有著作權保護,未經許可不得以任何形式進行轉載(包括且不限於:媒體、網站、公眾號等)。所有項目照片/設計圖形版權歸原作者所有。本站部分內容源自網絡公開資源或用戶分享,如若侵犯了原作者的合法權益,可聯係我們進行處理。










評論(1)
很喜歡
” />