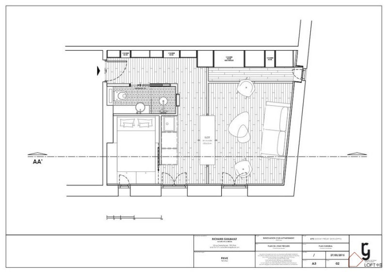
這間僅有30平米的小公寓由建築師Richard Guilbault改造而成,公寓最初由四個黑暗的小房間組成,充滿著令人強烈的不適感。作為屋主的年輕夫婦希望擁有明亮而動感的客廳,優化私人空間的利用,並最大限度地提高存儲空間。
經過重新規劃,客廳占用了2/3的居住麵積(而不是之前的1/3),並可享受到從四個窗戶投射進來的陽光;量身定製的浴室僅有2-3平米,簡約而富有情趣;新的睡眠空間,兼具隱蔽性及親密感,大體量的存儲櫃隱藏其中,滿足了屋主的收納需求;床的位置被抬高,使整個空間更像一個艙室,大大提高了舒適性;設計師使牆體的存儲區沿著整個空間上移,由四個壁龕及白色、原木色拚接的不規則櫃體組合而成,電子線路、家電、酒櫃、衣物等統統隱入其中,實現了空間的多功能化。
Photos © architect Richard Guilbault
版權聲明:本站所有文章除投稿授權發布外,其他文字內容均為原創,享有著作權保護,未經許可不得以任何形式進行轉載(包括且不限於:媒體、網站、公眾號等)。所有項目照片/設計圖形版權歸原作者所有。本站部分內容源自網絡公開資源或用戶分享,如若侵犯了原作者的合法權益,可聯係我們進行處理。

























