WARchitect的“ V60住宅” 位於泰國曼穀一個寧靜的郊區,通過一係列中間的開放空間與自然相連。房子被分成三個區域-生活區,臥室,和嘉賓區,以達到每個區域通過外部露台行走。這樣,當他們經過連接所有區域的綠色庭院時,總會遇到自然風光。
WARchitect為年輕的夫妻設計了“ V60住宅”,他們都是飛機駕駛員,他們在狹窄的區域中長時間停留,幾乎沒有新鮮空氣和身體活動。針對這些問題,房屋的結構使這對夫婦可以深呼吸新鮮空氣並享受寬闊的開放空間。該項目位於曼穀的一個安靜區域,空氣汙染程度很低,並且遠離主要道路,並且該項目得益於大量可用土地。
寬敞的地塊麵積使設計師可以設計不太緊湊的房屋。將其功能劃分為三個不同的區域,並在其間插入綠色的中庭區域。為了進一步加強與自然的聯係,房屋設有落地玻璃門,以確保自然通風並為居住者提供充足的新鮮空氣。
房屋的三個區域沒有被內部隔牆隔開,而是居住者必須先從一個區域的內部步行到外部。通過這種方式,WARchitect確保當他們走過標誌著項目核心的綠色庭院時,可以窺見大自然。此外,當居住者在這三個區域中時,他們可以通過多個開口始終看到彼此。例如,當一個人在起居區中煮咖啡時,他們可以看到臥室和遊泳池。
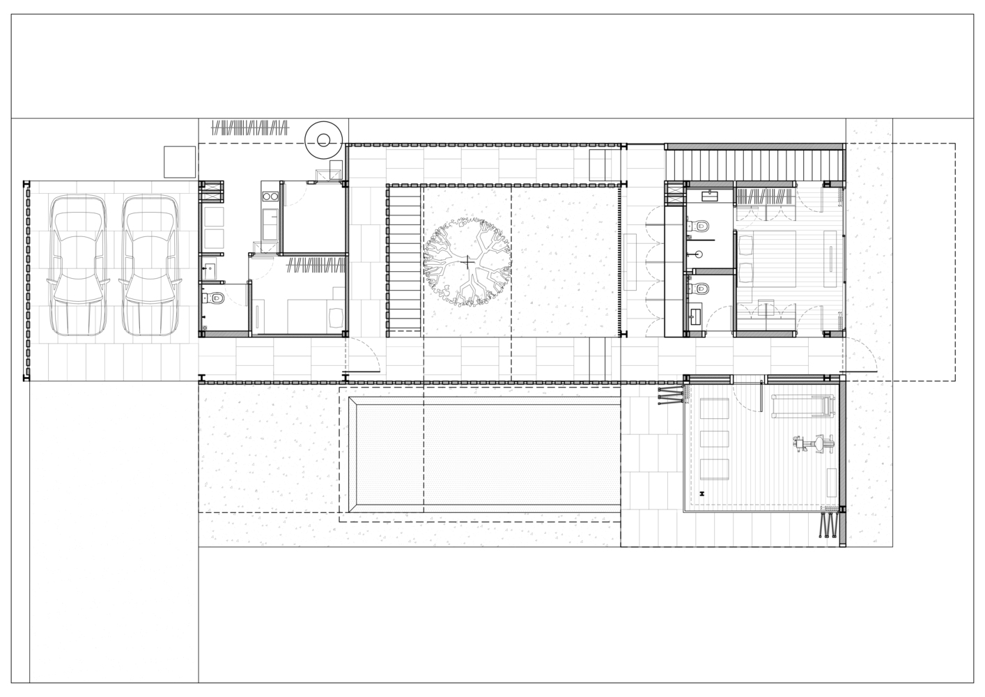
∇ 一層平麵布置圖
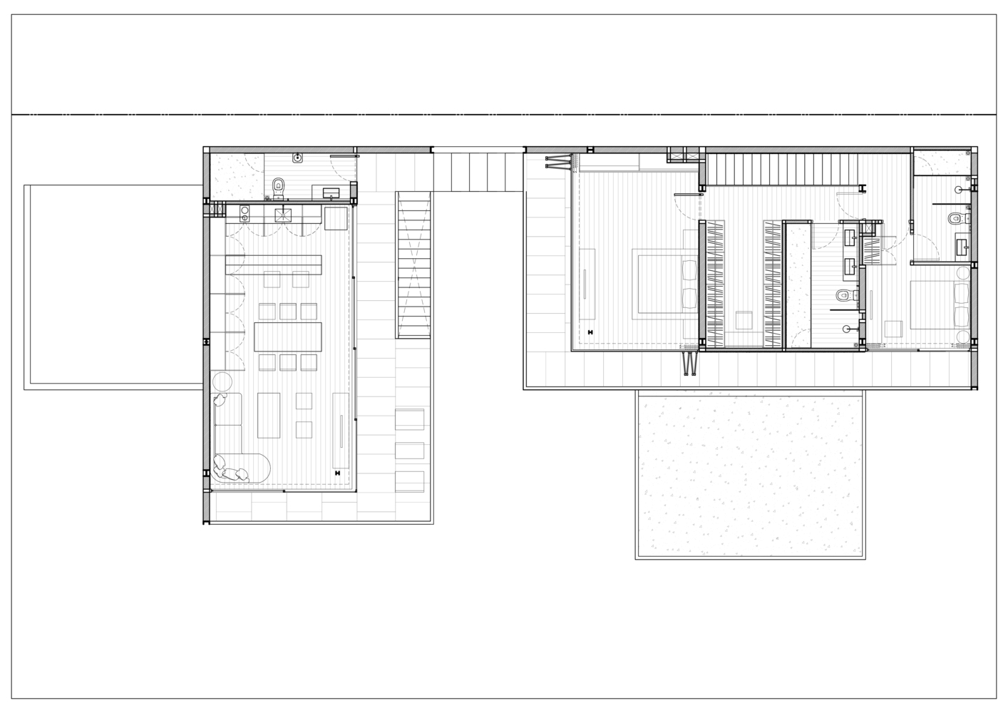
∇ 二層平麵布置圖
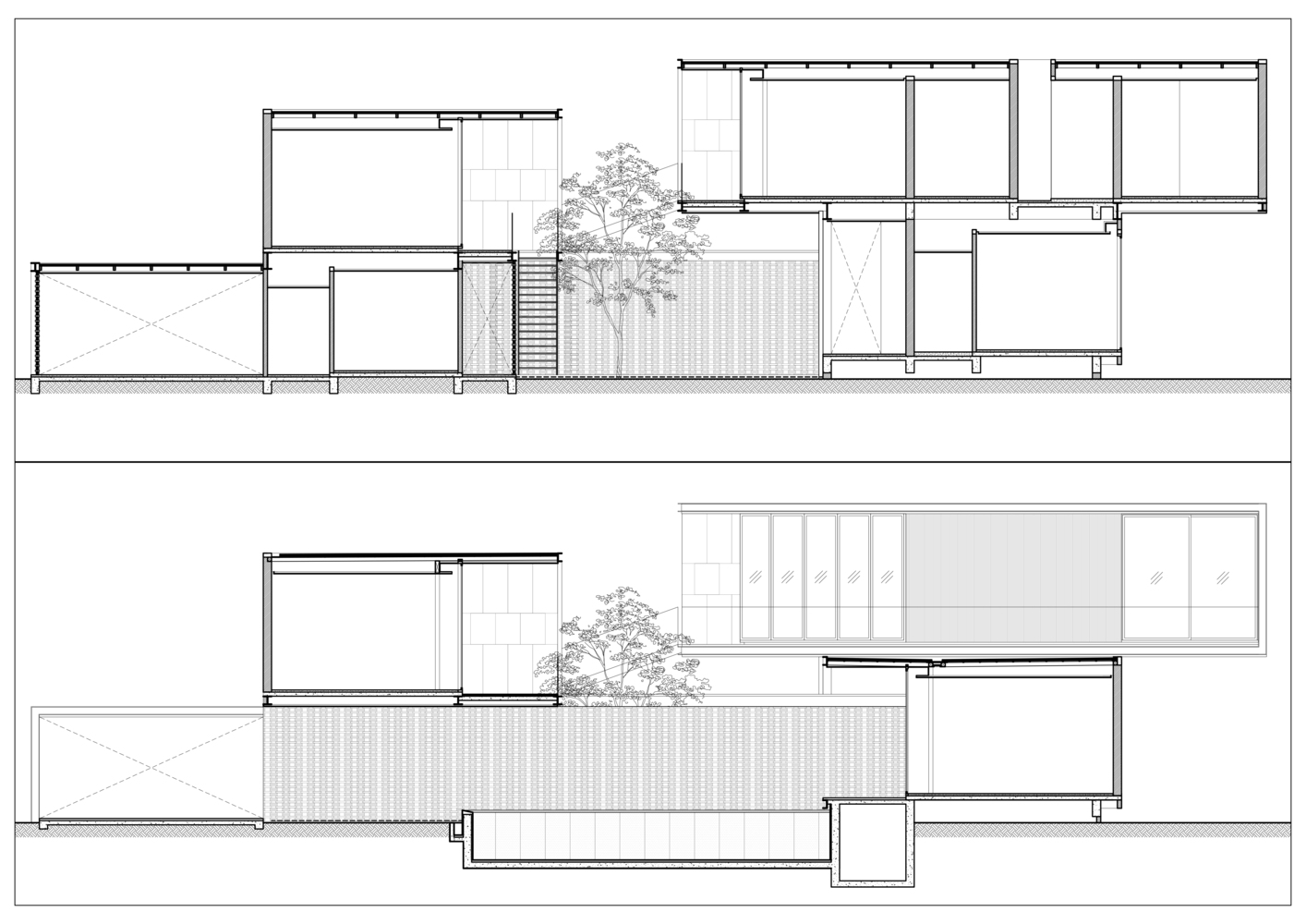
∇ 剖麵圖
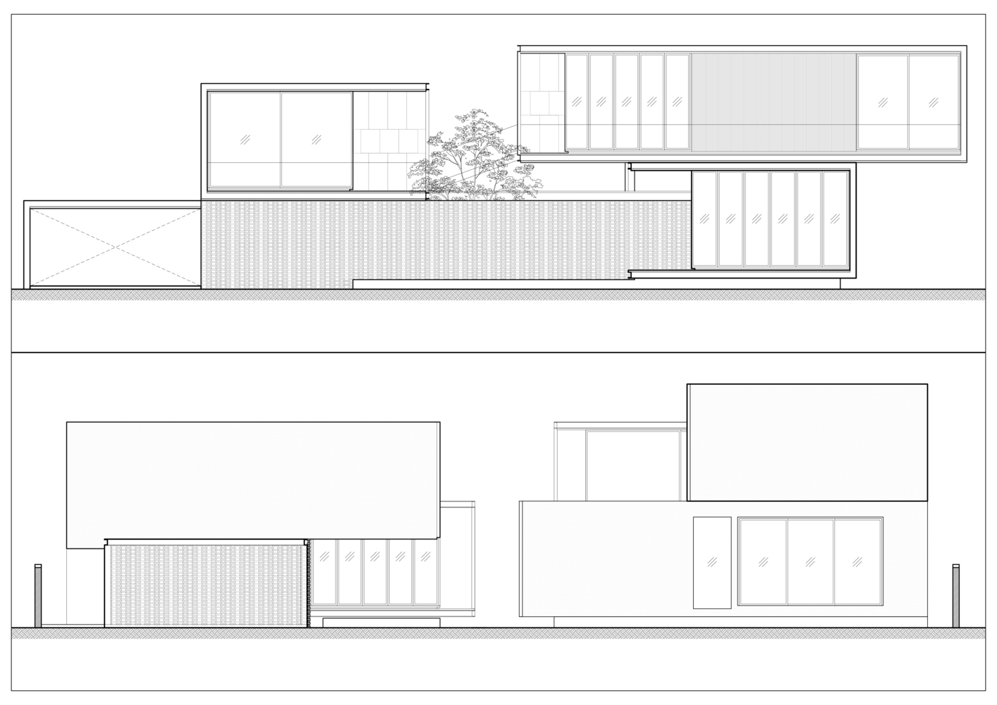
∇ 立麵圖
版權聲明:本站所有文章除投稿授權發布外,其他文字內容均為原創,享有著作權保護,未經許可不得以任何形式進行轉載(包括且不限於:媒體、網站、公眾號等)。所有項目照片/設計圖形版權歸原作者所有。本站部分內容源自網絡公開資源或用戶分享,如若侵犯了原作者的合法權益,可聯係我們進行處理。







































































