全球設計風向感謝來自 王中丞設計事務所 的住宅空間項目案例分享:
Louis是一名年輕且風格鮮明的發型設計師,一家三口住在浪漫多風的新竹。在日常裏他賦予了顧客煥然一新的整體感受,他喜歡用色彩展現最柔軟的發絲,創造難忘的發型故事。他說「家,就應該是你想要的樣子。」像鏡子中的自己,顏色鮮明、獨一無二 。
設計背景 Design Focus
Chapter 01. 設計 玩轉千百種可能性 Design plays with thousands of possibilities
生命是一張巨幅畫布,而你應該恣意揮灑所有色彩。
Life is a great big canvas, and you should throw all the paint on it you can.
– 丹尼.凱
這是設計與美發碰撞後的家,我們回歸本質層麵,毫無綴飾之下展露自然紋理。大膽卻柔和的色彩填充結構的空白,保持多彩生活美學的同時增加了設計感與儀式感。透過維度操控與材質拚接衝擊視覺層次,打造一處溫度與理性的趣味居所,玩轉空間的千百種可能性。
寓所空間 Residence
Chapter 02.毛胚原始 曲線與時光交流 Cement /Curve /Communication
∇ 回家的第一感受是沉穩安定且擁有放鬆的氛圍
∇ 簡單的跟著曲線造型,地麵材質也跟著流動
一進門保留了毛胚原始質感,展露粗曠的水泥韻味,不多加修飾的灰泥板模紋理,表露出天然且細膩的視覺張力。讓回家的第一感受是沉穩安定且擁有放鬆的氛圍。另一牆麵延伸至客廳,使用了黃色特殊塗料搭配曲麵造型。完全開放的空間以水磨石磚切割區域,輕盈的空間,減輕堆積感,從而達到空間內的色彩和質地的平衡,無框無架,簡單的跟著曲線造型,地麵材質也跟著流動。
∇ 使用了異於周圍光澤的灰色磚,呈現出不同層次的渲染感
∇ 一字型大收納中島,延伸了廚房的分量
廚房是家裏的心髒,也是生活最真實的樣貌,享受浪漫料理,增加彼此在不同場域的時光交流。我們在幹淨的顏色中玩起了材質,使用了異於周圍光澤的灰色磚,呈現出不同層次的渲染感。考慮了屋主料理的習慣,使用了一字型大收納中島,延伸了廚房的分量,餐桌與中島結合了弧度與直橫的變化,料理的過程也跟著優雅了起來。
Chapter 03.場域自由流動 揮灑迷人色彩 Charming/Colors/Free/Flow
∇ 我們在這停留、走動,享受最自在的互動
∇ 均等的空間中以原始水泥牆畫出了柔和的分隔
在「黑白灰」的色調中,加入些個性的色彩讓空間並存著沉穩與活潑,墨綠的沙發像是一大片深邃沉默的森林,鮮明和諧的家具跳出了空間的框架。黃色特殊塗料牆麵延伸至玄關,搭配著曲麵造型,潤滑了這個理性的空間,增添了溫度與觸感,於是我們在這停留、走動,享受最自在的互動。
∇ 黃色特殊塗料牆麵延伸至玄關,搭配著曲麵造型
∇ 雙客廳的概念,場域自由流動
以雙客廳的概念,讓場域自由流動,親朋好友相聚在此的熱鬧與一人想要安靜閱讀思考的起居室,均等的空間中以原始水泥牆畫出了柔和的分隔,麵與牆構成了一個優雅的畫框,生活像是一張畫布,而我們就是畫中的主角,揮灑著迷人的色彩。線與麵凸顯出了結構,在原味的材質線條感中,隨和卻並不平庸,沉靜卻並不枯燥。
∇ 選用深色木百葉,注入著理性與感性
選用深色木百葉,注入著理性與感性,光的炙熱與柔和左右我們的生活。緩緩的灑落的光,透過百葉映在水泥牆上,暈染開來的光是天然的spotlight,不做過多修飾的撫慰著每一處的感官。
∇ 墨綠的沙發像是一大片深邃沉默的森林
將不同肌理的元素融入其中,透過協調人、物、空間的交織、互動、妥協,達成機能與舒適的平衡。
Chapter 04.黑白灰基底 加入玩味 感受新的一天 Black+White+Gray+Interesting= A NEW DAY
∇ 簡約穩重的深木質
∇ 低彩度自然感十足的原始水泥點綴
∇ 黑色鐵件成為空間裏的視線焦點
延伸客廳的黑白灰,主臥以簡約穩重的深木質為主,搭配低彩度自然感十足的原始水泥點綴。以線條和材質精準的堆疊出空間的線性。黑色鐵件成為空間裏的視線焦點,並勾勒出立體視覺效果。
∇ 燈木質暈染讓空間增添溫度
床頭燈點亮了沉穩,除了機能外,木質暈染讓空間增添溫度。設計上無多餘綴飾,家具質感色係精準的融合。享受生活同時也回歸最純粹樣貌。
Walk-In-Closet
「個人的獨特性與無價的體驗 」
∇ 適度的留白,有彈性未來規劃
一件裙子的長度,一雙鞋子的高度,扣子開到第幾顆,都是細膩的環節。如同每個角落裏都能感受到設計和巧思。
∇ 木質與條理兼具的收納櫃體,將種種的探索帶進空間中
∇ 視覺上保持隱密調性
視覺上保持隱密調性,木質與條理兼具的收納櫃體,將種種的探索帶進空間中。鋪陳上人文氣度延伸主臥背牆感,適度的留白,有彈性的未來規劃,都是對於美好生活的向往。
BathRoom
「不張揚的熱情充滿個性 」
∇ 明度較低的酒紅作為床頭背牆主色
∇ 酒紅造型櫃體在水泥牆上成為了一個疏空密的視覺衝擊
明度較低的酒紅作為床頭背牆主色,整齊的溝縫充滿規律性,凹凸麵與線溫熱了巧思。不張揚的熱情充滿個性,包裹著療癒的安心感。營造出了一個隻屬於自己的小天地,身心放鬆的待在這裏。
∇ 不張揚的熱情充滿個性
∇ 淺藤編床具,在深中跳脫出來
淺藤編床具與實木床頭櫃的材質,在深中跳脫出來,喚醒了雅致的氛圍。酒紅造型櫃體在水泥牆上成為了一個疏空密的視覺衝擊,呼應背牆也延續材質,巧妙的給了空間融洽的歸屬感。
設計亮點 Design Idea
Chapter 05.配色與材質「撞」在一起! Color X Material
∇ 三種色彩與材質細膩的呈現
∇ 「弧」,包覆著空間中的故事
“色彩即思想”——伊裏亞·葉菲莫維奇·列賓
在紋理豐富的平滑石磚中找到純粹;在光線的照射下,觸摸黑木地板的冷靜沉穩;在清新亮眼中找到粗曠的黃色牆麵。
∇ 自由將光束柔化成宜人的光源
∇ 原始水泥的背景下,一盞燈、一座椅,都成為主角
衝突與美感之間,細細品味,就像理性的你溫柔的擁抱著我的感性,理解彼此,融洽的生活,是美好的!
生活痕跡 Life Style
Chapter 06.美好事物就在生活、居住環境和城市中 Beautiful things are in life, living and city
今年麵臨了全世界的動蕩和不安,日子可能沒有過往熱鬧,但靜下心來,你會發現,所有來自生活中細小的感受,都可以成為新的養分。對專注於觀察人和環境關係的設計總監王中丞來說「感受」是不可或缺的,美好事物就在生活、居住環境和城市中,創作給人最適合當下的感官。為你的生活畫上繽紛吧!,我們打破了製式與規則,量身訂做出屬於屋主「個性」的品味宅,以玩味為設計根本,滿足了屋主對色彩的敏銳氣息,以材質碰撞、融合,帶來了活躍與寧靜,貫穿之中,感受一波全新的玩味變革!
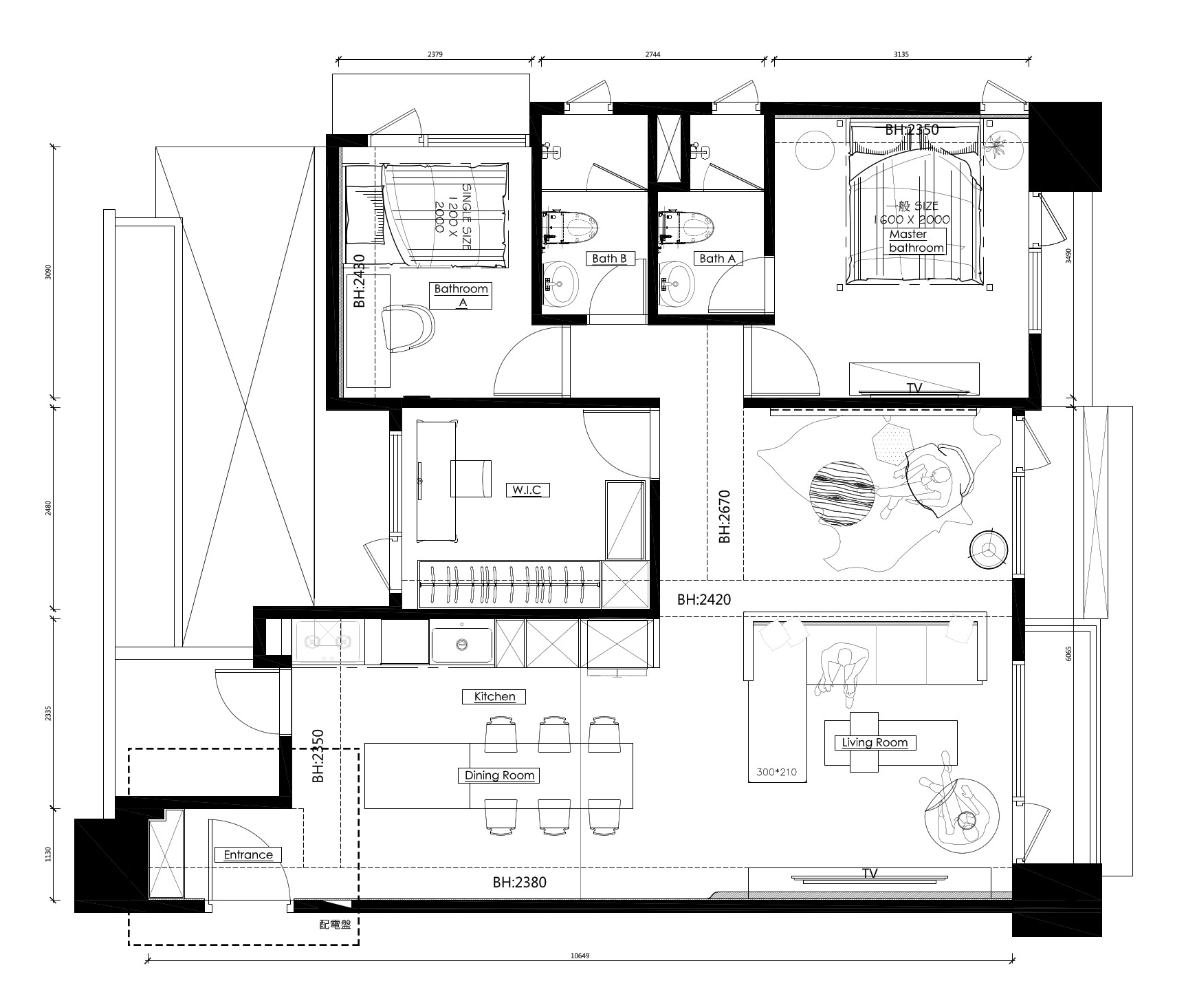
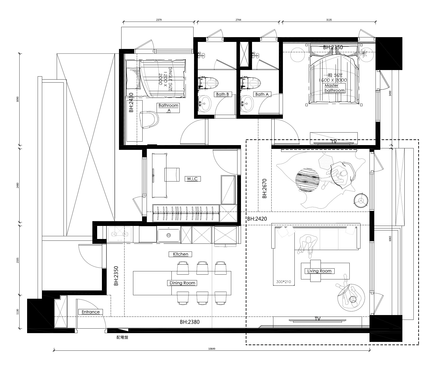
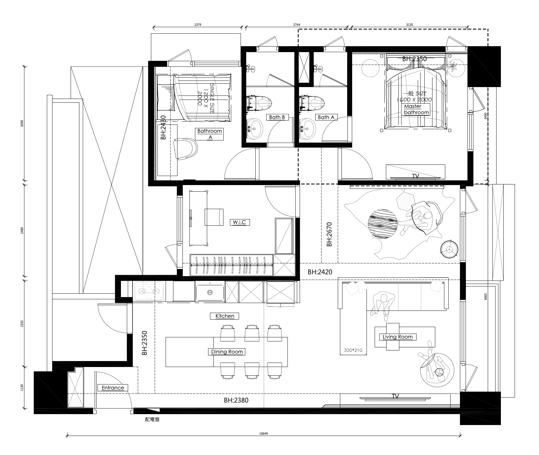
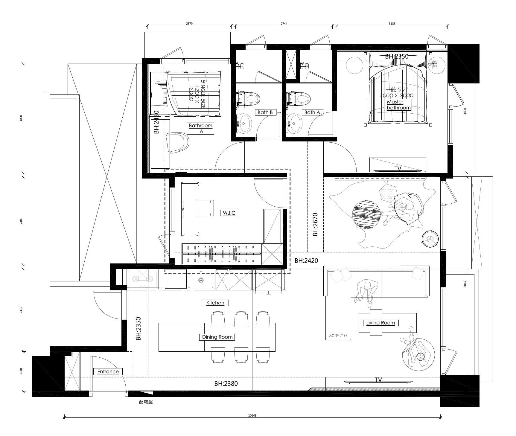
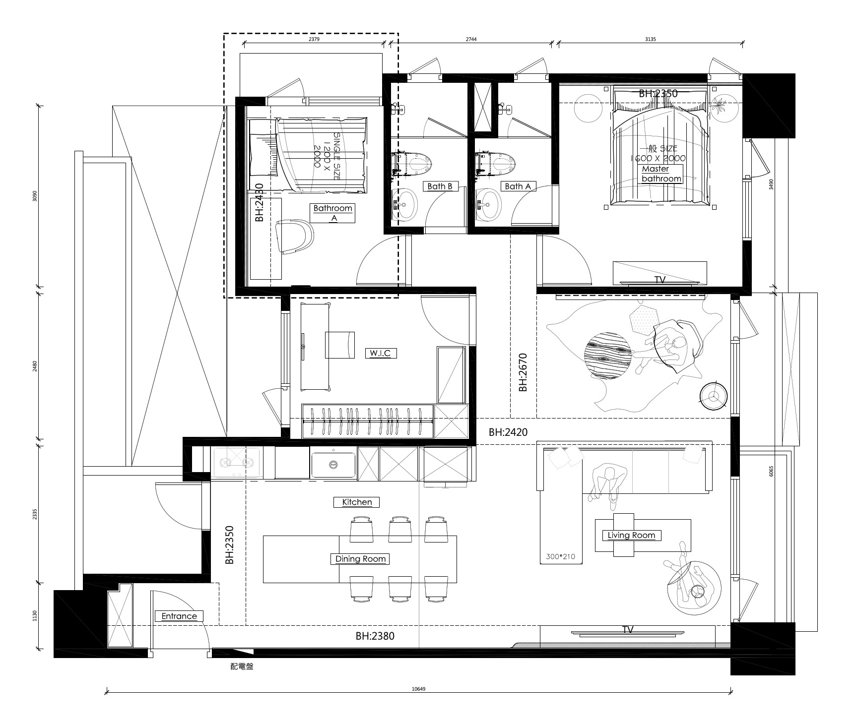
∇ 平麵圖
項目信息
設計總監:王中丞先生
專案設計:Wei
項目名稱: 玩味A New Day發型師的美學公寓
設計麵積:83平方米
完工時間:2020年8月
主案建材: 塗料、木皮、竹編、百葉、鐵件
攝影: 光研攝影














































