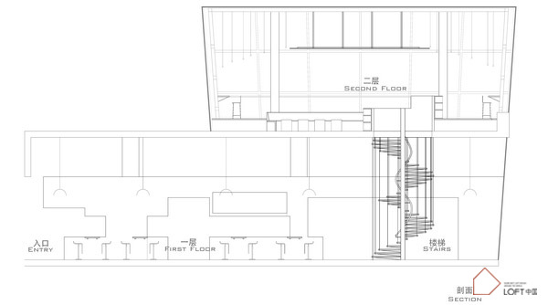
咖啡廳、餐館、圖書館已日益成為我們生活中不可替代的空間,latitudestudio在這個空間中,探索將傳統的咖啡廳功能與公共視覺藝術結合的可能。空間分兩層,一樓通過去除玻璃外牆,形成一個擴展的公共開放空間。其內部包含兩個區域:快飲區(快)和休閑區(慢)。快飲區選用高腳桌椅,臨近服務區——由白色玻璃包裹的縱向櫃台;休閑區采用矮桌,長椅緊貼牆壁。這兩個區域用一個縱向鋼製元素隔開,它包括鏡子和投影儀,打造出一種奇妙的視覺錯覺。
二樓為環形,利用照明采光,營造出一個集中的開放空間,可以提供不同類型的活動場地。可移動的墩狀圓柱咖啡桌沿圓形長椅擺放,使用者可根據需要隨意移動。設計完成的空間,超越提供咖啡和飲品的基本功能,成為一個公共活動空間,使顧客感受到不同的情緒氛圍。
Photos © latitudestudio
版權聲明:本站所有文章除投稿授權發布外,其他文字內容均為原創,享有著作權保護,未經許可不得以任何形式進行轉載(包括且不限於:媒體、網站、公眾號等)。所有項目照片/設計圖形版權歸原作者所有。本站部分內容源自網絡公開資源或用戶分享,如若侵犯了原作者的合法權益,可聯係我們進行處理。


















