該項目臨近Gifu市中心,位於一棟出租的兩層木結構建築裏,目的是為一位景觀設計師打造一個畫廊和辦公生活空間。出自Ogawasekkei。
由於這是一個出租物業,因此裝修的重點是牆壁、地板和天花板,而不是通過改變或者部分改變結構來創造空間,一樓將作為畫廊,二樓則是辦公生活空間。
由景觀設計師打造的藝術作品將展示在畫廊裏,因此該空間需要達到相應的品質。藝術作品通過對現有花園的轉變,呈現出一種新的花園形式,為日常生活帶來樂趣。在組織空間的材料中,充分考慮到為藝術作品創造適當的空間,因此,現有的窗框和框架,OSB膠合板,水泥板,中密度纖維板,黑色鐵板,黑色榻榻米,障子(日本紙),黃銅,蚊帳等,都被應用到空間中。通過把牆向內部後設800mm創建河石花園,用日本柏打造的牆限製了行人的視線。雖然畫廊空間被認為是日本風格,但僅僅是障子和榻榻米采用日本材料,這並非所謂的日係,但是以日式的方式來呈現出豐富的空間。
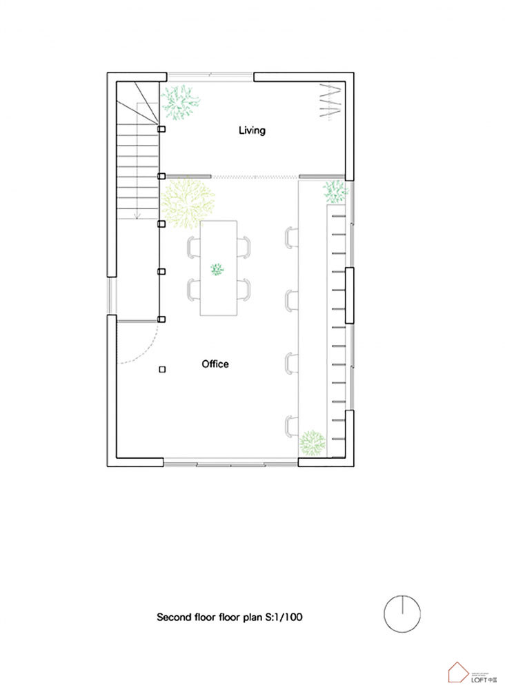
二樓,原有的隔牆和掛壁被去處,露出結構,柳安木膠合板用於天花板和牆壁的背板,並塗上了碳黑色墨水。瓷磚地毯被用於地板材料。空間旨在包含現有部分,並創建新的部分。
房子臨近Nagara河,這是日本一條很美麗的河,花園的靈感就來源於周圍的自然景色,花園入口的設計暗喻Nagara河,花園裏的石頭也是來自於這條河。
Photos ©Masato Kawano / Nacasa & Partners
版權聲明:本站所有文章除投稿授權發布外,其他文字內容均為原創,享有著作權保護,未經許可不得以任何形式進行轉載(包括且不限於:媒體、網站、公眾號等)。所有項目照片/設計圖形版權歸原作者所有。本站部分內容源自網絡公開資源或用戶分享,如若侵犯了原作者的合法權益,可聯係我們進行處理。





















