全球設計風向感謝來自 平介設計 的珠寶商店項目案例分享:

 

 項目位於上海市長寧區上生新所二樓,原場地為兩個房間,中間可開洞聯通,占地約130平方米,淨層高僅2.4米。客戶的要求滿足多種接待區、藝術裝置、倉庫區、展示區及輔助功能空間等,對內保證實用,對外強調美觀,並附有創造力。麵對功能、空間與環境的多重矛盾關係,設計師需按照需求打通多餘牆體,將大小兩個房間做成一個店麵,通過設計突破原有場地的限製,並在嚴格把控成本的基礎上發揮出最好效果,打造一個集交流、展覽、零售、打卡等功能於一體的商業空間,在有限的空間回應多種需求,給顧客帶來最好的購物消費體驗。

Located in the second floor of a building named Columbia Circle in Changning District, Shanghai city, the area, covering 130m2 and measured at 2.4 meters high, includes two rooms which can be connected by breaking the wall in between. The client requires that the design can be adapted to a variety of reception areas, art installations, warehouse areas, exhibition areas and auxiliary space, etc., and it should be practical in usage and beautiful in design and have a sense of creativity. Be faced with the challenges of contradictions among functions, spaces and environment, the designer needs to get rid of unwanted walls and make the two rooms a whole one. He needs break out the chains of original area by designing and satisfies the client to the extreme on the basis of strictly controlling the cost, creating a commercial space with the function of communication, exhibition, retail, tourism, and other functions. The limited space with unlimited functions provides the customers with the best shopping experience.

 

上海梵誓珠寶上生新所店,平介設計,上海珠寶店設計,零售店設計,平介設計作品,上海體驗店設計,項目投稿

△項目場地  ©林圭佳棟

 

設計概念——蘇美爾星球KR-π鉑金礦坑尋寶

寶石的意義不僅在於其本身價值,更在於其背後探索發現的過程。縱使懸崖峭壁,密洞深淵,采礦者也願意去探索未知的、神秘的世界,最終得償所願。

鉑金是梵誓品牌重要的元素,宇宙中鉑金資源最充足的地方,就是蘇美爾星球的KR-π鉑金礦。因此設計師希望打造一個神秘的富有體驗感的異形空間,模擬探險者登陸外星球鉑金礦坑的體驗,讓每個進入梵誓的顧客都懷著好奇心去探索發現,找到屬於自己的那款寶石。

 

The concept of design– Treasure hunt in the KR-π platinum mine on Sumer planet

The significance of gems lies not only in their own value, but also in the process of discovery behind them. Even with cliffs, dense caves and abysses, miners are willing to explore the unknown and mysterious world, and finally get what they want.

Platinum is an important element of the ONESWEAR brand. The place with the most abundant platinum resources in the universe is the KR-π platinum mine on the Sumer planet. Therefore, the designer hopes to create a mysterious and experiential alien space, simulating the experience of an explorer landing in a platinum mine on an outer planet, so that every customer who enters the Vow will explore and discover with curiosity and find his own gem.

 

上海梵誓珠寶上生新所店,平介設計,上海珠寶店設計,零售店設計,平介設計作品,上海體驗店設計,項目投稿

△入口門麵  ©朱潤資

 

上海梵誓珠寶上生新所店,平介設計,上海珠寶店設計,零售店設計,平介設計作品,上海體驗店設計,項目投稿

△主展示區  ©朱潤資

 

入口的空間的洞穴造型,為顧客營造出探險者登陸外星球鉑金礦坑的體驗。

The cave shape of the space at the entrance creates the experience of an explorer landing in a platinum mine on an alien planet.

 

外牆麵用真石漆刷成素白色,門的造型呼應洞穴概念。幾個形態不一的流線型曲麵造型的窗戶在周圍線性燈帶的均勻的照射下泛著溫暖的色彩,使空間視覺更具穿透性與連貫性,同時這些洞穴造型為新加厚突出裝飾層打洞做出的效果,對原有牆麵不會產生破壞。

The façade is painted plain white with natural stone coating, and the entry is designed to echo with the concept of caves. Several streamlined and curved windows of different shapes display the color of comforting with well-distributed illumination of the strings of lights surrounding them, making the space looks more integrated and coherent. Meanwhile, such design comes from newly-thickened walls to extrude the decoration part and will not damage the original wall.

 

上海梵誓珠寶上生新所店,平介設計,上海珠寶店設計,零售店設計,平介設計作品,上海體驗店設計,項目投稿

△入口門麵  ©朱潤資

 

上海梵誓珠寶上生新所店,平介設計,上海珠寶店設計,零售店設計,平介設計作品,上海體驗店設計,項目投稿

△入口細節  ©林圭佳棟

 

外立麵上的異形洞底部安置了鏡麵,既可以反射周圍上生新所優美獨特的景色,又為來往遊客提供了觀光駐足,打卡拍照的素材。

A mirror is placed at the bottom of the special-shaped hole on the facade, which not only reflects the beautiful and unique scenery of the surrounding Columbia Circle, but also provides materials for tourists to stop and take photos.

 

上海梵誓珠寶上生新所店,平介設計,上海珠寶店設計,零售店設計,平介設計作品,上海體驗店設計,項目投稿

△外立麵造型洞  ©林圭佳棟

 

整個空間設計從展品的布置開始,因為考慮到業主提出要將原來店鋪的珠寶盒重新利用放置在新店中,設計師將舊珠寶盒隱匿於牆麵的穿孔板中,弱化了珠寶盒龐大的體量和方正的造型。同時,將珠寶盒嵌製於牆上也為中心流線型網紅打卡裝置節省出較大空間。牆麵采用穿孔板切割成片狀曲麵,並滿足一定防火等級要求。

The design of the whole space starts at the exhibition space. The designer directly combines showcases and walls, leaving much room for streamlined artwork for exhibition at the center. The wall is made up of perforated boards which are cut into curved surfaces in pieces and has relatively strong ability of fire-proof.

 

上海梵誓珠寶上生新所店,平介設計,上海珠寶店設計,零售店設計,平介設計作品,上海體驗店設計,項目投稿

上海梵誓珠寶上生新所店,平介設計,上海珠寶店設計,零售店設計,平介設計作品,上海體驗店設計,項目投稿

 

曲線語彙貫穿整個空間結構與界麵,按業主要求,牆麵上布滿方形的多媒體電視,設計采用連續的片狀曲麵牆麵將這些多媒體電視和展櫃柔化,將它們嵌入曲線凸出造型中。深灰色彎曲錯落的鋁板與展櫃融合,過渡自然,模擬礦坑洞穴亂石嶙峋的效果,同時滿足了展示珠寶的功能,增大空間利用率,也使室內空間更有流動感。

The curves are involved in the whole structure and appearance: the walls that used to be placed with full of square multimedia televisions are adapted to the continuous curved flakes which visually soften the edges of the televisions and showcases by embedding them in the shape of curves. The dark-gray curved and detached walls integrate with showcases makes a nature transition, a simulation of rocky coastlines in holes and caves. At the same time, the design meets the need of jewelry exhibition, improve space utilization and creates a visual sense of flow inside the space.

 

上海梵誓珠寶上生新所店,平介設計,上海珠寶店設計,零售店設計,平介設計作品,上海體驗店設計,項目投稿

△多功能打卡桌 ©朱潤資

 

上海梵誓珠寶上生新所店,平介設計,上海珠寶店設計,零售店設計,平介設計作品,上海體驗店設計,項目投稿

△次展示區 ©朱潤資

 

白色牆麵上原本是方形窗戶,為了統一設計語彙,設計師在牆裏用輕鋼龍骨新建一層隔牆,並在上麵開異形的洞與外立麵相呼應,同時弱化了原本方形的窗戶形式,也使視線更加通透。室內空間中通過窗戶引入自然光,並搭配專業照明係統,使空間在日光及人造光中形成完美平衡。

The white walls used to be decorated with square windows. To standardize the design language, the designer builds another barrier by using light steel joist inside the walls and creates anomaly holes on the top to fit in the outside design and smooth the vision of original square-like appearance of windows, making the overall arrangement more clear. The nature light let out through windows and professional lighting system achieves a perfect balance between sunlight and artificial light for this space.

 

上海梵誓珠寶上生新所店,平介設計,上海珠寶店設計,零售店設計,平介設計作品,上海體驗店設計,項目投稿

△主展示區 ©朱潤資

 

上海梵誓珠寶上生新所店,平介設計,上海珠寶店設計,零售店設計,平介設計作品,上海體驗店設計,項目投稿

△次展示區 ©朱潤資

 

上海梵誓珠寶上生新所店,平介設計,上海珠寶店設計,零售店設計,平介設計作品,上海體驗店設計,項目投稿

△室內牆麵造型洞  ©林圭佳棟

 

室內部分設計改變了原本單一、基礎的空間形態,通過打造一個藝術裝置成為空間的主展覽區,並營造了展示、交流、打卡、銷售等不同空間體驗的多樣性,達到了在有限空間內的無限延展形態,並且這些不同的功能順應整個空間的流動線性形式也形成動態而連續的動線,讓人們在逛店的過程中體會不同的空間感受。同時這個流線型藝術裝置在適應不同類型的銷售、展覽和活動舉辦的同時,為顧客的觀看動線賦予了更多的延續性與多樣性,同時也成為當今年輕人熱衷的網紅打卡點。通過這樣手段來塑造結構,是對功能布局的結構重組,也使得珠寶展銷區域擁有更完整、純粹的展示麵,從而獲得更清晰高效的流線與更大的空間視覺效果。

The indoor design has altered the tedious and simple spatial form to an artwork as the main exhibition area with a variety of functions such as exhibition, communication, tourism and sales, achieving unlimited forms within limited area. Moreover, various functions coordinate with the streamlines of the whole space and then also become dynamic and continuous moving lines, providing people with refreshing experience while they are shopping. As the streamlined artwork fit in with the sales, exhibition and activities, it offers the customers more continuity and variety in terms of viewing the moving lines, and it also become a poplar site for visiting among the young group. Such method of design restructures the function layout, and create a more complete and authentic space for jewelry sales, achieving a more clear and efficient streamlines and greater space visually.

 

上海梵誓珠寶上生新所店,平介設計,上海珠寶店設計,零售店設計,平介設計作品,上海體驗店設計,項目投稿

△主展示區 ©朱潤資

 

在元素的提取方麵設計師選擇采用同一種元素構造室內空間,用統一的設計手法營造出多樣化的功能與空間。將片狀曲麵元素進行形式上的轉譯,將不同功能用相同的片狀曲麵元素實現,使整體統一,局部添加細節變化,並配合以細膩緊致的燈光,從而達到更為純粹的空間。

As for the elements, the designer chooses the same element to construct the space and create multiple functions and spaces by the same method. The transformation of elements of curved flakes and the realization of the same curved flakes with different functions standardize the style of whole space and add details and variations to some parts, along with exquisite and compact lights, creating a rather authentic space.

 

上海梵誓珠寶上生新所店,平介設計,上海珠寶店設計,零售店設計,平介設計作品,上海體驗店設計,項目投稿

△主展示區 ©朱潤資

 

流線型桌麵與牆麵既交相呼應又獨立分隔,在功能上對不同空間進行定位,將珠寶展示、洽談區、銷售區、洗手池等所有功能整合串聯起來,滿足門店所有需求,傳達空間視覺連續性與統一性,並且桌椅的組合符合人體工程學的要求,讓體驗舒適度達到最大值。在平衡功能和形式的基礎上,讓顧客感受到流暢且充滿未知感的購物體驗。

The streamlined desktop and the walls fit in with each other but also stand alone on their own. Different spaces with different functions connect all the areas altogether such as jewelry exhibition area, negotiation area, sales area and washing basin to meet all the demand in the store and convey continuity and similarity of spatial vision. In addition, the design of complex of desks and chairs is in accordance with the Ergonomics and improve the level of comfort to the maximum. On the basis of balancing functions and forms, the design enables the customers to shop smoothly yet unpredictably.

 

上海梵誓珠寶上生新所店,平介設計,上海珠寶店設計,零售店設計,平介設計作品,上海體驗店設計,項目投稿

△多功能打卡桌 ©朱潤資

 

谘詢桌麵采用白色的烤漆板,桌立麵上的平行線條消解了視覺上帶來的沉重感。地麵工藝采用地膠,灰色調與整個空間相協調。

The information counter is made up of the white lacquer board, and the parallel lines on the table facade makes it look more comfortable. The badminton glue is used to build the floor, and its gray tone is coordinated with the whole space.

 

上海梵誓珠寶上生新所店,平介設計,上海珠寶店設計,零售店設計,平介設計作品,上海體驗店設計,項目投稿

△次展示區 ©朱潤資

 

場地原本有四根較粗的柱體影響顧客的視線,設計師采用鏡麵材質包裹柱體,鏡麵反射錯落的深灰色牆麵和流線型裝置,結合點點燈光,營造礦洞充滿神秘感的效果,同時使室內空間更加有開闊感。

The four thick cylinders used to stand in the way when customers look at the space. Then the designer uses mirror materials to cover the cylinders on which the mirrors reflect the structure of dark-gray walls and streamlined artwork with spots of lights, creating an atmosphere of mystery and making the inner space “wider”. 

 

上海梵誓珠寶上生新所店,平介設計,上海珠寶店設計,零售店設計,平介設計作品,上海體驗店設計,項目投稿

△ 主展示區 ©朱潤資

 

上海梵誓珠寶上生新所店,平介設計,上海珠寶店設計,零售店設計,平介設計作品,上海體驗店設計,項目投稿

△鏡麵柱子  ©林圭佳棟

 

持續展開和流動的空間結構為室內空間賦予了最顯著的特征。中心的網紅打卡裝置大大柔化了大空間的空曠感,展現了一種平衡之美。重複的片狀曲麵元素將打卡裝置和牆麵相統一。這一係列的設計最後讓顧客恍如在洞穴中尋覓寶石,提供給顧客一個獨有的純粹的消費體驗,一個不止於形式,也注重使用功能、人的參與及使用感受的空間解決方案。

The structure with continuity of expanding and flowing becomes the most distinctive feature of indoor space. The popular artwork at the center greatly relieves the hollowness of loads of rooms, showing a beauty of balance. The repeated curved elements of the artwork make it fit in with the style of walls. This series of design makes customer feel like an adventure of treasure hunt and provides them with unique and authentic shopping experience. Far from the forms, the space solution also attaches the importance to the functions, customers’ participation and experience.

 

上海梵誓珠寶上生新所店,平介設計,上海珠寶店設計,零售店設計,平介設計作品,上海體驗店設計,項目投稿

△展示牆 ©朱潤資

 

展櫃細節

Detail of the showcase

 

展櫃創新地將藝術展示和零售兩種功能融合在一起,展現了品牌特色並具有藝術性。飾品在深灰色盒子的映襯下如同寶石般發出耀眼奪目的光。

The showcases creatively integrate art exhibition and retail, revealing the brand’s characteristics and artistry. The accessories glow like gems against the dark gray box.

 

上海梵誓珠寶上生新所店,平介設計,上海珠寶店設計,零售店設計,平介設計作品,上海體驗店設計,項目投稿

上海梵誓珠寶上生新所店,平介設計,上海珠寶店設計,零售店設計,平介設計作品,上海體驗店設計,項目投稿

上海梵誓珠寶上生新所店,平介設計,上海珠寶店設計,零售店設計,平介設計作品,上海體驗店設計,項目投稿

上海梵誓珠寶上生新所店,平介設計,上海珠寶店設計,零售店設計,平介設計作品,上海體驗店設計,項目投稿

 

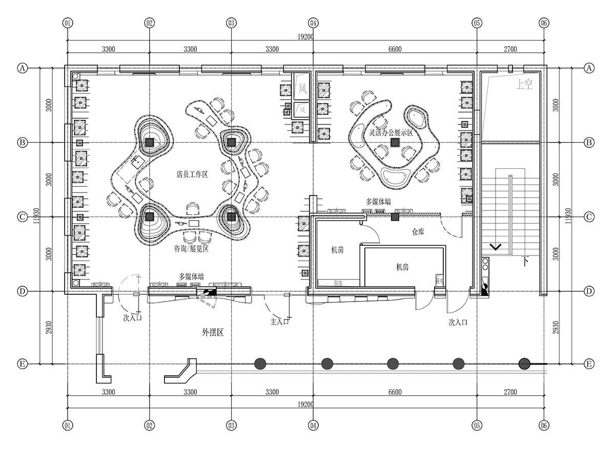
上海梵誓珠寶上生新所店,平介設計,上海珠寶店設計,零售店設計,平介設計作品,上海體驗店設計,項目投稿

△ 平麵布置圖 ©平介設計

上海梵誓珠寶上生新所店,平介設計,上海珠寶店設計,零售店設計,平介設計作品,上海體驗店設計,項目投稿

△ 軸側圖 ©平介設計

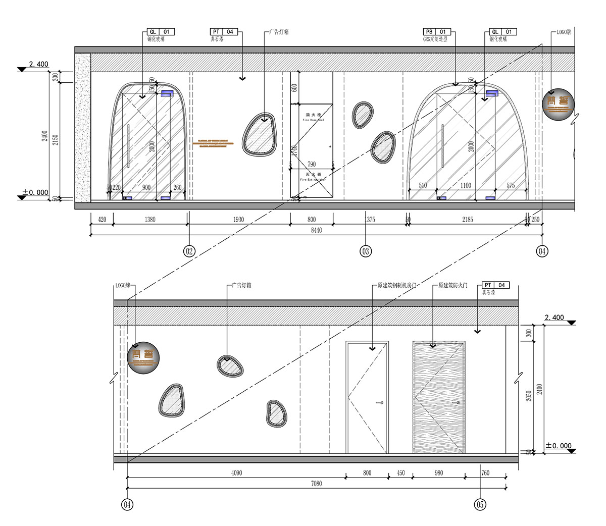
上海梵誓珠寶上生新所店,平介設計,上海珠寶店設計,零售店設計,平介設計作品,上海體驗店設計,項目投稿

△ 外立麵圖 ©平介設計

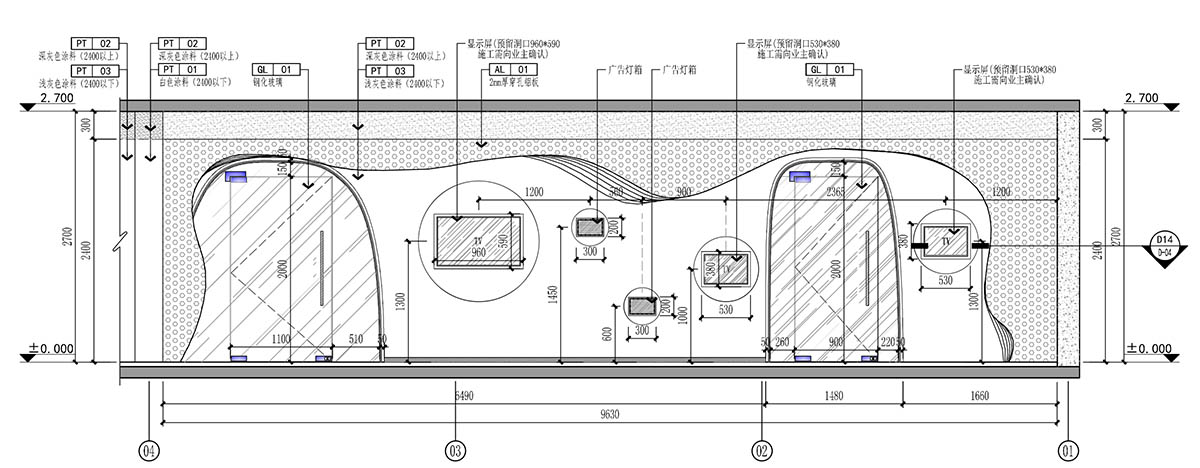
上海梵誓珠寶上生新所店,平介設計,上海珠寶店設計,零售店設計,平介設計作品,上海體驗店設計,項目投稿

△ 室內立麵圖 ©平介設計

上海梵誓珠寶上生新所店,平介設計,上海珠寶店設計,零售店設計,平介設計作品,上海體驗店設計,項目投稿

上海梵誓珠寶上生新所店,平介設計,上海珠寶店設計,零售店設計,平介設計作品,上海體驗店設計,項目投稿

△ 門頭大樣圖 ©平介設計

 

發表回複

您的電子郵箱地址不會被公開。 必填項已用*標注