全球設計風向感謝來自 一點設計 的住宅大平層項目案例分享:
這套住宅位於麓湖邊上,身處山林、草地、湖泊之間,自然環境十分優美的迷人居所。
屋主是一對年輕夫婦,他們從事設計相關行業,喜歡旅遊、喜歡自然,收集潮玩,設計師由此切入空間的設計,在這一套建築麵積為171平方米的住宅,從空間動線、功能設置、收納係統和軟裝營造四個層麵,打造了一處具有極簡主義和潮流時尚居住空間。
設計從住宅入口入手,玄關處地麵采用水磨石地磚,對空間進行分區。整麵洞洞板與深淺櫃設計,開放與私密的結合。鏡麵的使用,讓原本狹長的空間更加通透又可豐富空間層次,顏色及肌理的對比,是一種趣味,更是一種藝術的演繹,麵與麵、線與線之間的聯係,優雅的結構處理方式,營造了一種極簡氣氛。
從入口一直延伸到底的長廊,串聯起包括畫廊、次衛在內的居住空間,利用白色櫃體與木飾麵將房門隱藏在內,直通客餐廳,它們位於住宅的盡頭,從這裏望去,麓湖的美麗景致盡收眼底。
空間整體采用經典的黑白木色調,展現親近自然之感,整個房間看上去好像一件藝術品,空間的概念與生活空間的自然、純淨之美融為一體,空山基機械霸王龍、KAWS玩偶、專為千年隼定做的茶幾,無疑能讓客廳增加趣味性與靈動感,代表著屋主對設計與藝術的熱愛,讓整體空間充滿時尚。
整體空間營造一種自然樸質又富有氣質的極簡設計,木色與黑白色調的融合,賦予空間無限的想象,同時兼顧藝術及品味,讓人感受到家的溫暖,真正體驗舒適的生活氛圍。
木色溫潤,爵士白清爽,黑色跳躍,大麵積原木色桌麵與白色櫃體吧台給予視覺的舒適。靜與動、黑與白,方形桌和圓形燈的碰撞,是藏在舒適下的靈動。
架高的地台為空間做了分割,延伸了視覺感受,讓空間有了生趣與生活的味道,周末的閑逸午後,隨手從架上取下一本書席地而坐,看陽光在緩緩推移,享受著無時間感的寧靜。
柔軟的寫意懶人沙發,創造一種自由的個性化設計,空間的簡潔性並不會影響住宅的質量和舒適性,而家具風格的簡單、低調,則進一步迎合了屋主的生活方式。
書桌與吊櫃中間做了鏤空的處理,猶如借景空間營造出一種微妙的變化,實現了半開放式的空間互通,幹淨、整潔、素樸的灰色牆麵與淺色的木元素構成了一種純淨的語音,遍布空間各處,將人們的注意力引向對材質本身的思考與感受。
一麵木飾麵一麵水泥漆,形成小型畫廊,它是這套空間的亮點之一,底部暗藏燈帶,頂部軌道燈,扭動開關,整牆藏品隨之點亮,宛如屋主精神樂園的展廳。
主臥也安裝了隱形門,拉開隱形門,便可進入主臥,利用魚骨拚接的木地板來區分主臥,用到頂櫃體做為隔牆,將臥室分隔成睡眠區與衣帽收納區,
木飾麵與白色烤漆板的交錯融合,線條的幹淨利索,組合成衣櫃、書桌、床頭櫃、床頭背景牆一體的設計,這個住宅的主色調給人一種溫暖、舒適的感覺,力求實現與簡約空間造型的完美平衡。
木地板與飾麵成為臥室空間的主導材料,從公共區域延伸貫穿至主臥,營造出空間的一致性,在材料和家具的選擇上,設計師也花費了大量精力,以確保他們的實用性和人性化。
主衛牆麵與地麵采用水磨石磚一體設計,在視覺效果上更為整體,幹濕分離,懸空洗手台分為上下兩層,增大可利用空間,美觀也可擺放常用物品,鵝蛋型啞光浴缸,弧形優美,讓衛浴空間散發出不一樣的視覺魅力。
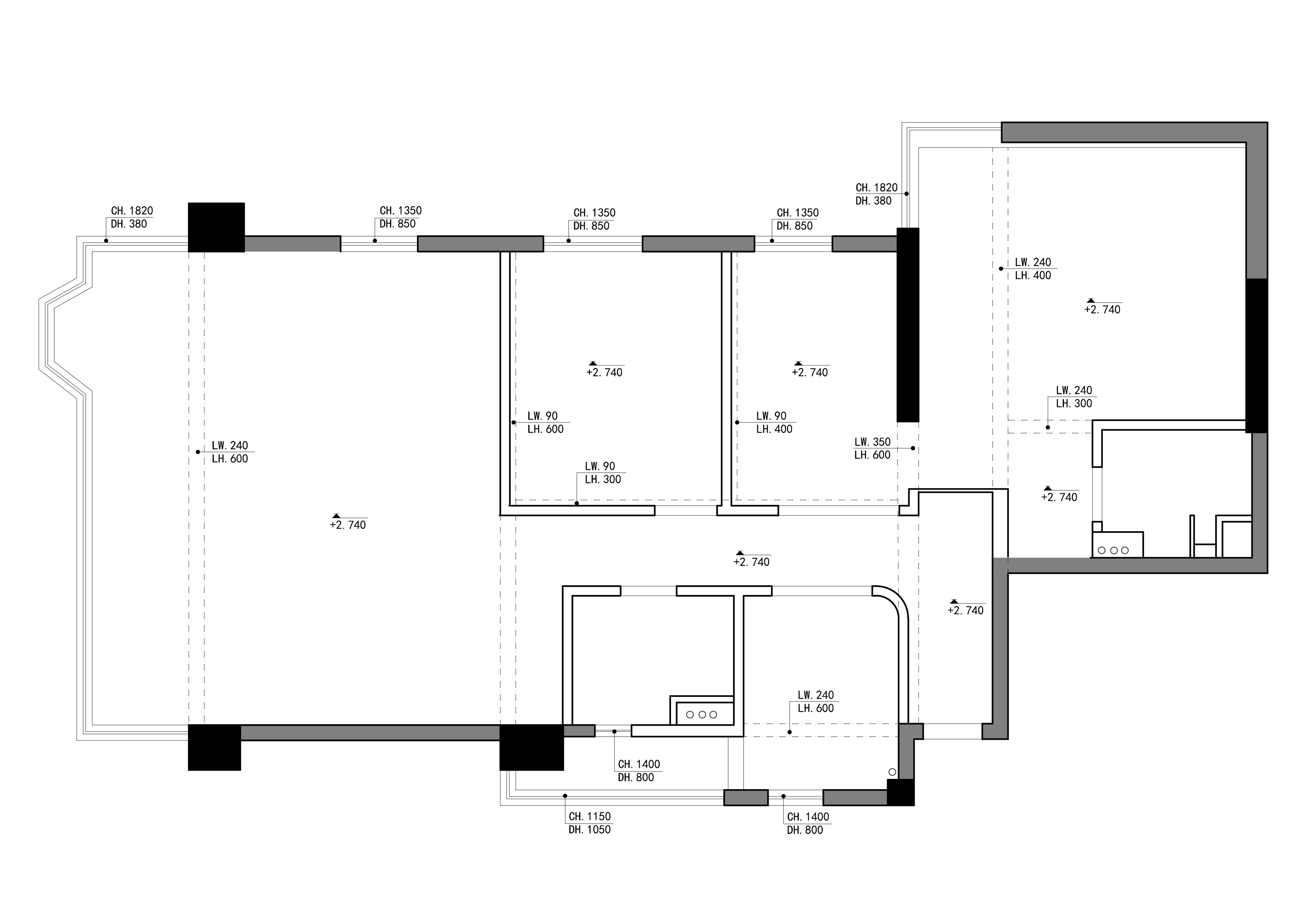
Δ 原始結構圖
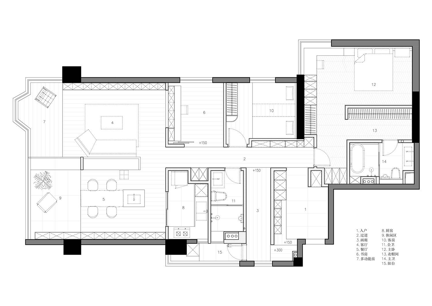
Δ 平麵布置圖
Δ 軸測圖
項目地點 | 中國·廣州
設計機構 | 一點設計工作室
設計主創 | 吳佳
施工單位 | 思域精工
項目麵積 | 171㎡
竣工時間 | 2020年9月
項目攝影 | RICCI
主要材料 | 科定木飾麵、BoConcept、Camerich、宅匠木地板、Flos、泰斯特灰泥、B & O音響等















































