全球設計風向感謝來自 浙江大學建築設計研究院 的公共空間項目案例分享:
嘉善,是長三角生態綠色一體化發展示範區、全國綜合實力百強縣之一,更是全國唯一一個國家命名的“縣域科學發展示範點”。
∇ 西立麵
∇ 沿街南側
嘉善圖書館和博物館,在建設之初即希望作為一個文化綜合體,可以成為當地市民日常訪問的公共文化活動場所,極大的提升城市的文化活力。
項目自身用地麵積不寬裕,缺乏足夠的空間來容納大人流量的室外公共活動場所,雖然在用地西側貼鄰有規劃中的城市開放景觀空間,因其建設計劃滯後,設計之初我們隻能立足於在地塊內挖掘空間。
∇ 東側入口透視
∇ 西側透視夜景
在自身用地比較緊張的條件下,項目設計以中央虛的開放空間為核,彙聚三個建築體量,圍合出人流集會場所,並成為圖書館、博物館各自門廳的室外延續。
∇ 內廣場透視
它不僅是連接兩館的交通空間和到訪者休憩的廣場空間,也可作為室外展示,假日書市等更豐富的市民活動場所,體現了城市“知識殿堂,文化客廳”的形象和功能內涵。
三個體量分別占據符合其功能的位置。東南角臨十字路口為博物館,立麵封閉,並形成幹淨利落的城市標誌性視角。
∇ 街角城市視角
∇ 博物館室內中庭
∇ 博物館側廳
北麵臨河為圖書館,南北兩麵均有足量的采光,並被博物館阻隔而遠離喧囂的城市道路。西南角臨城市開放景觀空間是共享區,包含報告廳、簡餐等兩館共享的設施。
∇ 北側沿河透視
∇ 圖書館休息區
∇ 圖書館中庭
∇ 圖書館閱覽室
嘉善地處浙北,與上海、江蘇接壤,水網密布,船運發達,明清時期窯業興盛,多產“京磚”,史稱“千窯之鎮”。內庭形態設計靈感來源於當地的磚窯空間,這個被抽象化了的現代“磚窯”空間是關於延伸建築邊界非常有意義的嚐試,並模糊了室內和室外、開敞和安靜、公共和私密之間的界限。
∇ 南入口看內廣場
建築外表平整樸實,飾以平整的、體量化的淺色石材幕牆,並有細致的紋理對比。內立麵模仿層層疊砌的構造方式,塑造了磚紅色玲瓏曲麵。這種內外對比隱喻了平凡外表下“內藏珍奇”的構思,使整座建築物如原生璞玉剖開後透露光華,又如一座城池收藏文化與財富,呼應了“博庫珍窯”的主題。
∇ 石材幕牆細部
∇ 內院廣場玻璃幕牆細部
∇ 總平麵圖
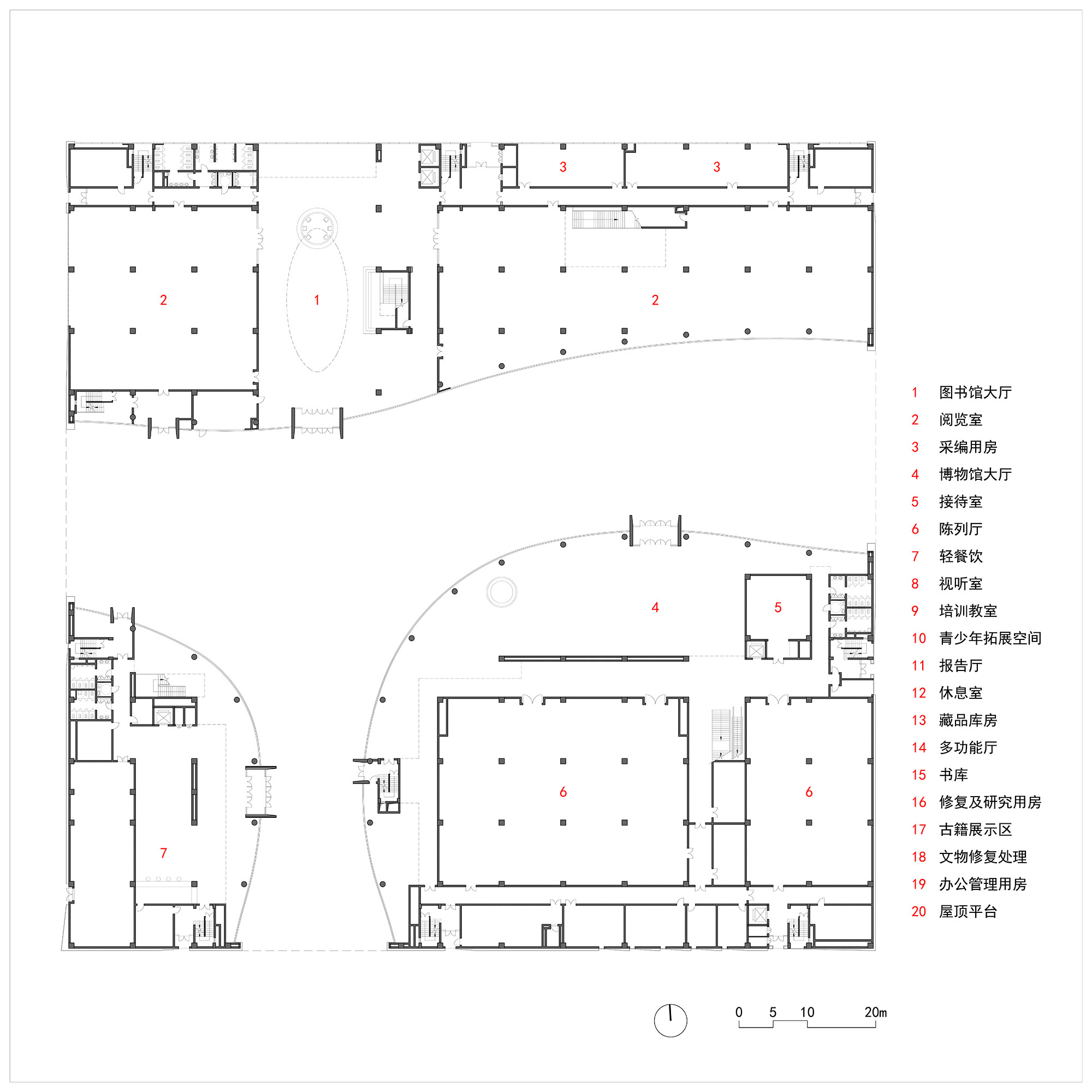
∇ 一層平麵圖
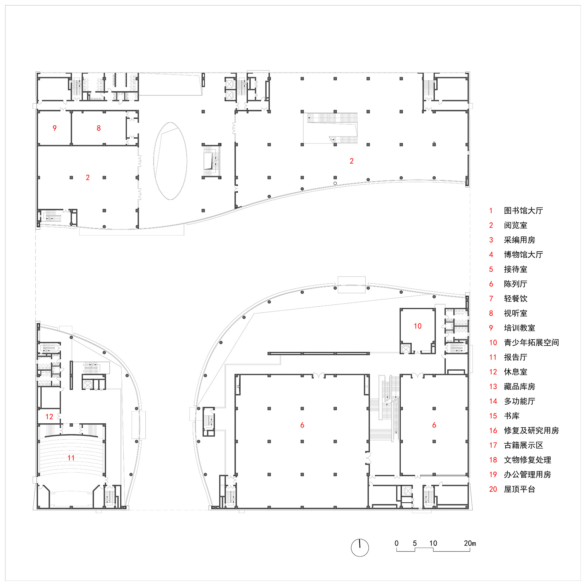
∇ 二層平麵圖
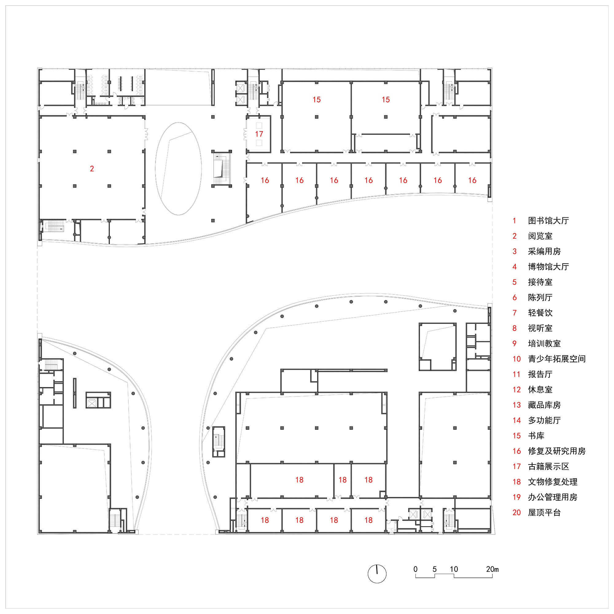
∇ 三層平麵圖
∇ 四層平麵圖
∇ 五層平麵圖
∇ 立麵圖
∇ 剖麵圖
項目信息
項目名稱:嘉善圖書館、博物館
項目地點:浙江 嘉善
設計單位:浙江大學建築設計研究院(http://www.zuadr.com/)
建築麵積:4.78萬平方米
建築設計:楊易棟、徐若峰、林再國、張衡、張鵬飛
結構設計:張明山、夏亮、徐銓彪
機電設計:龔增榮、董紹兵、楊毅、楊國忠、黃正傑、劉海峰、餘理論、王雷
幕牆設計:杭飛、俞灝
室內設計:楊易棟、徐若峰、林再國、駱靖巍、張鵬飛
景觀設計:夏繼明
照明設計:楊欣
建築攝影:趙強

































