公共建築的“更新、複用、改造與可持續”
The Renewal、Reuse、Renovation and Sustainability of Public Building
“拆除是一項簡單且短期的決定,”安妮·拉卡頓 (Anne Lacaton) 說。“這是對很多東西的浪費— 能源的浪費、材料的浪費和曆史的浪費。”
“Demolishing is a decision of easiness and short term,”said Anne Lacaton. “It is a waste of many things – a waste of energy, a waste of material, and a waste of history.”
建築的生命感在於時間上的停留,它與使用場景發生緊密聯係。但同樣建築也有自己的生命周期,無論是建築自身機能的衰退,還是社會對其功能需求的改變,或是地方政策對其提出全新要求,這些都成為舊建築迎來煥然一新的契機。
The sense of life in architecture lies in the duration of time, which is closely related to the usage scenario. However, buildings also have their own life cycle, whether it is the decline of the building’s own functions, changes in social demands or new requirements by local policies, all of which become opportunities for old buildings to be rejuvenated.
改造:建築與空間功能的改變
Renovation: Changes in Architectural and Spatial Functions
「溧」城市書房 位於溧陽市天目湖度假景區,它作為政府公益型項目,實現城市共享文化空間的便利性,提供給市民及遊客 24 小時免費閱讀書籍的公共空間。該建築改造前為辦公場所,政府對它提出新的社會功能,以適應公共生活需求的同時,體現對公眾的人文關懷。
Li City Study is located in the Tianmu Lake Resort in Liyang City. As a government-sponsored public welfare project, it realizes the convenience of shared urban cultural spaces and provides a public space for citizens and tourists to read books for free 24 hours a day. Before the renovation, the building was an office. The government proposed new social functions for it to adapt to public needs while reflecting the humanistic care for the public.
在改造過程中,大犬建築設計 Greater Dog Architects 深度研究既有建築,植根於建築的過去,並對新的功能做出回應。對於場地環境,建造方式以及建築原有框架結構的尊重,建築師最大程度遵循可持續的原則,利用現有空間,在有限的創新框架中,營造一個文化與記憶的空間容器,一個共享閱讀與公共交流的場所。
During the renovation process, Greater Dog Architects conducted in-depth research on the existing building, rooted in the building’s past, and responded to the new functions. Respecting the site environment, construction methods, and the original frame structure of the building, the architects followed the principles of sustainability to the greatest extent, utilizing the existing space, creating a cultural and memory space container, and a shared reading and public communication venue within a limited innovation framework.
複用:建築框架的保留與再利用
Reuse: Retention and Reuse of Architectural Framework
該建築主體為地上三層,地下一層框架結構建築,內退的的半戶外入口與被刻意拉長的環形動線,將建築與馬路的喧囂進行適當的分離。
The building has three above-ground floors and one underground floor with a frame structure. The semi-outdoor entrance that is set back from the building and the deliberately extended circular traffic flow separate the building from noisy street.
∇ 原始場地
同時建築師將外牆拆除,裸露其舊有梁柱框架,對原樓板進行切割,並在建築主立麵上新增內退環形結構梁,以此帶來新的建築結構和室內樓板的變化,也進一步的凸顯其舊有框架結構體係的現代性語言。通過新舊結構語言上的對話,為建築外觀呈現出恰到好處的平衡。
At the same time, the architects removed the exterior walls, exposing the original beams and columns frame. They cut the original floor slabs and added new setback circular structural beams on the main facade. It brings changes to the new structure and interior floor slabs while further highlighting the modern language of the existing framework system. Through the dialogue between the old and new structural language, a well-balanced appearance is presented for existing building.
可持續:借用自然光線引入建築
Sustainability: Introducing Natural Light into the Building
大犬建築 Greater Dog Architects 設計團隊也對立麵的開窗形式進行了新的梳理,無邊框內弧形玻璃幕牆對話厚重的框架結構,凸顯清晰的建築輪廓。圍繞弧形幕牆增加了更多看向戶外的觀看角度,與外界自然實現連接:內弧落地玻璃的通透性與窗外天目湖的景色,形成照映成趣的景象,構建了湖水與建築的對話。
Greater Dog Architects’ design team also reorganized the form of window openings. The frameless inner curved glass contrasts with the heavy frame structure, highlighting the clear architectural contours. More viewing angles toward the outdoors are added around the curved wall, connecting with the external nature: the transparency of the inner curved floor-to-ceiling glass and the scenery of Tianmu Lake outside create an interesting interplay, establishing a dialogue between the lake and the building.
建築立麵上的外翻弧造型延續了內弧梁的形態語言,建立新的外立麵組合形式的同時,為室內創造了多樣的閱讀場景。在此造型基礎上,開窗係統由開闊變得更為私密化,外翻弧造型頂端細長的天窗,創造開窗與自然連接的另一種方式:抬頭望向天空,感受光與雲朵緩慢流動的詩意;
The outward-curving arc shape on the facade continues the form language of the inner curved beams, establishing a new exterior facade combination while creating diverse reading scenarios indoors. Based on this shape, the window system becomes more private, and the slender skylight at the top of the outward-curving arc offers another way to connect windows with nature: looking up at the sky, feeling the poetic movement of light and clouds.
通過對整棟建築交通動線的重新組織,運用圓柱形空間的螺旋樓梯,串聯各樓層的主要空間。 環形天窗引入自然采光的同時,進一步增加樓梯間的內外連接屬性。在建築改造策略上最大程度使用自然采光,使得原本封閉的“盒子”與外部環境產生多重的銜接方式,實現建築與環境的可持續。
By reorganizing the traffic circulation throughout the building and using spiral staircases in the cylindrical space, the main spaces on each floor are connected. The circular skylight introduces natural light and further increases the connection between the interior and exterior of the stairwell. In the building renovation strategy, natural light is maximized, creating multiple connections between the originally closed “box” and the external environment, realizing the sustainability of the building and its surroundings.
圓柱的輪廓清晰的顯露在外立麵,穿插在原有的梁柱框架體係中。灰色木瓦片是由回收的木頭重新染色並壓製而成的,它增加了建築的自然肌理,並帶給建築新的記憶與溫度。暴露的梁柱結構由紅棕色的外牆漆包裹,紅棕色與玻璃反射出來的同種顏色,模糊了內部的輪廓,由此愈加凸顯了木瓦片的自然肌理。
The clear outline of the cylinder is revealed on the facade, interspersed within the original beams and columns frame system. The gray wooden tiles are re-dyed and pressed from recycled wood, which adds natural texture to the building and bringing new memories and warmth. The exposed beam and column structure is wrapped in reddish-brown exterior paint, and the same color reflected by the glass blurs the outline of the interior, further highlighting the natural texture of the wooden shingles.
更新:新的機能延長建築使用
Renewal: Extending the Use of the Building with New Functions
簡潔的室內突出書籍的陳列與排放,通過對坡屋頂的形態語言塑造,建構詩意的沉寂閱讀空間。同時,坡屋頂結構的介入用以打破原建築樓板的封閉性,盡可能的打開上下樓層的空間關係,並融入多重功能:借用坡屋頂形態整合一層咖啡前台功能與一二層書籍陳列需求。同時,在書架設計中延續該造型,將其尺度縮小並懸挑在書架上方,用以陳列照明燈的暗藏。階梯一角形成聚合式的閱讀區域,陶土釉麵磚的手工質感,與粗糙質地的紅棕色地磚,與建築外牆構建了和諧的材料語境。
The simple interior highlights the display and arrangement of books, creating a poetic and quiet reading space through the shaping of the sloping roof form. At the same time, the intervention of the sloping roof structure breaks the enclosed nature of the original floor slabs, opening up the spatial relationship between the upper and lower floors as much as possible, and integrating multiple functions: the sloping roof form combines the first-floor coffee counter function with the book display needs on the first and second floors. The same design is continued in the bookshelf, with the scale reduced and cantilevered above the shelves, concealing the display of lighting. A staircase corner forms a clustered reading area, where the handmade texture of glazed ceramic bricks and the rough texture of reddish-brown floor bricks create a harmonious material context with the facade of the building.
除了建築外觀,交通動線,室內功能重新劃分之外,對建築也進行了機能上的更新,同時再利用過程中,所遇到的技術挑戰得到實質性的解決:設計團隊對建築的承重能力上做出最大限度的調整,以實現空間內部新的荷載;並且對這座 90 年代初的建築進行全麵的暖通係統改造, 重新設計了消防逃生,燈光應用係統等;對原建築不滿足抗震能力及構造措施要求的原始結構,進行測算與重新加固處理,使建築再次進入一個新的生命周期。
In addition to the redesign of facade, circulation, and interior functions, the building has also been updated functionally, and technical challenges encountered during the process have been substantively resolved: the design team made the maximum possible adjustments to the building’s load-bearing capacity to achieve new loads within the space; a comprehensive HVAC system renovation was carried out for this building from the early 1990s, along with the redesign of fire escape, lighting application systems, etc… the original structure that did not meet the requirements for seismic capacity and structural measures was recalculated and reinforced, enabling the building to enter a new life cycle.
對於天目湖景區而言,改造的建築雖是采用異質介入的方式,但是建築師始終堅持“恰如其分”的分寸感,讓舊有框架與新體塊之間形成合理的尺度。改建後的「溧」城市書房以全新的肌理融入城市與周圍環境,並在公共文化需求上帶來更多的活力。
Although the renovated building is different from the surrounding buildings in the Tianmu Lake scenic area , but the architect always insist on a “proper” sense of proportion, so that a reasonable scale between the existing framework and the new massing. The renovated Li City Study is seamlessly integrated into the city and its surroundings with a new texture, bringing more vitality to public cultural needs.
在中國城市發展從增量擴張轉向存量提升的背景下,對既存建築的再利用,實現它的可持續性。以及在克服原建築缺陷的同時,對它們進行合理的“治療”,以此延長建築的使用壽命。這樣對待建築的方式基於現狀認知,植根於過去,也同時對當下做出回應。它的重新使用不僅成為景區新的公共建築地標,也為建築帶來更多的記憶,同時體現了建築作為長久性存在的重要性。
In the context of urban development shifting from incremental expansion to stock upgrading in China, the reuse of existing buildings achieves their sustainability. And the reasonable “treatment” of the shortcomings of existing building to extend the service life of the building.
This approach to architecture is based on the recognition of the present, rooted in the past, and at the same time, responding to the present. Its reuse not only becomes a new public architectural landmark for the scenic area but also brings more memories to the building, reflecting the importance of architecture as a long-lasting presence.
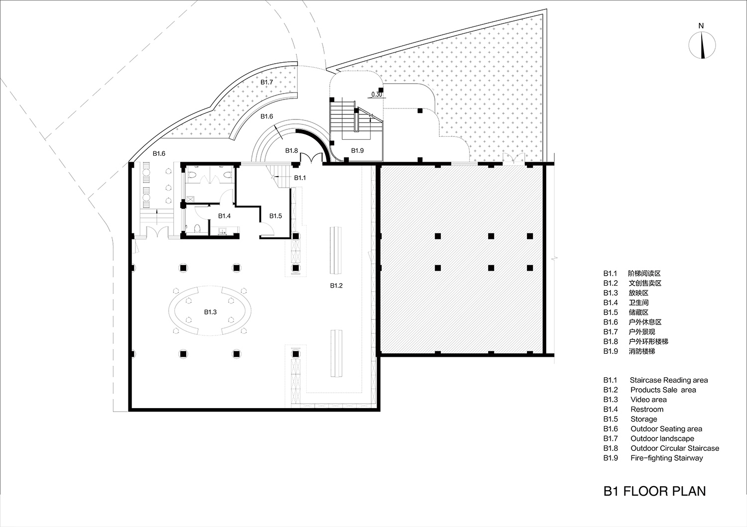
∇ 負一層平麵圖
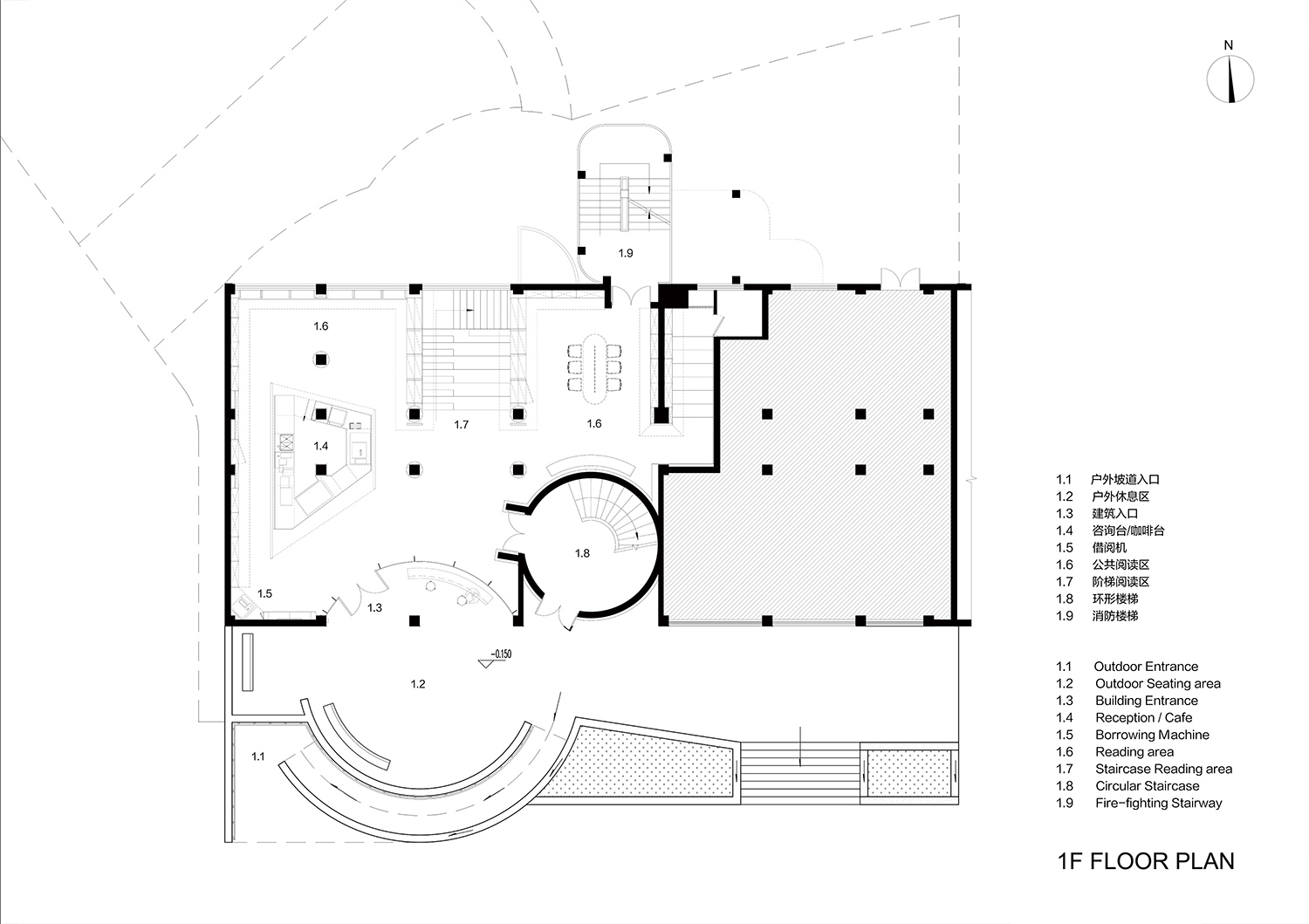
∇ 一層平麵圖
∇ 二層平麵圖
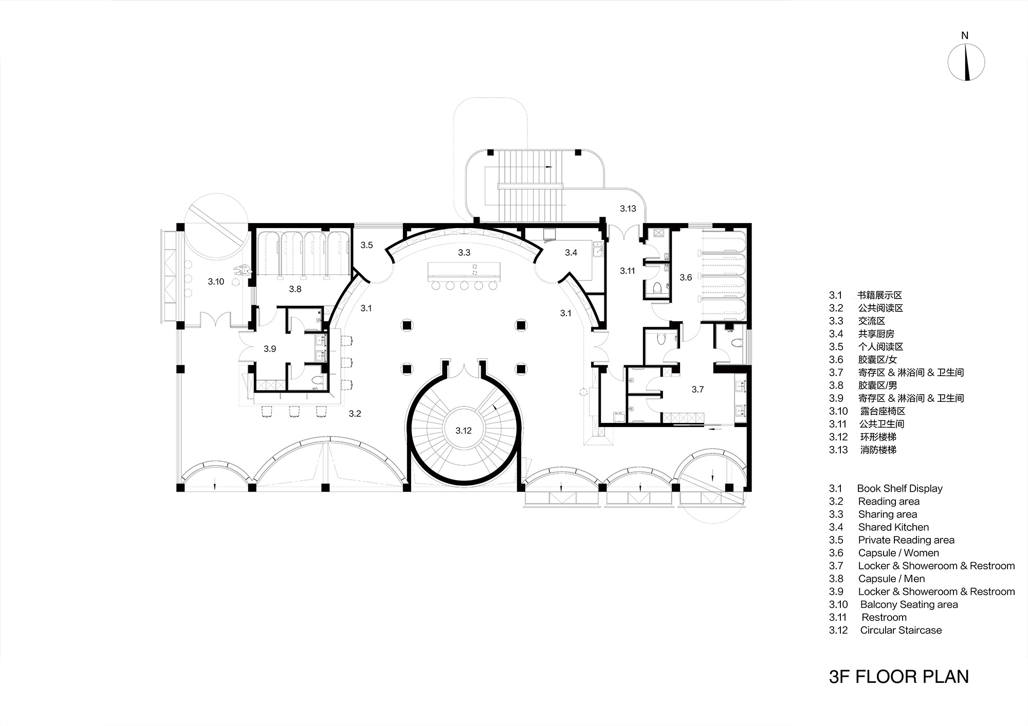
∇ 三層平麵圖
項目信息
建設單位:江蘇天目湖控股集團有限公司
建築與室內設計:大犬建築 Greater Dog Architects
合作單位:上海都市建築設計有限公司
主持建築師:辛晉 胡誌紅
設計團隊:何曼妍 郭林昂 龔龍林 沈修文 吳秋晨 唐瑗蔭 王少清
結構設計:上海頤景建築設計有限公司
項目攝影:Metaviz Studio
項目地址:江蘇省溧陽市天目湖鎮迎賓大道375號
建築麵積:2387 m²
設計時間:2021-2022
完成時間:2023.06
Client: Jiangsu Tianmu Lake Holding Group Co., Ltd.
Architecture and Interior Design: Greater Dog Architects
Collaborator: Shanghai Urban Architectural Design Co., Ltd.
Principal Architects: Jin XIN, Zhihong HU
Design Team: Manyan He, Keith Guo, Longlin Gong, Huge Shen, Alex Wu, Ella Tang, Vincent Wang
Structural Design: Shanghai Yijing Architectural Design Co., Ltd.
Project Photography: Metaviz Studio
Project Address: No.375, Yingbin Avenue, Tianmu Lake Town, Liyang City, Jiangsu Province
Building Area: 2387 m²
Year Began: 2021
Completion: June,2023













































