全球設計風向感謝來自 一夕 & 洪濤設計 的酒店空間項目案例分享:
宴會中心
宴會中心是冰雪酒店內最大的社交活動空間,擁有21個大小不等,從30平方米至1650平方米不同規格的多功能宴會廳及會議室,滿足不同規格的會議和活動需求。
設計融合了宏大的空間尺度與一絲不苟的細節把控,打造了一個主題酒店社交與活動中心。
∇ 冰雪酒店-宴會前廳




設計以藝術化的視覺呈現,帶來自由、詩意、夢幻般的生活體驗,同時以材質和科技為支撐,容納高效、多元的場景交互。
由一片雪花為鑰匙,為天花、柱頭、門頭、地花、地毯、門扇和藝術品等極富張力的定製化設計提供了靈感來源。
∇ 冰雪酒店-宴會廳


以白、金為主色調,營造出一個優雅精致的白色水晶宴會廳,空間極富商務宴會空間的穩重大氣,同時又強調了空間的序列感和儀式感。以當代的表現手法,以極具張力的空間及藝術品演繹空間的氣質之美。



水上婚禮亭
作為新人交換婚戒的地點,婚禮儀式亭一定是婚禮最為神聖的地方,設計采用純潔幹淨的白色係搭配,打造莊嚴神聖的儀式感。
∇ 冰雪酒店-水上婚禮亭



建築主體以白色鋼架配以鐵藝門框裝飾,加上大麵積的序列落地玻璃窗,讓這座唯美的建築與周圍環境融為一體的同時,使其內部空間更加寬敞明亮,並隨著一天中光線和天氣條件的變化,創造了一個戲劇性的展示。
穹頂的雪花GRG圖案,木質的婚禮儀式通道,觀禮座椅的鮮花裝扮……這一切都極力打造著一個浪漫婚禮的氛圍。


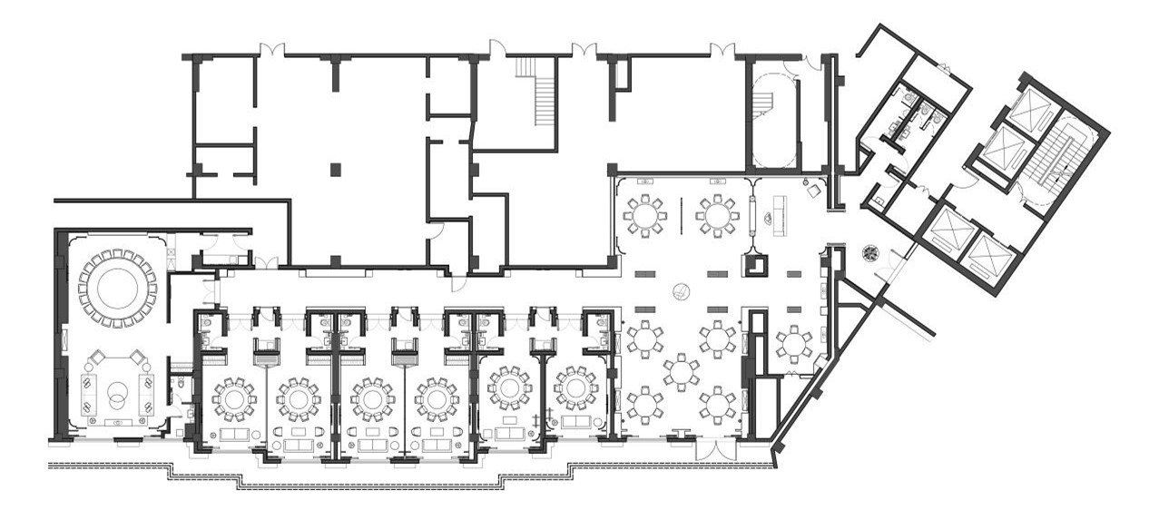
∇ 冰雪酒店-宴會中心平麵

∇ 冰雪酒店-水上婚禮亭平麵

項目信息
項目名稱: 鄭州銀基冰雪酒店宴會空間
設計公司:一夕 & 洪濤設計
主創設計師:邱希雯 易沙 王勇 林家琳
官網:http://yixidesign.cn
聯係郵箱:szyixidesign@126.com
完成年份:2020年7月
建築麵積:9800平方米
項目位置:河南鄭州銀基國際旅遊度假區
項目攝影:榫卯建築攝影
業主公司:銀基集團
主要材料:木飾麵、牆紙牆布、石材、木地板、地毯
時尚雅致的雪龍軒中餐廳設計極盡現代簡約之感又不乏當代中國元素。
∇ 冰雪酒店-中餐大廳



把現代用餐體驗和傳統中國飲食結合使其相得益彰,在優雅、別致的氛圍中,向賓客演繹粵菜風味之最。
∇ 冰雪酒店-中餐走廊

獨具東方韻味的山水意境以及金、紅色的表達,在設計師的手中都變成描繪空間的有力色彩,演繹出時代感。暖調的燈光效果與充滿質感的餐桌椅也與牆上的壁畫呈現出奢華與藝術交織的美感。
∇ 冰雪酒店-中餐包房





∇ 冰雪酒店-中餐平麵

項目信息
項目名稱: 鄭州銀基冰雪酒店雪龍軒中餐廳
設計公司:一夕& 洪濤設計
主創設計師:邱希雯 易沙 王勇 林家琳
官網:http://yixidesign.cn
聯係郵箱:szyixidesign@126.com
完成年份:2020年7月
建築麵積:680平方米
項目位置:河南鄭州銀基國際旅遊度假區
項目攝影:榫卯建築攝影
業主公司:銀基集團
主要材料:木飾麵、牆紙牆布、金屬銅、木地板、地毯、石材
以極地生態為主題的銀基冰雪酒店是目前中原地區最大、配置最豐富的親子度假酒店。酒店秉承人類與動物和諧相處的設計理念,為遊客精心打造了一個童話世界。
長頸鹿別墅套房
∇ 冰雪酒店-鹿園主題客房A



長頸鹿樂園中別墅套房的使命,就是完成一段與大小朋友短暫的但又極富體驗感的相處。











與長頸鹿做“鄰居”,住在大自然裏,房間窗外就是悠閑踱步的長頸鹿。身在客房、打開窗簾,就能與長頸鹿輕鬆互動,還能體驗長頸鹿“叫早”服務。
∇ 冰雪酒店-鹿園主題客房B








別墅套房的室內設計充分展現了來自長頸鹿和非洲大草原的設計靈感。在這裏,長頸鹿不僅僅是作為一個設計符號元素出現,我們希望把對長頸鹿的愛糅合進空間裏,讓每一間客房都帶有故事性,並用它來完成酒店和客人那段短暫而又歡樂的相處時光。
∇ 冰雪酒店-鹿園主題客房平麵圖

項目信息
項目名稱: 鄭州銀基冰雪酒店主題客房
設計公司:一夕& 洪濤設計
主創設計師:邱希雯 易沙 王勇 林家琳
官網:http://yixidesign.cn
聯係郵箱:szyixidesign@126.com
完成年份:2020年7月
建築麵積:400平方米
項目位置:河南鄭州銀基國際旅遊度假區
項目攝影:榫卯建築攝影
業主公司:銀基集團
主要材料:木飾麵、牆紙牆布、木地板、地毯、皮革、仿古磚、馬賽克









