全球設計風向感謝來自 九和空間設計 的樣板間項目案例分享:
知魚設計組 | 不用逃離就可以擁有得[放鬆感]空間
Zhiyu Design Group l A “relaxed” space you can have without escaping
《小森林》裏,市子離開了都市生活,回到一個叫做“小森”的鄉村,聞著春日裏櫻花的味道,品嚐著夏日剛摘下來的西紅柿,和鬆鼠一起撿拾秋日裏的核桃,踩著嘎吱嘎吱的冬雪等待納豆變得好吃。
In “Little Forest”, Ichiko left urban life and returned to a village called “Komori”, smelling cherry blossoms in spring, tasting fresh tomatoes in summer, picking walnuts in autumn with squirrels, and waiting for natto to taste good through the crunching winter snow.
畫麵的每一幀都讓人心生向往,但可能不是每個人都有勇氣回到這樣的生活,或者沒有一個叫做家鄉的地方等著自己回去。在都市生活裏插入一點微景觀,拉近與到不了的向往的距離。讓快節奏的空氣裏多一些自由的味道,即便去不了森林,也可以讓生活多一點味道。
Every frame of the picture is yearning, but not everyone has the courage to return to this kind of life, and there is no place named hometown waiting for you. Insert a little micro-landscape into the urban life to shorten the distance with the yearning that you can’t reach. Let the fast-paced air have a little more freedom, even if you can’t go to the forest, you can also make life more flavorful.
01 進門即嗅到大自然的原木色玄關
01 You can smell the log-colored porch of nature when you enter the door
原木與暖白的交錯組合,保證了日常物品的收納,內嵌式燈源帶來更加豐富的光影效果。擺放一點飾品,增加功能之外的審美,與印象裏暗黑擁擠的玄關相比,這裏才是家的味道。
The staggered combination of logs and warm white ensures the storage of daily objects, and the embedded light source brings more abundant light and shadow effects. Put jewelry and accessories to increase the aesthetics beyond the function. Compared with the dark and crowded porch in the impression, this is the flavor of home.
02 餐桌上的微景觀有增進食欲的療效
02 The micro-landscape on the dining table has the effect of increasing appetite
餐廳,並非隻是廚房的衍生品,它更是一家人享受美食與情感交流之所。餐桌上的微景觀讓食物和酒飲別有一番風味,也讓這個家多一點自然的味道。
The Dinning room, is not just a derivative of the kitchen, but a place for the family to enjoy food and emotional communication. And the micro-landscape on the dining table not only makes the food and wine have a different flavor, but also gives the family a little more natural flavor.
原木與暖白的搭配,百看不厭。茶餘飯後全家圍在長桌聊天、看書、學習,享受家庭時光。與餐桌緊密相連的手作區也是這個空間的亮點。
You can never get tired of the matching of logs and warm white. The whole family gathered around the long table to chat, read, study and enjoy the family time after dinner. The handmade area, which is closely connected to the dining table, is also the highlight of this space.
03 手作不失為一種別樣的生活體驗
03 Hand-made is a different kind of life experience
暫時逃離快節奏不止回到家鄉、去到大自然一種辦法,把注意力全部放在手上,不計較得失,隻是盡力做出自己腦海裏的畫麵,也是一種酣暢淋漓地放鬆。
Temporarily escape from the fast pace is not only a way to go back to home, to nature. To focus all on your hands, regardless of gains and losses, and try to make your own mental picture, is also a kind of fully relaxation.
04 百葉窗映射出迷人的光
04 Blinds reflect charming light
光線充足的陽台,靜謐舒適,屋外與屋內同時樹影搖曳時,就仿佛置身於森林深處。設計將生活的每一個細枝末節考慮在內。
The light balcony is quiet and comfortable, and when the shadows of trees outside and inside are swaying at the same time, it is as if you are in the deep forest. The design takes every detail of life into consideration.
一字形格局,讓視野更加開闊,流暢的空間動線為家庭成員創造了更多的互動。純淨的綠,百搭的灰,舒適的米,純粹的色彩搭配溫潤的原木,化繁為簡,返璞歸真,喚起自然與空間的交流互動,營造出格調十足的獨特氣質。
The line shape apartment pattern broadens the field of vision, and the smooth spatial movement creates more interaction for family members. Pure green, mixed gray, comfortable beige, pure color with warm logs, simplify the complex, return to nature, evoke the interaction between nature and space, and create a unique temperament full of style.
05 一圈圈的年輪是活過的痕跡
05 The annual rings are the traces of life
主臥的設計,剝離外界的紛繁複雜,一圈圈的年輪是時間掠過的漣漪,木製的紋理是大自然賦予人類的驚喜。
The design of the master bedroom strips off the complexity of the outside world, the annual rings are the ripples passing by time, and the wooden texture is a surprise given to human beings by nature.
溫暖的光線遊走於整個空間,原木的肌理自然灑脫。氛圍之外,頂天立地的衣櫃解決的收納難題,展示出那些精挑細選的衣服。
The warm light walks in the whole space, and the texture of the log is naturally free and easy. Outside the atmosphere, the storage problems solved by the upright wardrobe show those carefully selected clothes.
06 森林裏住著一隻綠精靈
06 A green elf lives in the forest
活力無限的綠,賦予空間自然純粹的氣質,一如天真爛漫的童年時光。帶著點兒調皮的布偶,充滿趣味的畫作,營造出溫馨又不失童趣的空間氛圍。
The vibrant green endows the space with natural and pure temperament, just like the innocent childhood. With a little naughty puppet and interesting paintings, it creates a warm and childlike space atmosphere.
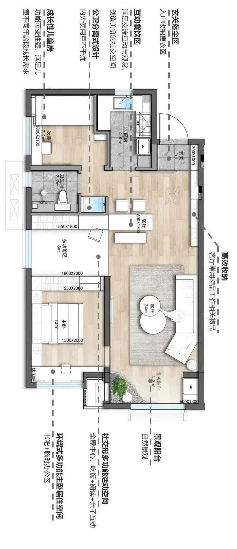
07 本案戶型圖 Plan
項目信息
項目名稱:固安拾光錦雲95戶型樣板間
項目地點:河北廊坊固安
開發商:大悅城地產 + 華夏幸福地產
設計團隊:九和空間設計
主創人員:孫繼東 劉源遠 吳娟
特邀顧問:張亞卓、董青、董鑫、王鈺琦、王澎、宋錦山
攝影:魯哈哈
模特:劉宇薇
設計麵積:90㎡
Project Name:Gu’an Shiguang Jinyun 95 model room
Project Location:Gu’an, Langfang, Hebei Province
Developer:Joy-city Property + China Fortune Land Development
Design Team:Jiuhe Space Design Co., Ltd.
Chief Creator:Jidong SUN, Yuanyuan LIU, Juan WU
Invited Advisers:Yazhuo ZHANG, Qing DONG, Xin DONG, Yuqi WANG, Peng WANG, Jinshan SONG
Photography by:Haha LU
Model:Yuwei LIU
Design Area:90㎡






























