小院位於北京市郊區,是建築師的家,我們希望改造後的院子能有舊日時光的片段,也能滿足現代人生活的需求,它應該依然是村裏的民宅小院,而不是郊區的洋房別墅,它應該是一種平凡的中國鄉村式住宅。
改造前項目
小院兒的北房建於上世紀80年代,雖然建築已老舊但由於一直住人,所以狀態還不錯,我們僅拆除了老舊變形的門窗和吊頂,露出原有的木柱和房梁,其餘部分都予以保留和修繕。我們把原有的彩鋼房拆除重建,這部分空間重新規劃設計成為廚房和儲藏室,再用一個入口門鬥將兩個分離的空間連接起來,把原本在戶外的衛生間與廚房功能挪進室內,這樣室內部分就形成了一個完整連貫的空間,冬天也無須為“出去”上廁所和洗澡而煩惱了。新建部分我們設計為簡潔的方塊建築,在外形上與老房進行了新舊對比,並也連接了過去與現在。
老房的屋頂是最樸實的北方民間做法,從房梁到檁條、從椽子到望板都是挑選後稍加修整的原木,我們希望把這一傳統構造保留並展示出來。既然是老房質感,我們希望這裏能再現一個溫馨的北方大炕,日常裏在炕頭喝茶、聊天、小憩甚至吃飯喝酒,這便是北方鄉居應需有的生活體驗。在炕邊的牆上我們設計了一麵照片牆,記錄了一家人十幾年來的生活點滴,它也是舊時光的另一種展現,濃縮了一段段往日的故事。
我們在客廳安置了壁爐,冬日裏雪花簌簌,屋內火光搖曳,柴火偶爾劈啪低語,在壁爐前可以靜靜的看著窗外發呆,溫一壺茶,看一本書。壁爐的青煙有種輕微的木柴味,配上瓦頂青天,這就是煙火氣。
原本的老房入口是在房屋正中,這是鄉村建築的常規布局。進門後便是客廳,夏日無妨,但是冬天一開門冷風就會灌進來。於是我們將入口重新設計移動至老房與新建築的連接處,增設一個小空間,這裏既是防風的門鬥,也是連接室內空間的交通樞紐,同時把入戶門處天花上的屋簷交接關係也保留裸露出來,這裏也是新舊轉換的開始。
客廳是小院的核心空間,我們把天花木結構都保留了下來,並且朝院子開窗,既有很好的采光,也跟院子有很直接的互動。家裏的貓咪14歲了,是隻腿腳不靈光的老貓,窗台的高度對它來說已是不可抵達的高峰,於是我們在窗台下留了貓咪觀景窗,讓它也能輕鬆的趴在窗邊觀望小院兒的四季。
房梁上包裹著一層層不同時期的貼紙,這是早年鄉村裝飾的習俗,它們是往日老房裏生活滋味的見證,我們將這些都清理保留了下來,這些舊時的葵花紋樣將繼續裝點如今的新院子。
原本院子的衛生間和廚房都在主屋外,處於一個很小的西廂房中,我們把這兩個功能調整至其他位置,而將小小的西廂房改造成為小院兒的入口門房。我們保留了它原有的簡易木梁結構,在天花上重新吊上草席頂,平日裏可以停放自行車,配合並行設計的影壁牆也使小院兒又了更好的隱私性。
我們在院內新種下了一顆石榴樹和一顆楓樹,所以冬天要包上防護,來年春天這裏因該能綠茵乘涼,也能在院裏吃飯、休閑。冬天的小院也別有風味,下雪的時候雪花落下的聲音都清晰可聞,院子裏安靜的仿佛時間都慢了。
廚房的外觀是簡潔的方塊形態,跟老房子有著明顯的時代差別,但我們依然選擇用原木結構做為建築屋頂的內部結構,旨在與老房的傳統木頂結構形成有延續性的對話,在新舊對比中亦有柔和的過渡,不為產生“對比”而對比,而是將不同時代的產物並列呈現出來。
如今許多家庭已經不是每日三餐都在家做飯,做飯的時候也不一定總是煎炒烹炸,我們的小院兒就是如此,廚房的使用率雖然依然很高,但更注重做飯過程中的互動,正在廚房中忙碌的主人也希望隨時跟在餐桌旁的朋友說話聊天。結合日常習慣,我們將麵積有限的廚房做成開放式,跟餐廳融為一體,這樣空間也顯得更開闊,人與人之間的互動也更直接流暢。
老房總跨度為六間房,我們將其中一間設為衛生間,這樣的衛生間會比較寬敞,也有獨立的窗戶,同時也可以滿足主人能擁有一個臨窗浴缸的心願。衛生間的窗外設計留有一個小天井,它是老房與新建築之間的空隙,是老房和新房之間的呼吸空間,也是專屬於衛生間的小院兒。泡澡時雖然看不到遠處,但能看見天空,特定的時間也會有一縷陽光灑進來。
設計和施工的過程中為了還原老房的傳統特色,我們做了很多細節上的處理,許多保留的建築關係其實是在施工過程中修繕出來的。純粹的保留很難兼顧實用,但是我們又需要保持老房的樣子,這樣才能形成空間體驗的代入感。比如牆麵的土牆質感,我們不能真的用黃土往牆上抹,也不能真的用夯土工藝重新夯出每麵牆,那樣可能整個房子都要拆了重建。一係列工藝做法在反複討論和爭執後逐漸被淘汰,最終我們決定用特定比例的調色水泥砂漿試試看,經過一次又一次的配比實驗,終於做出了理想的效果。
水泥砂漿試色
軸測圖
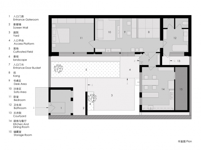
∇ 平麵圖
∇ 立麵圖
項目信息
項目名稱:冬日凡居
類別:老房院子改造
項目地址:中國北京
設計時間:2023年8月~9月
施工時間:2023年9月~12月
麵積:210平米
改造成本:35萬元
設計團隊:鱗見設計工作室
主創設計師:趙洋
設計團隊成員:馬思彤、段玲、任輝、劉釗
聯合設計團隊:小築設計團隊
軟裝設計團隊:玲和步堯空間設計工作室
施工團隊:大海工作室
攝影版權:鱗見設計工作室
委托方:趙洋、馬思彤
主材料:紅磚、木材、水泥





























