Design Haus Liberty | 意大利1000㎡白色湖景別墅設計
本項目是為已經退休的客戶和他的妻子以及偶爾來拜訪的孩子創造的第二個度假屋。客戶想要一種輕鬆的生活方式,包括景觀園藝、閱讀、遊泳或尾坡滑水、在南邊的陽光下起床、在浴缸中欣賞日落、冥想以及在露天平台上觀賞不同高度的水景。
現場實際場地的條件為別墅建築的外形界定了設計方向。設計團隊希望能深入每一個區域,讓每一個臥室都能體驗到不同的景觀環境。
因為別墅整體是按照體量來規劃設計的,所以設計師希望能夠創造一個中心花園。它會讓房子在感官上更大。但因為花園是露天的,不必一定要認為是這個空間的一部分。與此同時,它創造了一個無源的中央通風係統,也增建了亮度和室內空間的特征。
許多內飾甚至是天然的石材都是完全未經拋光和密封的。設計師非常希望能夠創造出粗糙和暴露的感覺。因為房子是白色潔淨的,設計師想在其中創造出對立感。
△ 項目場地位置圖
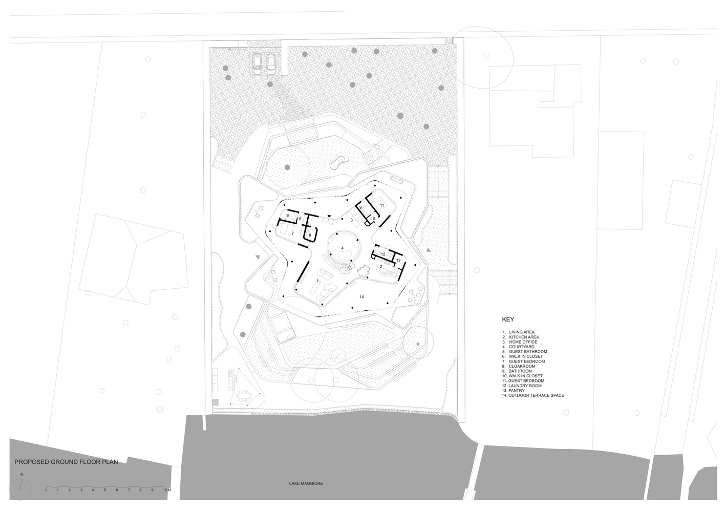
△ 一層平麵圖
△ 二層平麵圖
版權聲明:本站所有文章除投稿授權發布外,其他文字內容均為原創,享有著作權保護,未經許可不得以任何形式進行轉載(包括且不限於:媒體、網站、公眾號等)。所有項目照片/設計圖形版權歸原作者所有。本站部分內容源自網絡公開資源或用戶分享,如若侵犯了原作者的合法權益,可聯係我們進行處理。




































