ONE MORE BURO | 基輔110㎡單臥室公寓
基輔110平方米的寬敞單臥室公寓,為ONE MORE BURO提供了設計機會,可以創造一個完整而實用的生活空間,以及紋理,形狀和陰影的發揮。
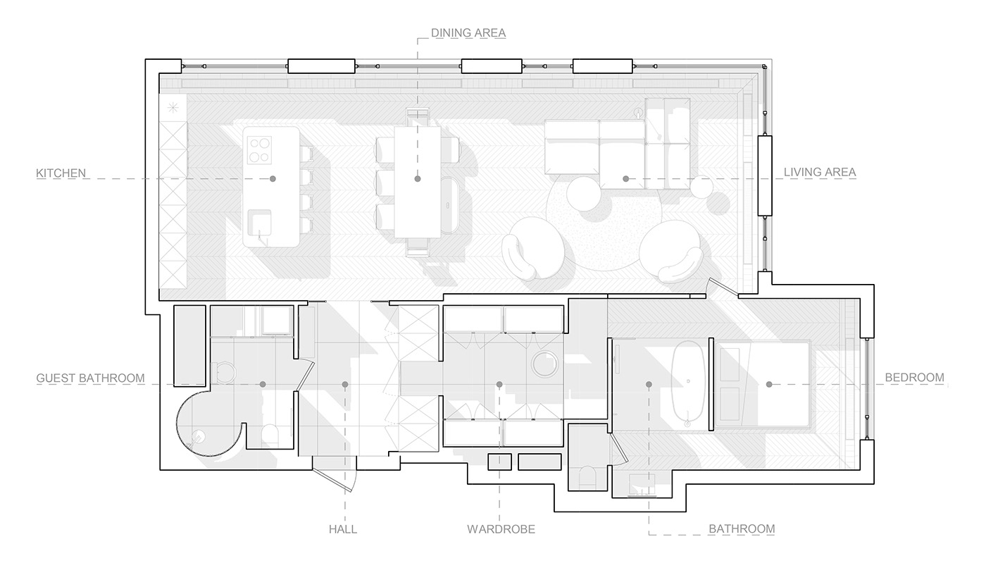
走廊
進入大廳後,便會發現自己在交通區域,從那裏您可以到達客用浴室(滑動門後還有一個公用設施)。還有一個小衣櫃,成功地藏在簡約的衣櫃門後,其中一扇後麵是通往公寓私人部分的通道-臥室,主浴室和主衣櫃。大廳中央的“出口”是通向廚房,餐廳和起居區的玻璃拱門。
廚房
廚房創建了一個不尋常的島台,該島台結合了吧台和舒適的烹飪區。其光滑的銅包層-氧化的氮化鈦-是該功能區和鄰近區域的主要特征之一。該解決方案有助於遮蓋廚房的啞光黑色外牆。按照設計師常用手法,嚐試將所有不必要的元素隱藏在立麵後麵,以使在起居區的桌子上或沙發上,公寓主人不會感到在廚房裏“坐著”。
用餐區
用餐區延續了廚房的氛圍,因為有一張大的黑色磨砂桌,椅子是單獨安裝。不同的顏色,形狀和紋理會造成某種混亂,但這是最初的意圖。桌子上方的照明增加了額外的重點。
生活區
起居區通過地板和牆壁的紋理與之結合。同樣,在這裏,設計師繼續嚐試形狀和紋理,以便在玻璃底座上看到桌子(好像它們是用花瓶快速製成的),不尋常的沙發和扶手椅。順便說一句,沙發本身的位置是不常規的:一部分“連接”到桌子和扶手椅之一,另一部分麵向窗戶。
臥室
臥室的調色板與客廳的色調緊密結合,甚至牆壁上的圓形凹槽也完全相同且位於相同的位置。這種設計的天篷床看起來簡潔,不會縮小空間,但這不是這裏的主要內容!磨砂的門後麵有一個衛生間,如果認為這太私密了,請不要下結論……主浴室隱藏在床前的牆後,這是對此的唯一劃分區域。有一個大的橢圓形浴缸和一個完整的淋浴。水槽位於馬桶入口的左側。 在床和浴室的右側,有一條通往主人衣櫃的通道-寬敞的壁櫥,配以透明的深色玻璃。




































