全球設計風向感謝來自 南築設計 NONE ZONE DESIGN 的住宅空間項目案例分享:
項目坐落於江南特色的新都會-無錫,用自然的色係與現代材料的相融合將原本常規結構下的普通空間重塑為一個亦溫情亦潮流的舒適居所。
The project is located in Wuxi, a newly-developed city with characteristics in the south of the Yangtze River. The integration of natural colors and modern materials reshapes the ordinary space under the originally conventional structure into a comfortable residence with warmth and fashion.
以體塊穿插的設計手法,純粹的材質細節和虛實錯落的表現形式,勾勒一步一景的體驗感受,打造湖畔都會的精致生活,讓詩和遠方近在咫尺。
With the design method of interwoven blocks, pure details of materials and mixed expression, outline the experience of ever-changing scenes step by step, to create an exquisite life of the lakeside city, so that the poem and dreams will be around the corner.
轉入即可見細心的布局,公區搭配大麵落地景觀窗,舒適格調不彰自顯。延伸感、燈光、材質、形態過渡層麵都經過精心拿捏,增添其細節之處的魅力。
The carefully-designed layout can be seen once entering. The public space is matched by large floor-to-ceiling windows, naturally highlighting the comfortable style. The sense of extension, lighting, materials and aspects of form transition have been carefully selected to add the charm of its details.
廚房、客餐廳自由連接,環繞型動線確保各功能區之間的順暢流轉,全景落地玻璃窗吸納光線讓其成為設計元素的一份子。
The kitchen and the guest dining room are freely connected. The circulation ensures walking around freely among all the functional areas. The panoramic floor-to-ceiling glazed windows absorb light and make it part of the design element.
廚房、吧台、餐廳自由的形式,讓尺寸感、舒適度以及便利性進一步提升,烤漆板與金屬貫穿始終,加由視覺和觸覺上的多元碰撞、對比,映襯一種微妙的開放與互動。
The free form of kitchen, bar and dining room further enhances the sense of size, comfort and convenience. The lacquering board and metal run through the whole surface, and the multiple collision and contrast of vision and touch reflect a subtle openness and interaction.
四季與空間交舞,變化出表情多樣的生活劇場,即便身處都會,依然可感受自然生命力。
The four seasons and the space dance alternately, creating a life theater with diverse expressions. Even in the city, you can still feel the vitality of nature.
設計師提取烤漆材質的黑白色反差,從材料、細部和營造方式上窺見輕巧風範。
The contrast between black and white baked enamels is extracted, to catch a glimpse of light-weighted style from materials, details and construction method.
玄關是空間的起始筆觸,以穿插手法設置多重收納係統,簡約與功能並存。開放式動線映射出紛呈的輪廓,引導著進一步的探尋。
The hallway is the starting point of the space, with multiple interwoven storage systems, both simple and functional. The open circulation reflects the various shapes, leading to further exploration.
主臥套房內設起居室、衣帽間及主衛,各功能空間呈開放遞進式布局,室內淺咖色皮革、紋理感強烈的壁布與黑色鏡麵碰撞,都市格調感油然而生。
The master bedroom suite is equipped with a living room, a cloakroom and a master bathroom, in which each functional space has an open progressive layout. The light coffee leather, wall covering fabric with strong texture and the black mirror in the interior offer a sharp contrast, so that the sense of urban style arises spontaneously.
開放式衣帽間通透、輕盈,既有力貼合需求,又讓不俗品味在細致的劃分中悄然流露。
The transparent and light-weighted open cloakroom powerfully fits to the demand, and also shows a good taste quietly in the meticulous division.
衣帽間用金屬、高級灰烤漆與皮革碰撞,層板之間以燈光渲染,傳達出精妙氣韻和雅致經典。
The cloakroom is finished with metal, senior gray baking varnish and leather, with a strong contrast. The laminates are rendered with light, conveying a delicate and elegantly classical charm.
主衛牆麵、地麵由同款石材一體而成,置入圓潤的鏡麵,可謂幹練之中恰到好處的融合與均衡。主衛雙台盆分列兩側令其更具趣味,鏡麵與櫃體以及台盆形成交互,在實用中彰顯方圓有度的設計美學。
The wall and flooring of master bathroom is constructed with the same stone, in which the rounded mirror is embedded, to show the right integration and balance in addition to the efficient style. The double basin of the main bathroom is arranged on both sides to make it more interesting. The mirror, cabinet and wash basin form an interactive relation, which is practical, but also can reveal the neutral design aesthetics.
次臥將灰色調在空間中發揮到極致,立麵上簡潔線條呈序列對望,完成靜謐、平和的情緒表達。
The gray tone is maximized in the secondary bedroom, and the simplified lines on the facade are orderly arranged face to face, to complement the quiet, gentle emotional expression.
低飽和度的色彩,奠定了次臥細膩舒緩的基調,透亮、潔淨又不乏活力流轉。
The color of low saturation establishes an exquisite and comfortable style for the secondary bedroom, which is transparent and clean, no lack of vitality.
多功能室延續了克製的設計手法,按照生活場景與動線邏輯進行重塑,劃分了隱藏式獨立收納間,讓空間保留了方正的格局,也避免了生活瑣碎物件的困擾,,讓居者在平靜與自由的氛圍得以休憩,同時又不失簡練與溫度。
The multi-functional room continues the restrained design method. It is reconstructed in accordance with the living scene and logic of circulation, dividing the hidden independent storage rooms, so that the space retains the square layout and avoids the trouble of trivial things in life. Hence residents can have a rest in the calm and free atmosphere, while never losing the simplicity and warmth.
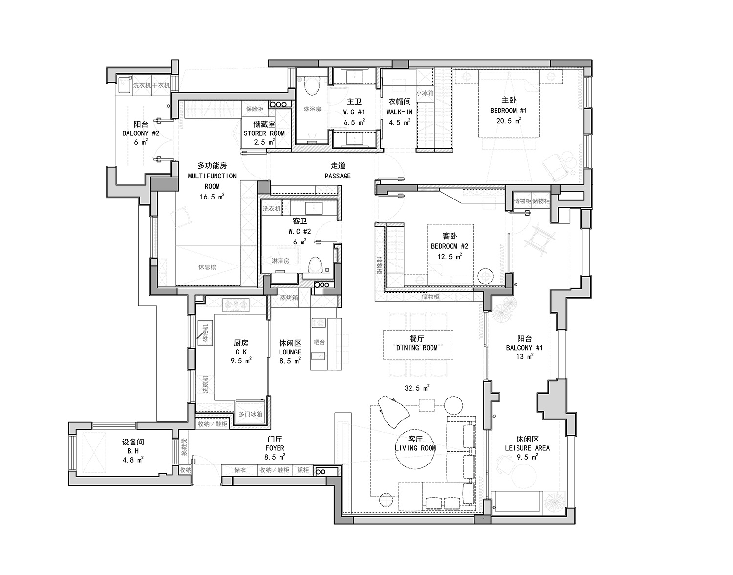
∇ 平麵圖
項目信息
項目名稱:溫和質感的湖畔住宅 Lakeside House with a Gentle Quality
項目地址:江蘇無錫濱湖區綠城香樟園
設計單位:南築設計 NONE ZONE DESIGN
設計總監:蘇陽
輔助設計師:姚育銘
完成時間:2020 年 5月 1 日
項目麵積:180㎡
















































評論(1)
好作品