全球設計風向感謝來自 深建築設計 的民宿空間案例分享:
項目位於河南林州,在太行山大峽穀的山腳下。鑒於現有自建房的環境過於簡陋難以滿足使用需求,業主委托將原有的傳統農家院拆除,新建一處極具特色的精品民宿。
The project is located in Linzhou, Henan province of China , at the foot of the Linzhou mountain Grand Canyon. Because the environment of the existing self-built houses is too simple to meet the needs of use,Entrusted by the property owner, the original traditional farmhouse was demolished.Build a unique boutique Civil housing.
∇ 項目外觀概覽 Project appearance overview ©郭明
項目所處位置左側為相似農家院,右側為民房,周邊環境並無資源可加以利用,好在地勢較高,背靠大山。踏勘時就考慮到在客房內可以遠眺風景不受遮擋,因此在設計中采用了錯落有致的建築形態。沿街立麵使用了大麵積的落地窗,並利用場地高差,使餐廳部分體塊伸出主體建築並懸浮於地麵,結合當地石材即可拾階而上。
The left side of the project location is a similar farmhouse,and the right side is Private house,There isno resources to develop from the surrounding environment ,Fortunately, The topography of the project is higher, which is adjacent to the back mountain.Therefore, when designing, it is considered that the distant scenery can be viewed in the room without obstruction.So it was designed to scattered ups and downs architectural form.A large area of floor-to-ceiling windows are used along the street facade,And by utilizing of the site height difference,So that some part of the restaurant extends out of the main building and is suspended on the ground,Combining with local stone to climb up.
∇ 俯瞰 Overlook ©郭明
整個民宿酒店由高低不同的體塊圍合出內庭院,通過樓梯、連廊、屋頂平台將各部分結合在一起,在視野較好的方向形成觀景平台與活動空間。客房圍繞庭院設計,庭院既承擔了客房和樓梯間的動線,也作為花園景觀可以滿足閑暇時光的消遣。
The entire homestay hotel is enclosed into an inner courtyard by different height section body ,Combining all parts together through stairs, corridors, and roof terraces, formed Landscape platform and activity space in the direction with a better view. The guest rooms are designed around the courtyard. The courtyard not only undertakes the movement ladescape between guest rooms and staircases, but also serves as a garden view to meet leisure time
∇ 接待看向庭院 he reception room look out to the courtyard ©郭明
接待通往院子的方向處於完全開放的狀態,穿過簷下走廊就進入了庭院內部,動靜之間並無明顯的界限。
It iscompletely open status along the direction from the reception room to the courtyard,passing through the corridor under the eaves and entering the courtyard, there is no obvious boundary between movement and static.
∇ 從通往樓梯過道看向庭院 Look towards the courtyard from the Corridor leading to the stairs ©郭明
∇ 走廊看通往三樓樓梯 The corridor looks at the stairs leading to the third floor ©郭明
∇ 庭院 courtyard ©郭明
院內走廊存在不同的高差變化,客人可通過一個跨過水景的小橋前往客房,或下幾級台階去往後廚。
There are different height differences in the corridors in the courtyard, and guests can go to the guest rooms through a small bridge that crosses the waterscape , Or go down a few steps to the back kitchen room.
餐廳和庭院之間用大麵積的玻璃來界定,通過樓梯走廊及簷下空間的延伸,在庭院內可以感受到南北向的空間深度。透過餐廳的室內,從街道上也可以瞥見酒店一隅。
The restaurant and the courtyard are separated by a large area of glass, Through the extension of the staircase corridor and the space under the eavesyou can feel the depth of the north and south space In the courtyard,Walking down the street, through the interior of the restaurant, you can also get a glimpse of the hotel.
∇ 入口接待區 Entrance reception area ©郭明
∇ 包廂 Private room ©郭明
∇ 頂層客房 guest room of top ©郭明
∇ 標準客房 standard guest room ©郭明
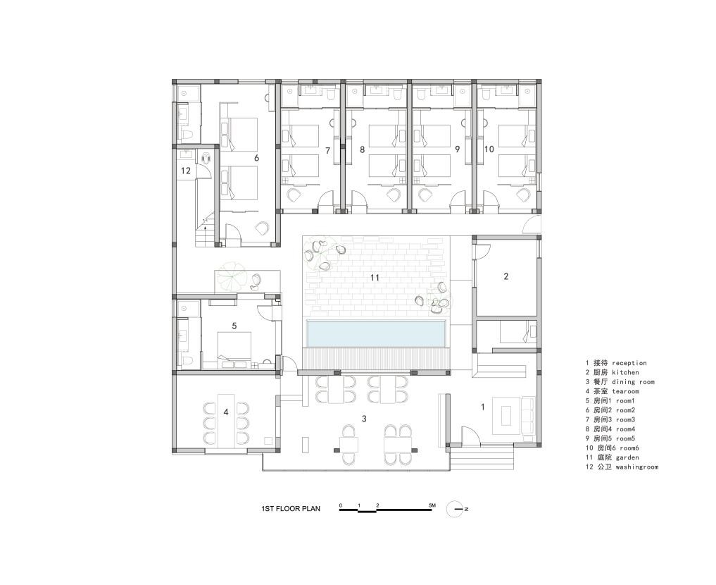
∇ 一層平麵 Floor plan of 1 story
∇ 二層平麵 Floor plan of 2 story
∇ 三層平麵 Floor plan of 3 story
∇ 屋頂平麵 Floor plan of top
項目信息
項目名稱:南太行大峽穀民宿
設計方:深建築設計
公司網站:http://www.ateliershen.com/
聯係郵箱: info@ateliershen.com
項目設計 & 完成年份:2019年10月份
主創及設計團隊:申元奎(主創)劉隆/張蒙蒙(團隊)
項目地址:林州
建築麵積:700㎡
攝影版權(需要在投稿圖片中注明每張版權):郭明
品牌:水洗石、柚木條、石頭、超白玻璃、水磨石等
Project Name :South Taihang Grand Canyon B&B
Architect :Atelier Shen
Web Site:http://www.ateliershen.com/
Email:info@ateliershen.com
Completion Year:October 2019
Chief Designer&Design Team:申元奎(主創)劉隆/張蒙蒙(團隊)
Project Site:林州
Floor Are:700㎡
Photography Copyright:郭明
Brand:Washed stone, teak strip, stone, ultra-white glasses , terrazzo , etc






























