全球設計風向感謝來自 石川設計事務所 的商業空間項目案例分享:


任何事物都無法逃脫的天體
「HAYDON黑洞」的品牌靈感源自“黑洞”這一神秘天體,它身處無限的宇宙空間中,以強大的引力場吸引萬物奔向流動多元的未知領域。品牌藉「黑洞」概念,打破美的定義,利用藝術感與科技力構築黑洞般森羅萬象的體驗空間。
作為新興的目的地經濟商業品牌的代表,將全球最有代表性和個性的美妝品牌彙聚一堂,對於年輕的消費族群具有不可抵抗的強大吸引力,有如 HAYDON 黑洞其名將消費者吸引進這個神秘、豐富多彩的美妝世界。
The brand of HAYDON is inspired by the mysterious celestial body “Black Hole”, which is located in the infinite space and attracts all things to flow into the unknown realm with a powerful gravitational field. The brand uses the concept of black hole to break the definition of beauty, and uses artistic sense and technological power to build a black hole-like experience space.
As a representative of the emerging destination economy business brand, it brings together the most representative and individual beauty brands in the world. It has an irresistible and powerful attraction to the young consumer group, just like HAYDON, which attracts consumers into this mystery. A colorful beauty world.








HAYDON 黑洞的設計風格大道至簡,用最簡潔的建築語言和周遭的嶺南建築融為一體,外立麵運用了視錯覺的設計手法,將每個模塊做了斜切處理。從正麵看如同一個個神秘的盒子,使用黑洞石材質,以黃金比例分割呈現建築美學,灰色色調也與原北京路特色嶺南建築和諧統一,整個空間呈現出國際化、前沿性的潮流趨勢,為改造提升後的北京路步行街增添美麗的建築風景線。 延續北京路千年的繁華,HAYDON 黑洞將創造新的經典篇章。
The design style of the HAYDON is simple, using the most concise architectural language to integrate with the surrounding Lingnan architecture. The facade uses the design technique of optical illusion, and each module is cut obliquely. From the front, it looks like a mysterious box, using black hole stone material, showing the architectural aesthetics by the golden ratio. The gray tone is also in harmony with the original Beijing Road characteristic Lingnan architecture. The entire space presents an international and cutting-edge trend. The reconstructed and upgraded Beijing Road Pedestrian Street adds a beautiful architectural landscape. Continuing the prosperity of Beijing Road for a thousand years, the HAYDON will create a new classic chapter.


























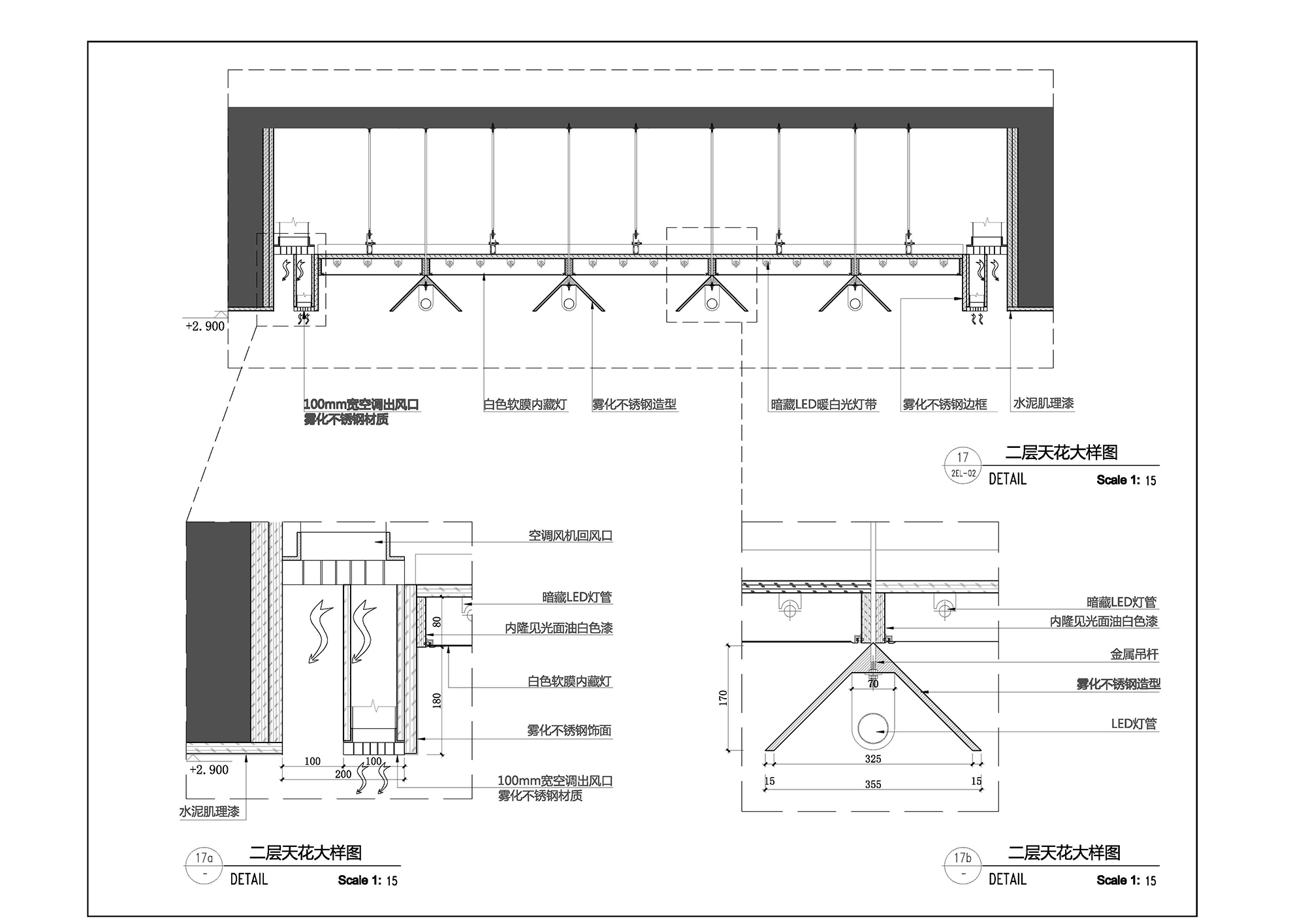
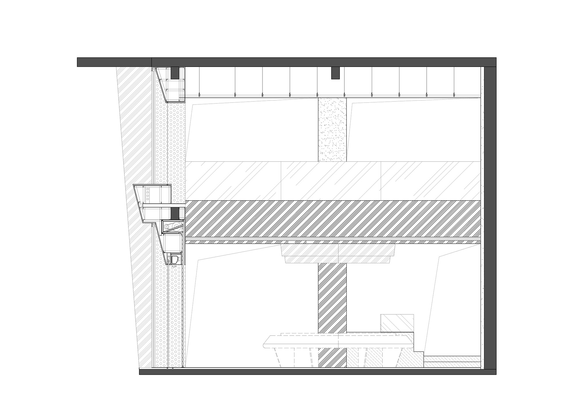
∇ 黑洞大樣圖

∇ 黑洞立麵圖

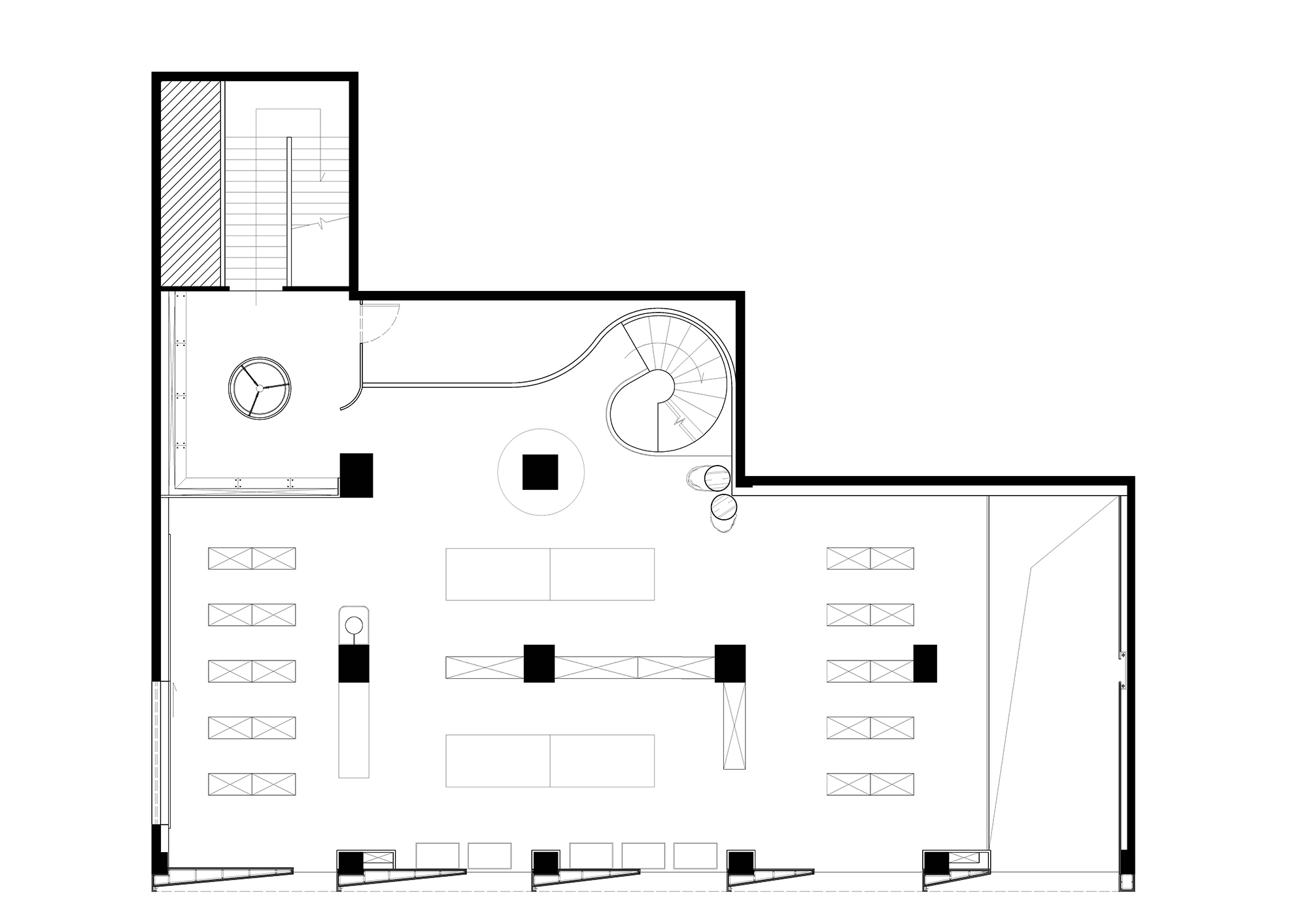
∇ 黑洞二層平麵圖

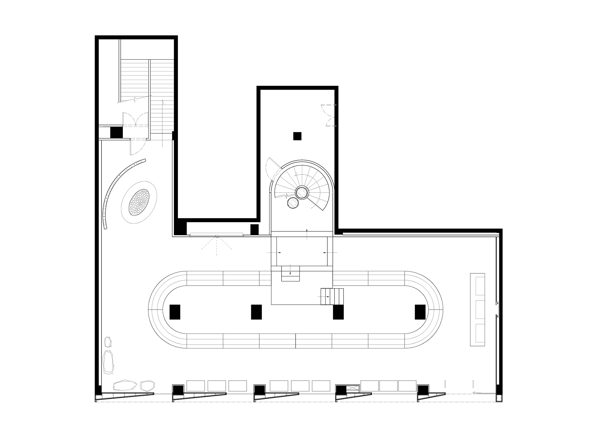
∇ 黑洞一層平麵圖

項目信息
項目名稱: HAYDON黑洞美妝集合店
設計事務所: 石川設計事務所
事務所網站: www.tomshi.com
聯絡郵箱: pr@tomshi.com
項目完成年份: 2021年
建築麵積: 500㎡
項目地址: 廣東省廣州市北京路301號
創意總監:石川
項目經理:張國浩
品牌設計師:樊正豪、梁傑
空間設計師:張國浩、林婕
空間設計助理:張舒晴、劉祖名
客戶經理:盧德芯、吳冰
委托方: HAYDON黑洞
攝影師:黃早慧、鍾鵬
模特:Amelie、沈建東
Project Name: HAYDON Beauty Collection Store
Firm: Tomshi & Associates
Website: www.tomshi.com
Contact e-mail: pr@tomshi.com
Completion Year: 2021年
Gross Built Area: 500㎡
Project location: NO.301 Beijing Rd, Yuexiu District, Guangzhou
Creative & Art Director: Tom Shi
Project Manage:Trevor Zhang
Visual Designer: Boogie Fan, Kit Leung
Space Designers: Trevor Zhang, Shirley Lin
Space Design Assistant:Winco Zhang, ZuMing Liu
Account Manager: Num Lo,Uli Wu
Clients: HAYDON
Photographer:Zaohui Huang、Peng Zhong
Model:Amelie、Jiandong Shen









