全球設計風向感謝來自 燈燈燈凳創意公司 的商業空間/SPA項目案例分享:
燈燈燈凳創意公司|尋找蘭納古都印跡,沉浸皇族古法SPA
LOESSSPA by DDDD Creative Company
“塵埃落處光陰成丘,霧露浸染綿化黃土。”
深圳是一座鋼筋混凝土城堡,喧囂鬧市、燦麗燈光,大都市急促運轉背後,需要一個可以暫時逃離的空間,洗除浮燥與疲勞。燈燈燈凳創意公司受業主委托,設計了一個城市中央的地道泰式按摩與水療體驗空間。
Shenzhen, like a castle built up with reinforced concrete, is a metropolis driven by the hustle and bustle of life. This fast-paced city calls for a space to temporarily escape from fatigue and restlessness. DDDD Creative Company was entrusted by the client to design a typical Thai massage and spa space in the city.
大部份人對泰國的印象還停留在綠植、木雕和大象,其實還有很多被忽視的文化麵貌未被發掘,如原始村落、曆史遺跡,黃土城牆便是曆史的印記。
The stereotype image of Thailand among most people can be described by green plants, wood carvings and elephant. However, many neglected cultural heritages are waiting for discovery, such as primitive villages, historical sites like loess city walls.
∇ 靈感,圖源網絡
清邁是泰國古法按摩與SPA宗源,設計以清邁古城的城牆紅磚元素貫穿空間,錯落層疊的水景構造,與不其然出現的熱帶綠植呼應。斑駁城牆水影瀲灩,進入空間像置身蘭納古都中,片刻間忘卻凡塵細沫。
Chiang Mai is the origin of ancient Thai massage and SPA. The project’s design uses the red brick elements of the ancient city wall of Chiang Mai throughout the space. The scattered and stacked waterscape echoes the tropical green plants that are amazingly located. The shadows on the city wall are dancing with the glittering water. The space is like being placed in the ancient capital of Lan Na Kingdom, leaving behind all distractions for a moment.
∇ 靈感,圖源網絡
∇ 外立麵紅磚
入口預進間,作為等待區及展示區,隔離戶外街道吵雜聲音,光線透過大門圓窗和長虹玻璃的模糊透明感,映照在紅磚牆上。
The entrance room, as a waiting and display area, isolates the noise from the streets. The light is reflected on the red brick wall through the gate’s round window and the reeded glass with fuzzy transparency.
空間整體以“loess塵土”為主基調,紅磚、薄岩板、水磨石、紅色染布、土紅色仿古磚等同色係複古材質交融,描繪蘭納古城印跡。
Putting loess as the main tone of the space, retro materials of the same color scheme such as red bricks, thin rock slabs, terrazzo, red dyeing cloth, earthy red antique bricks are mixed to portray the trace of the ancient city of Lan Na Kingdom.
∇ 靈感,圖源網絡
∇ 淨足區
熱帶雨林水景的沐足池,頂上的白色紫藤花與雲霧透過鏡麵無限折射,感覺置身古老的花園。
The foot bath pool is adorned with tropical rain forest waterscape. The white wisteria flowers hanging on the ceiling and the mist are refracted through the mirror, feeling like you are sitting in an ancient garden.
∇ 靈感,圖源網絡
∇ 藤編家具
∇ 靈感,圖源網絡
∇ 粗麻印染吊簾
藏於熱帶植物間的清邁本土木雕,林林總總的草藥與器皿,藤編家具與屏風隔斷,粗麻印染吊簾,飄浮於水霧上的水燈等軟陳裝飾,勾勒出當地過往的本土生活氣息。
The local life in the past is vividly delineated with furnishings and soft decorations like Chiang Mai’s native wood carvings hidden among tropical plants, various herbs and utensils, rattan furniture and screen partitions, coarse linen dyeing hanging curtains, and afloat lamps among water mist.
∇ 深啡色草藥收納瓶
∇ 等候區
休息區空氣夾雜香茅草的味道,聽著潺潺流水聲,以規律深啡色草藥收納瓶作半隔斷,與藤編家具呼應,保留寬敞視野之餘充分利用空間。
The fragrance of citrus grass is lingering in the air of the rest area with water gurgling. This area is semi-partitioned by orderly placed dark brown herbal bottles, echoing with the rattan furniture. The space is not only fully used, but has a spacious view.
∇ 前台
踏上柔軟的地毯上到二層,設計借用鏡子、通透玻璃、厚重布簾與半通透百葉窗,還有地麵不同質感間的切換,刻意製造感官錯覺,使人迷失身處環境,隻專注於當下自身感受。
The second floor is paved with soft carpet. The design intends to create sensory illusion through installations like mirrors, transparent glasses, thick curtains and semi-transparent shutters, as well as the switches between different textures of the ground. It enables people to forget the surroundings and enjoy the feelings at the moment.
樓梯頂部刻意下壓設置錯層紅磚水池,增強古城建築之間的穿梭感,頂部溢出的雲霧緩慢飄下,隨著人的走動氣流不斷變化。
The top part of the stairs is deliberately lowered to set up a red-brick pool to enhance the sense of traveling between ancient structures. The mist above the pool floats gracefully with the airflow as people move.
∇ 樓梯
∇ 錯層紅磚水池
窗外陽光透過木百葉窗縫隙透入水池,映照在熱帶植物與染布上,融化在水霧之中,將記憶拉回到那一方塵土。
The sunlight that shines into the pool through the wooden shutters is reflected on tropical plants and dyed cloth and finally disappeared in the water mist, pulling the memory back to the space.
∇ 靈感,圖源網絡
∇ 霧池裝置
昏暗的土紅色空間散發著檸檬草香薰氣息,細細鳥鳴與流水聲無限回響,設計用心之處,調動了視覺、嗅覺、聽覺感官平息內心波瀾,深陷古城的幽靜安寧中,讓身體緩慢進入古法SPA之旅的前奏。
The dim earthy red space is imbued with the fragrance of lemongrass and the birds singing and gurgling water. The design intends to mobilize the visual, olfactory and auditory senses for a peaceful and calm mind, so that people can fully devote themselves to the tranquility of the ancient city, being physically prepared for the traditional SPA.
∇ 厚重布簾和昏暗燈光
按摩間與SPA間以厚重布簾和昏暗燈光營造私密安全感,刻意留白,讓人可以盡情閉眼,身心投入泰式SPA的身體之旅。
Thick curtains and dim lights are applied in the massage room and SPA room for privacy and security concerns. The deliberately arranged empty space is conducive to the immersion in the Thai SPA with physical and mental relaxation.
∇ 按摩房
∇ SPA房
在品牌搭建上,燈燈燈凳創意公司希望饋予品牌一份泰國蘭納古都的印跡與體驗,以承載過往印記的黃土—— 即“LOESS”,測量時間與記憶厚度,品牌命名LOESSSPA也因此而來。
In terms of brand design, the DDDD Creative Company hopes to endow the brand with the imprint and experience of the ancient capital of Lan Na Kingdom. The LOESS, which bears the past traces and is used to embrace time and memory, gives birth to the brand name LOESSSPA.
城牆的土黃色作為品牌的VI主色,光線透過樹蔭在城牆上的搖逸剪影作為品牌的主視覺。
The earthy yellow of the city wall is regarded as the brand’s main visual identity color, and shadows of light shining through trees on the city wall form the brand’s main vision.
產品包裝以熱帶植物的工筆畫來平衡城牆主色的厚重感,使品牌內容更靈動豐富。
Fine brushwork of tropical plants is utilized to balance the heaviness of the wall’s color, injecting dynamic and rich content to the brand.
∇ 1F平麵圖
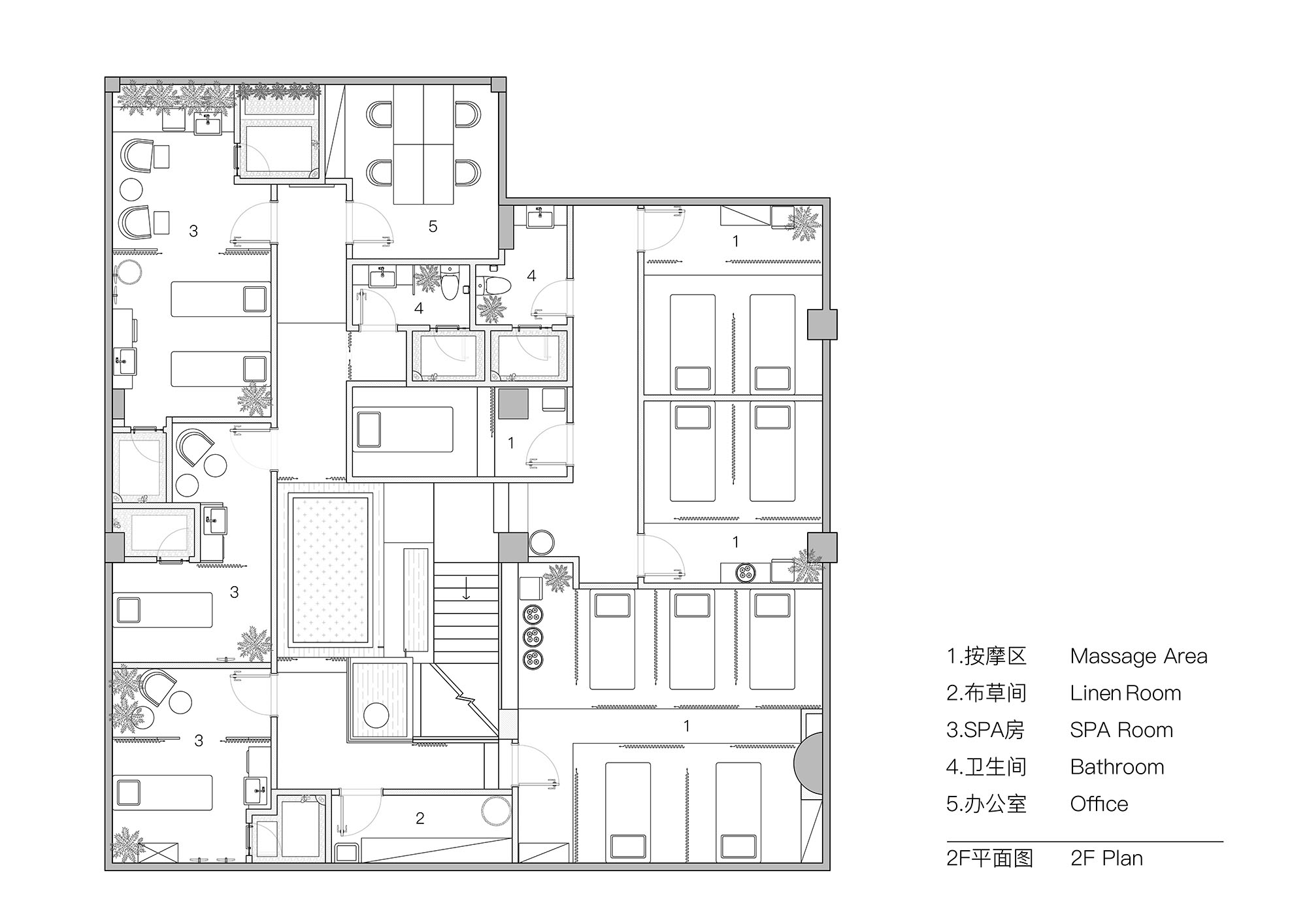
∇ 2F平麵圖
∇ 2F立麵圖
項目信息
項目名稱:LOESSSPA蘭予
項目地點:深圳市寶安區裕安一路3076號箐英趣庭1棟95號
項目類型:泰式SPA
項目麵積:283平方米
完工時間:2021年1月
設計範圍:品牌策略與定位、品牌視覺係統、品牌產品包裝、空間設計、軟裝設計、燈光設計
設計公司:燈燈燈凳創意公司(DDDD Creative Company)
公司網站:https://www.behance.net/reneezhu64aa
主創設計師:John Sun 孫偉忠
設計團隊成員
品牌定位:Renee Zhu 朱爾年
品牌視覺設計:花森
項目跟進:劉賀
深化成員:洽洽、馬曉婷、陳泳琳
攝影師:吳鑒泉
主要材料:
瓷磚:鷹牌陶瓷
薄岩板:Y/A VENEER SLATE
水磨石:LVBA MOSHI
地膠:阿姆斯壯Armstrong
Project Name: LOESSSPA
Project Location: No. 95, Block 1, Yu’an 1st Road, Bao’an District, Shenzhen, China
Project Type: Thai Spa
Project Area: 283 square meters
Completion Time: January 2021
Design Scope: Brand strategy and positioning, Brand VIS design, Product packaging design, Space design, Decoration design, Lighting design
Design Company: DDDD Creative Company
Company Website: https://www.behance.net/reneezhu64aa
Chief Designer: John Sun
Design Team:
Brand Positioning: Renee Zhu
Brand VI Design: H’
Project Coordinator: Herb
Deepening Design: QQ, Max, Yong Lin
Photographer: Vincent Wu
Main Materials: Eagle Ceramics, Y/A VENEER SLATE, LVBA MOSHI Terrazzo, Armstrong Flooring






















































