深圳移卡是⼀家⽀付科技領域的上市公司,其辦公總部位於深圳科興科學園區,此次邀請JSPA對三個樓層的辦公空間進⾏了改造,總⾯積達6000 平⽅⽶,試圖以⾰命性的設計展示科技公司更加透明和開放的企業⽂化。
在啟動之初,設計師希望⼀改覆蓋在其表⾯的⽆實際功⽤的飾層,在更⻓久的時間跨度上,恢複建築結構的原始⻛貌,從⽽實現建築意義的回歸。
建築粗曠的梁柱複原之後,打開部分樓板,從⽽為垂直軸線上更豐富的設計留出餘地,亦能引⼊更多⾃然光照明,讓光影᯿塑⼈們的空間感受。
⼊⼝從中間層切⼊,並彙集項⽬所有公共功能:接待區、咖啡吧、活動場所及產品展示區。公共功能區塊被有機組織在⼀個⻓⻓的通透地帶的軸線周圍,呈現出視覺開闊感與通透感。
建築⽴⾯前的⻓條形接待台,不僅發揮接待功能,也擔當了烘托空間氛圍的結構體,其後⽅的仙⼈造型牆,於內外均構成了⼀道宜⼈的⻛景,也讓內部空間從外界的⼲擾中抽離出來。
低矮的天花會令辦公空間顯得壓抑,因此,在有限的層⾼條件下,設計師讓中間層和三層實現了體塊交叉和視線共享。在中間層上⽅空間打造5間全透明的漂浮會議室,設計師以令⼈玩味的不平衡感,來彰顯移卡企業充滿創造⼒和積極交流的氛圍,同時給予來訪者印象深刻的空間體驗。
對內,透明的⼯作環境可以增加內部的信任和互動;對外,則發揮展示辦公場景的作⽤,讓辦公⼈員和來訪者之間超越物理距離的限製,產⽣妙趣橫⽣的視覺互動,在細微處體現科技公司理念上的未來感。
∇ 剖麵圖
垂直交通圍繞⼀個頗有體量感的造型樓梯展開。樓梯設計為雕塑⻛格,頗有藝術感,由兩個L形結構組成,逐層交疊攀升且⽆多餘⽀撐。
∇ 剖麵圖
⾊彩和造型上的穩定感與可視架構缺失形成的漂浮感形成強烈反差,為⼯業⻛的辦公空間增加了現代化的多元符號。
⼯位被規劃為多個⼩型的獨⽴單元:其中會議室和經理辦公室也都采⽤了玻璃盒⼦的造型⽅式,構成獨⽴⽽通透、舒適⽽流動的辦公場景。
地⾯選⽤混凝⼟磚,這是⼴泛⽤於室外公共空間的地⾯材料,設計師將之⽤於辦公場景,不僅是⼀次有趣的嚐試,也呼應了建築的曆史記憶,使室內空間憑添⼀層⾃然視ᰀ。
玻璃、不鏽鋼,現代的材料語⾔,以不同的表⾯質感演繹出多樣的空間表情,混凝⼟磚不僅裝飾了公共區域,也縱向延伸⾄室內牆⾯;燈光設計則強化了玻璃、不鏽鋼等光滑材料與空間粗獷感對⽐。讓設計不僅在物質層⾯上突破了⻛格的界限,創造出⾃由流動的空間,也為᯿構辦公空間中⼈與⼈的關係,做出了有益的探索。
∇ 剖麵圖
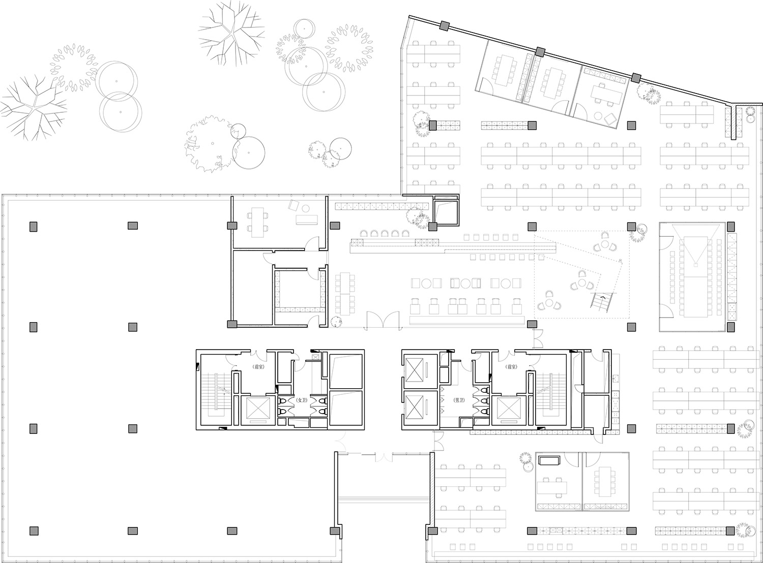
∇ 5層平麵圖
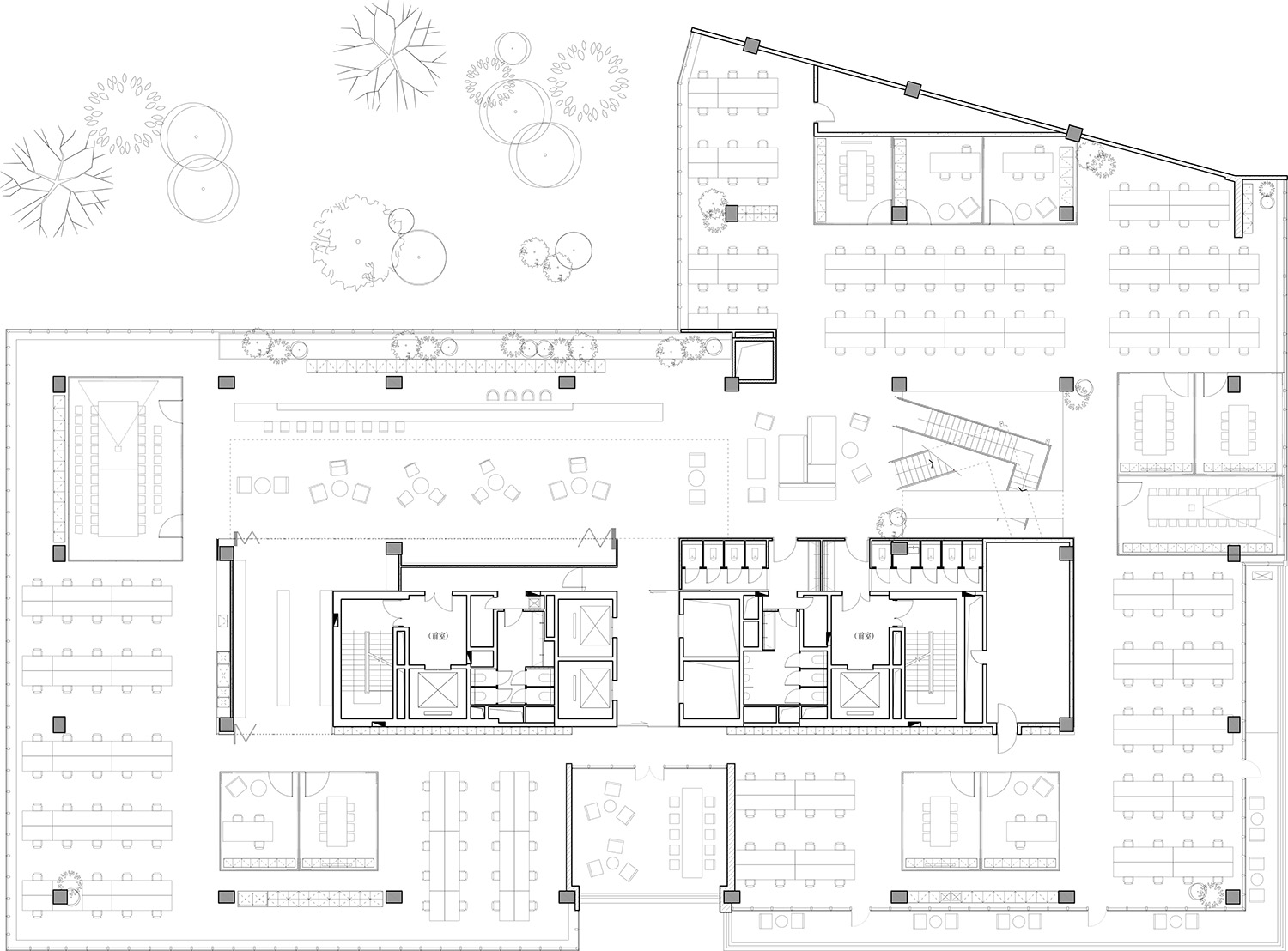
∇ 6層平麵圖
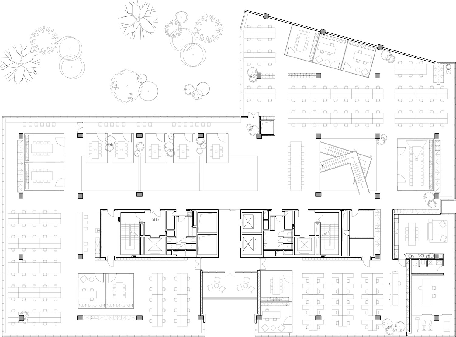
∇ 7層平麵圖
項目信息
項目名稱:深圳移卡辦公室設計
項目地點:中國廣東省深圳市移卡科興科學園C3棟5-7層樂刷辦公室
項目類型:室內設計
項目狀態:已建成
主持設計師 : Johan Sarvan, Florent Buis
設計周期:2020年8月20日 – 2020年10月28日
施工周期:2020年10月- 2021年2月
室內麵積:6000平米
材料:潔具- SARVAN
攝影:蘇聖亮
Project name: Shenzhen Yeahka C4 Office Design
Project location: Leshua office, floor 5-7, building C3, Yeahka Kexing Science Park, Shenzhen, Guangdong, China
Project type: Interior Design
Project status: Built
Principle designer: Johan Sarvan,Florent Buis
Design period: 2020.08.20 – 2020.10.28
Construction period: 2020.10 – 2021.02
Interior space area: 6000 sqm
Materials: Sanitary ware – SARVAN
Photographer: Shengliang Su

































