密密無聲墜碧空,霏霏有韻舞微風。——子蘭《對雪》
Dense silent falling blue sky, rain rain dance rhyme breeze——Son LAN《The snow》
柏穗公寓采用輻射空間空調係統,達到新五恒標準,室內沒有空調出風口,告別傳統。通過建築內表麵溫度的控製,模仿一個山洞環境,讓人回歸最自然的生活環境。
美好的居住環境常以自然作為依托,
山石林葉點綴在室內空間更是落筆生輝。
巧借自然之妙,以藝術造境,擁懷天地,
使石之韻、林之美在此演化成東方美學的舒適,
而舒適的本質是科技的力量,
當自然臻境偶遇現代科技,
空間的舒適主義再度被詮釋。
城中市井喧囂,都市人潮熙攘,自然和科技完美交織之境則寧靜致遠,通透與清雅於此呈現,亦迭新出柏穗公寓對東方人居哲學的新理解。
入境·雋永
山石林葉偶遇現代科技之客廳
設計師精研空間自然美學,以山石林木為靈感,營造銜接室內的第一會麵空間。大地色係彌漫貫穿於整個空間之中,描述一種自然臻境的包容之美,大方無隅,使人感受舒適安寧。綠色大理石與繁花綠葉相得益彰,空靈雋永之感引人駐足、探索,感歎於自然的神奇、奧妙。
自然元素與現代科技的相互碰撞交融,更添魅力。柏穗輻射空調智能係統,恒溫、恒濕、恒氧、恒潔、恒淨,在無風感的環境下,也許你可以在此片刻地開啟心靈瑜伽時間,將身與心自然地在空間中安放、舒張,感受這獨特意境的魅力。
時序·自在
動靜結合遇見時空轉換之餐廚
與君初識,會客有道,在乎交互空間的張弛力道。設計師以一片自然意境融合初見的美好氛圍。綠葉繁花盈盈熠熠,仿佛生命在自然中舒張的姿態,充盈著力、勁、道之美。整體空間線條利落分明,使觀覽者自在隨心,會麵柔恰。杯盞交談間,城市的喧囂被無形撫平。
溫柔·靜謐
獨立靈魂遇見烏托邦之書房
設計師引景入室,使內部空間與自然共生,營造溫馨、舒適的氛圍。木質與綠植元素的引用古樸、自然、溫和。居室厚重而誠摯,大自然像位藝術家,呈現了自然的柔美畫卷。在遁隱於塵世的藝術美地,自然居境渾然天成。
交織·元素
陽光肆意遇見精靈家鄉之臥室
自然元素的大幅運用極具感召力,構築純粹、精致、唯美的微妙空間。流動的自然氛圍與科技完美相融,以空靈清雋的建築空間匹配城市雅仕身份,在靜謐中凝練思考,品、味、格皆得以升華。
綠色元素帶來的自然、和雅、清澈、深滿質調,在木質地板漸次傳遞,蕩漾起空間的起伏情緒,引人陷入安靜冥想,雅致的關懷,自然而然,展示以一份寧靜。金屬現代感點綴裝飾,交織構造各種線條,玩味出空間儀式感,讓人體味溫馨、細膩的空間情緒。
奢意·風雅
燈+鏡+石遇見質感衝擊之盥洗室
盥洗室布置清潔而素雅,傳遞一份溫馨、潔淨的貼心感受。不同層次質感的白、藍、木色相得益彰,素淡,卻也豐盈有度。都市的風雅,原來不在雍容華貴的堆砌,而是自在落拓、收放得宜的精神品質。
這是一種自然語境下的“輕奢”,一種自然與科技並蓄的現代奢意,浸染清新的時尚、精致與風雅。
在此,你可以有短暫的停歇。在繁忙的城市生活中,照見心靈,完成一次與自己的對話……
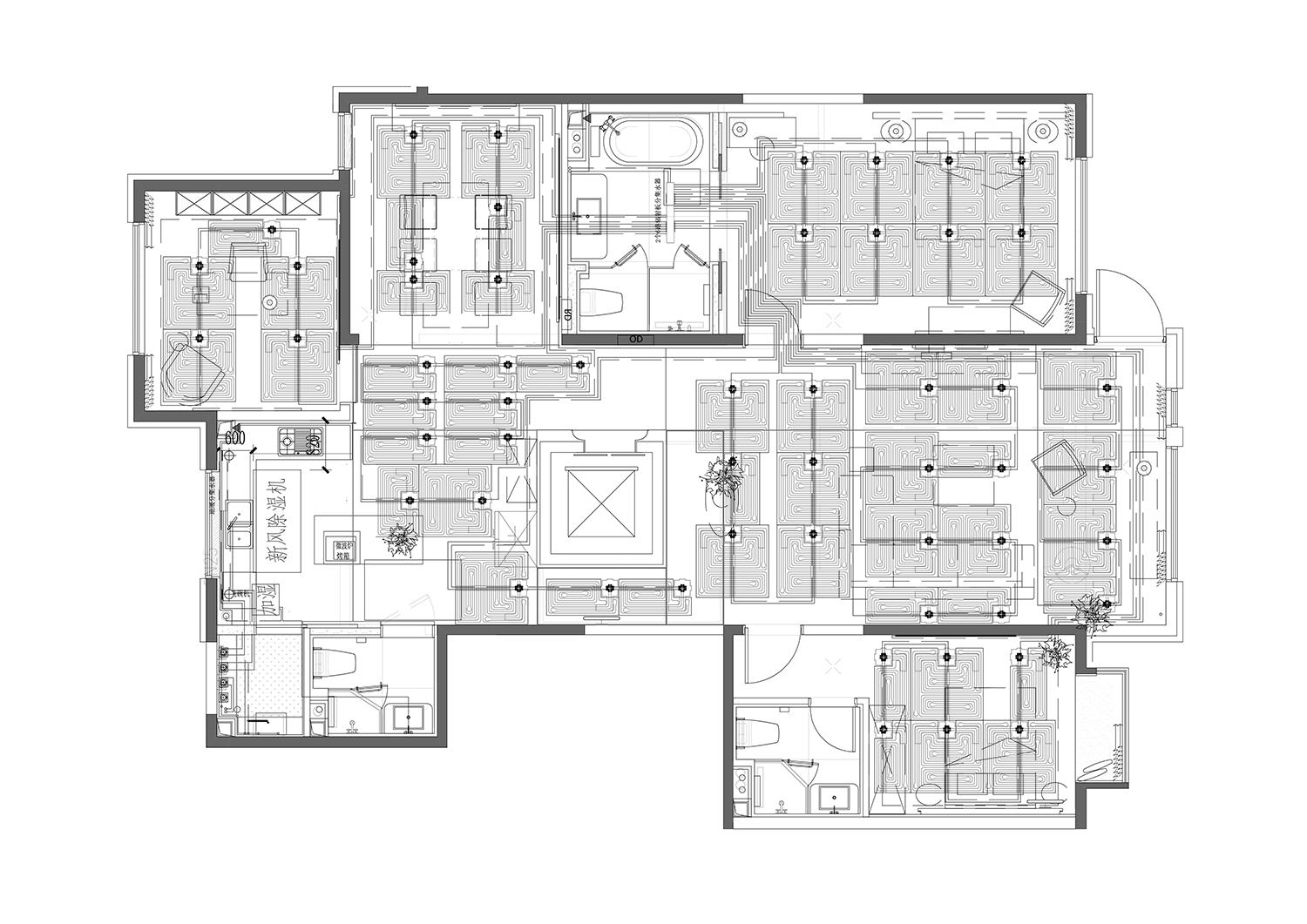
∇ 輻射版平麵圖
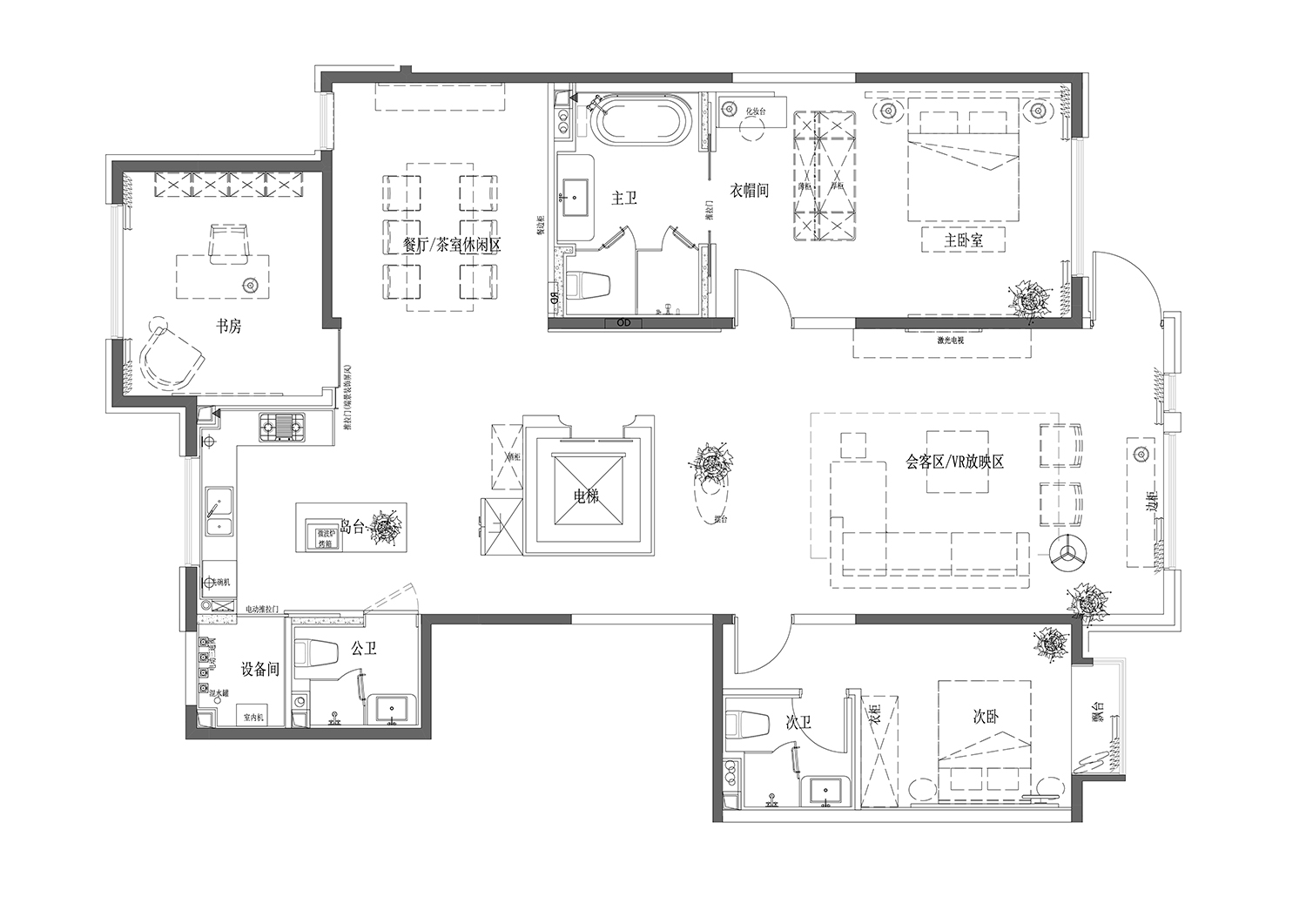
∇ 平麵圖
項目信息
項目年份:2020年
項目麵積:150㎡
主創設計:王學麗、胡琨
設計團隊:張誌浩、劉偉、張傲顏
深化團隊:韓張生
軟裝團隊:羅雲
攝影師:陳軍
Tags:一抹綠意於空間中,自然、健康、優雅的都會生活藝術、有繁而華之,也有從容閑暇的愜意
































