北緯34°,東經106°城市是一個民族文化和情感記憶的載體,而曆史文化又是城市魅力之關鍵。天水,“羲皇故裏”之稱被譽為華夏文明的重要發祥地之一。古老的麥積山懷抱,渭水環繞千年沙漠與人類文明的繁衍,經久不衰。
在這裏,D&T鼎圖設計聯袂中海地產,於自然底色與人文藝術的交融中,描摹當代,構建理想之所。延續一貫簡練的設計理念,融萃城市與自然,結合當代審美語境展開創作,以空間藝術詮釋超越地域的文化內核。
藝術的偉大意義,基本上在於它能顯示人的真正感情、內心生活的奧秘和熱情的世界。——羅曼·羅蘭
理想之所,大概是最大限度包容審美差異,從而賦予空間某種新的意義。
秉承現代主義的克製與精致原則,D&T鼎圖設計擔綱本案軟硬裝一體化設計,文脈傳承為主題,通過探索人對色彩、光影、藝術的感知,傳遞不同的情緒。將城市地理與人文藝術融入多維空間中,用光與色交織一幅五彩斑斕的生活畫卷,喚醒人對居所的真摯感受,也讓居所邂逅擁有藝術氣息的浪漫靈魂。
PART.1 105戶型
心之所向 生活所往
Heart’s desire, the life to go
空間構成,更多的是對藝術、美學和生活的深度詮釋。
在本案105戶型設計中,D&T鼎圖設計團隊發揮對藝術的創想,以靈動的自然筆觸融合當代主義手法,結合丹霞地貌形態的結構之美,意境的變幻之姿,通過形式、色彩、用飾的鋪敘烘托打造充滿內涵、沉穩的當代簡奢空間。這也是現代都市新貴的生活態度:放肆、克製與詩意,矛盾且共生。
肌理畫圖案是高空俯視山脈的景色,鏽褐色飄帶隱喻”絲綢之路”。幸福的生活在這裏開啟,室內與自然的邊界被打破,所望之處皆為景。
客廳以石紋岩板做電視背景牆,摒棄常規,黑色大理石延長和玄關挑台相接,視覺上的延伸讓空間更為開闊。
鏽褐色的皮麵牆飾打破了空間的秩序感,沙漠細膩的線條美,點綴奢雅大理石、淺灰,沿襲了原本材質的優雅高貴,又在結合中,創造出獨一無二的質感和藝術肌理。相映成趣的陳設搭配,器物的肌理線條還原丹霞的形態之美。
餐廳在整個公共區域形成空間的共性延伸,設計師選了一個輕巧的牆飾點綴,時尚藝術吊燈極具線條感,搭配硬皮質餐椅,於溫潤的詩意中,碰撞出極具品質感的用餐氛圍。
餐廳是家人感情的連接處,三餐四季,溫暖有趣。
臥室是讓人蓄養精神的私密空間,從而獲取生活的熱情。
主臥延續空間的主格調,在柔和的設色中鋪敘開來,舒適親膚的床品、簡單大方的裝飾,在自然光線的映照中,營造出一派歲月靜好的愜意。
次臥以天地為畫軸,藍天的空靈襯托出丹霞地貌的奇觀。
設計師選擇以低飽和度的藍灰色調,加之當代抽象畫的渲染,完成了對空間氛圍的營造,讓人卸下疲憊,溫柔而舒緩身心。
步入兒童房,天花斜角堆褶造型,自成一方天地,結合櫃子上三角圖案的設計,寓意著燈光下屬於孩童的歡樂時光。天空的藍、雲朵的白,還有陽光的溫暖和心愛的積木玩具,裝點空間與童趣契合,是孩子暢想未來的小天地。
PART.2 125戶型
以愛之名 流動的生活盛宴
In the name of love, a flowing feast of life
“假如你有幸年輕時在巴黎生活過,那麼你此後一生中無論去到哪裏她都與你同在,因為巴黎是一席流動的盛宴……“文豪海明威不吝溢美之詞。
當Venus擁有翅膀,是否會獲得絕對的愛與自由?設計師摘取一絲浪漫神秘的“Venus Milos”為靈感之源,“翅膀”作為空間精神象征貫穿其中,純淨中帶有高貴,浪漫中不乏理性的空間大尺度。多元碰撞、化繁複為典雅的法式印象在空間中流淌。永遠年輕,永遠生氣蓬勃,無懼時間的流逝,這種舉重若輕造就了經久不衰的美學記憶。
客廳以月光白為主基調,空間理性簡約,與深色地麵的碰撞,融入的紅梨色整合了空間深與淺對接的關係,調和出大氣優雅的空間氛圍。牆麵利用簡單的石膏線框,增添了精致感和層次感,最能體現法式的浪漫。帶有線條分塊細節的家具沙發、與硬裝空間呼應,光影與質感的結合,格調優雅又不失設計感。
客廳上空的水晶吊燈,造型由“翅膀元素”幻化而來,是追尋美好事物的精神象征,燈光灑下的那一刻,以型塑境,以境達心,給滿懷夢想的人們帶來祝福和希望。
美食,是法式精致優雅的重要表征之一。在大麵積的淺色空間中融合紅梨色、重色與淺色材質的結合去平衡空間。
精致的餐具、搭配華麗的水晶吊燈,頗有古典主義的優雅氣質,熱情的花藝為空間注入溫暖的色調和生機,是果園精靈撩人心魂的花香,以藝術的形式給予生活滿滿的儀式感。
時間並不會消無聲息流逝,沉澱下來的便是永恒經典。
法式的低奢感與現代主義風格結合,紅梨色在不同的材質、紋理中交織碰撞,色調的細膩過渡,豐富了主臥空間的視覺層次效果,空間便有了生命力,以共鳴的方式去感受時間的交疊,在輕奢時光中優雅流連。
次臥遵循空間理性簡潔的手法,床頭背景牆以白色飾板與灰鏡的銜接變化形成碰撞,搭配不對稱的床屏造型,勾勒出疊層感。帶來品味生活的沉浸體驗,優雅氣息持續蔓延,營造出溫馨的臥室氛圍。
潮玩給孩子更為大膽、活力的藝術體驗,鼓勵孩子敢於表達真實的自我,促進孩子心智和情感上的啟蒙。“一切都從一隻老鼠開始”——沃爾特·迪斯尼。兒童房從“米老鼠”中汲取靈感,衍生的藝術品陳設點綴其中,賦予空間別樣的趣味與活力。皮粉色也讓小空間變得柔軟,書椅靠背的造型呼應了“翅膀”主題。
自然的景,東方的美,現代的簡,法式的雅,都融彙貫穿於此。設計團隊在富裕與克製,秩序與複雜性之間取得平衡。以內心感知為導向,確保極高內在品質前提下,實現創意的最大可能性與豐富性,演繹新當代生活方式的不同形態。禮獻城市,熱愛生活。
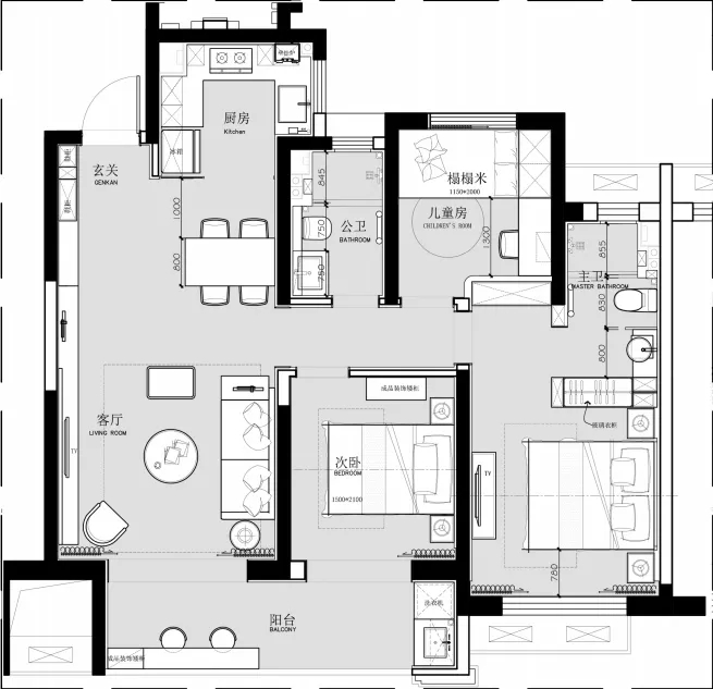
設計圖紙
∇ 105戶型平麵圖
∇ 125戶型平麵圖
項目信息
項目名稱:中海·鉑悅府樣板間105戶型、125戶型
項目地址:甘肅·天水
甲方單位:中海宏洋
硬裝設計:D&T鼎圖設計
軟裝設計:D&T鼎圖設計
完工時間:2021年05月
設計麵積:300㎡
攝影機構:廣州野貓文化
策劃撰稿:青雲設

















































