UID Architects團隊對市區有20年曆史的公寓進行了三維改造。通過減少分隔上下樓層的鋼筋混凝土骨架,營造出地麵般的景觀以及寬敞的內部空間。住宅、綠化和城市之間的關係,可以感受到高層獨特的城市景觀,該項目可以成為現代再生的案例研究。
高層立體改造
它是對市區一棟20年曆史的高層公寓樓的兩層改造。在一般的公寓中,樓層高度和露台等相同類型在垂直方向上有效堆疊,因此表層趨於均勻和單調。此外,樓層越高,與地麵分離的生活越隻履行房屋的功能,情況與可以感受到豐富的自然花園(=地球)的環境相去甚遠。這一次,為了讓業主擁有的高層公寓樓的4樓和5樓成為新的住房,每天都在忙碌的業主夫婦的要求是一個可以放鬆並花時間在家裏。由於孩子們已經長大,他們優先考慮時間,通過減少不必要的房間,設計師考慮了一個可以感受到適當的建築麵積和充滿自然的土地的空間。
首先,去除現有窗扇所在的內外邊界表麵,並擴大外部花園麵積。除了五樓的陽台外,還減少了不必要的樓板以創造垂直的開放性,並將剩餘的交叉框架結構作為整個建築的新立麵設計。這使得種植高大的樹木成為可能,陽光透過漂浮在空中的花園照射到室內空間。營造了一個自然環境,可以在其中感受到樹枝和樹葉波動的陰影。近年來,許多公寓裝修都通過拆除隔板並在水平方向上擴展,或剝離飾麵,製成質樸的容器。在這種情況下,這種即使在連接上下樓層和高層建築類型(如公寓)的三維設計中也不放棄景觀設計的解決方案是通過與業主的對話而誕生的。設計師希望這將成為當前供過於求且需求下降的高層公寓樓具有新附加值的庫存再生的案例研究。這片新土地在漂浮的房屋、花園和城市之間建立了聯係,可以在其中感受城市景觀。
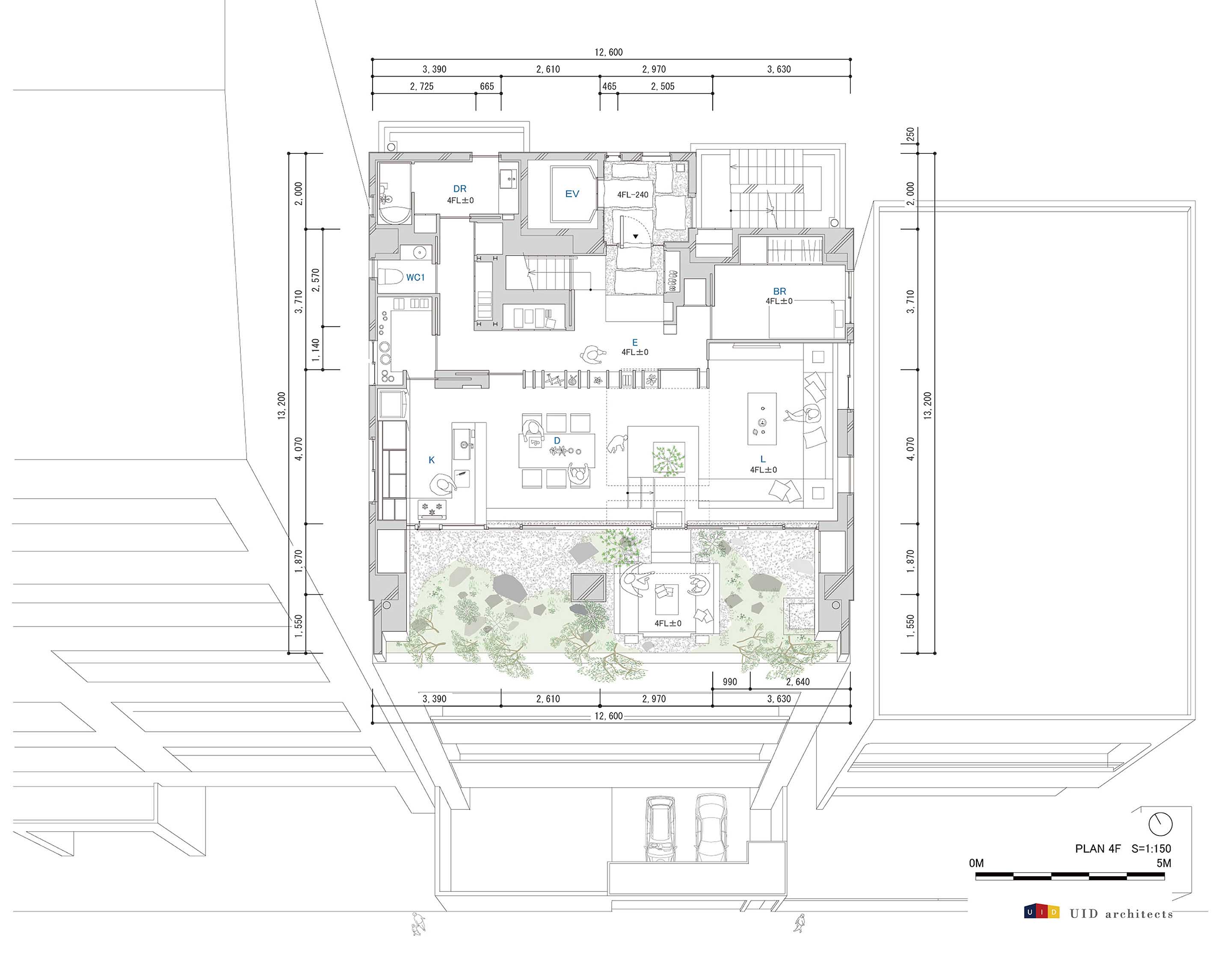
Δ 四層平麵圖
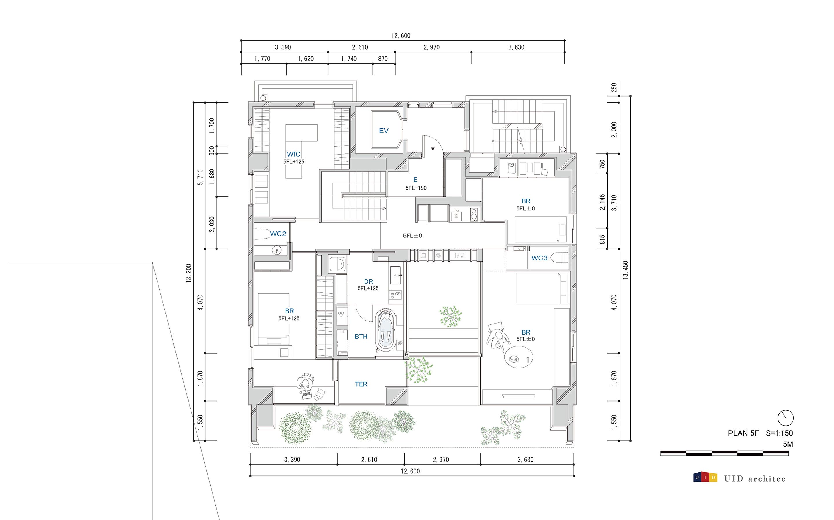
Δ 五層平麵圖
Δ 剖麵圖
版權聲明:本站所有文章除投稿授權發布外,其他文字內容均為原創,享有著作權保護,未經許可不得以任何形式進行轉載(包括且不限於:媒體、網站、公眾號等)。所有項目照片/設計圖形版權歸原作者所有。本站部分內容源自網絡公開資源或用戶分享,如若侵犯了原作者的合法權益,可聯係我們進行處理。































