金地威新·8號橋濱江園:當空間作為一種媒介,便有了無數種可能
自2004年8號橋第一期項目麵世以來,8號橋園區不僅在規模上逐步擴大,同時也引領了上海乃至全國的舊廠房改造及創意產業園的開發浪潮。在持續擴張和發展的過程中,8號橋需要更具創造力和獨特性的辦公環境,來滿足租戶新的空間需求。
8號橋和予舍予築攜手,共同打造了其位於打浦路603號的全新創意辦公園區。這也是繼8號橋·沈半路項目之後,予舍予築和8號橋合作建成的第二個項目。
8號橋和予舍予築攜手,共同打造了其位於打浦路603號的全新創意辦公園區。這也是繼8號橋·沈半路項目之後,予舍予築和8號橋合作建成的第二個項目。
“橋”的轉譯
8號橋的品牌基因是深深根植於空間設計之中的,它鼓勵創意,創造連接,構造有品質的都市生活方式。在8號橋的品牌內涵和空間設計理念上,我們找到了一種強有力的內在連接,讓“橋”自然而然地成為了設計的出發點以及空間密不可分的重要元素。
在產業園運營的內涵上,它寓意8號橋品牌作為創意產業溝通的橋梁,積極連接企業,促進租戶間的交流;而在空間表現上,“橋”作為一種抽象的設計語言,將原本散落兩岸的企業和人進行梳理、聚集然後連接到一起。
連接和共享
8號橋濱江園項目改造自一棟老舊的廠房,設計接手前的空間狀態為一個破舊的超市搬離後的荒蕪景象。基於“橋”的總體概念,我們首先將進深約77米的盒子從中間斷開,打開樓板,將自然光引入到室內。物理條件的改變即刻產生了形式、結構和空間的變化。斷開的盒子形成了兩個麵向中庭的立麵,圍合出一個巨大的中庭空間。原本建築體量中最“黑暗”的中心部分經過巧妙的設計成為了整個空間的視覺核心和公共活動空間;對望的立麵經梳理後成為一個幹淨純粹的基底,為展示與交流提供了載體;台階、盒體的置入,在連接一二層的垂直空間上形成交通節點,同時也為各式各樣的活動提供了豐富的可能性,既是連接亦是共享。
白色聯想
經過設計團隊對比例、材質的反複斟酌,我們最終選擇了30mm寬、120mm厚的金屬格柵作為純白基底上的裝飾,讓室內空間室外化,同時也給原本一覽無餘的立麵創造了更強的空間層次感和流動的光影體驗。
當天光傾斜而下,凝練而精致的細節發揮作用。錯落的格柵在搖曳中讓空間愈發光亮且輕盈。行走其中,如同穿行在“盒子裏的建築”,能清晰感覺到時間的流動和空間的尺度。
置入的木質樓梯和黑色盒體經過不同尺度和維度的組合,豐富了空間的流線形式和層次,最大程度上營造出室內的“街區感”。幹淨利落的線條理智而內斂,始終低調地充當配角,襯托展示物和人本身。這也正是我們想要給入駐企業感官所留下的印記——讓空間退居其次,品牌展示與人本身才是主角。
圍繞中庭,空間敘事逐步展開。將底層留給公共活動空間和需要對外展示界麵的商鋪後,二層規模各異的辦公空間自然便排布在麵向中庭的兩側,既保證了辦公環境的私密性和獨立性,同時又能讓每一層空間的用戶在不同的平麵上俯視整個中庭,提升了空間的連續性和流動感。
一體化設計
本案中,予舍予築承接了除建築之外的所有設計內容,包括室內設計、景觀設計、燈光設計、標識設計等。每個專業從始至終圍繞整體的設計核心,共同打造一個集展示、體驗、研發、辦公於一體的美好生活樣板區。
景觀設計基於場地現狀和園區的特色,提出“漫遊、互聯、共享”的設計理念,通過對沿街景觀界麵的梳理和人車分流的動線規劃,在有限的空間內實現了189個地麵停車位的規劃。
標識設計囊括了室外的標誌性logo,導視牌以及室內定製的標識和導視牌。
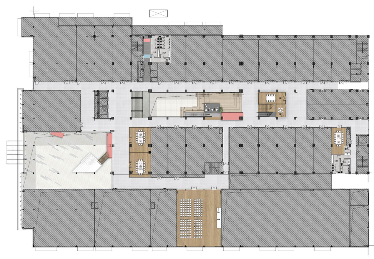
∇ 一層平麵圖
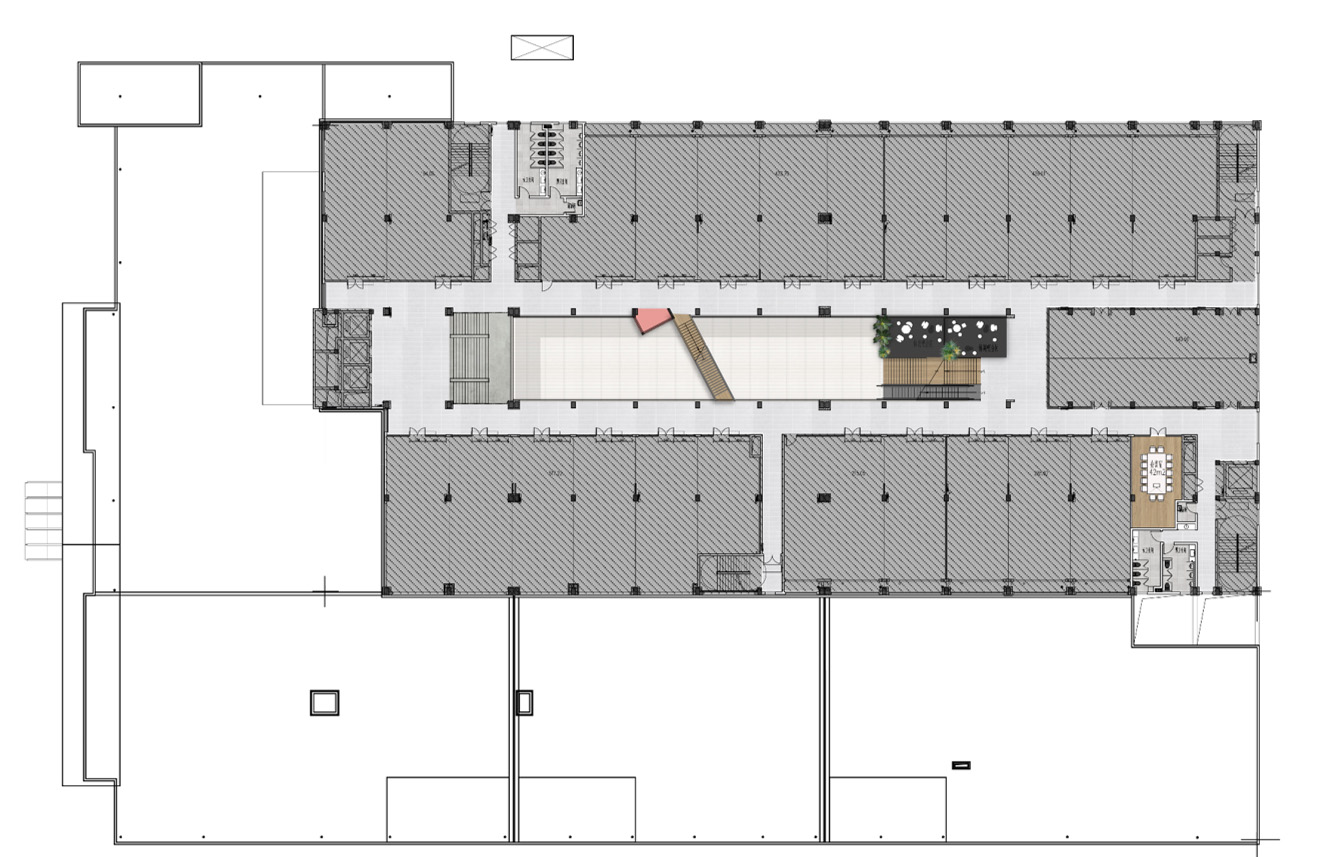
∇ 二層平麵圖
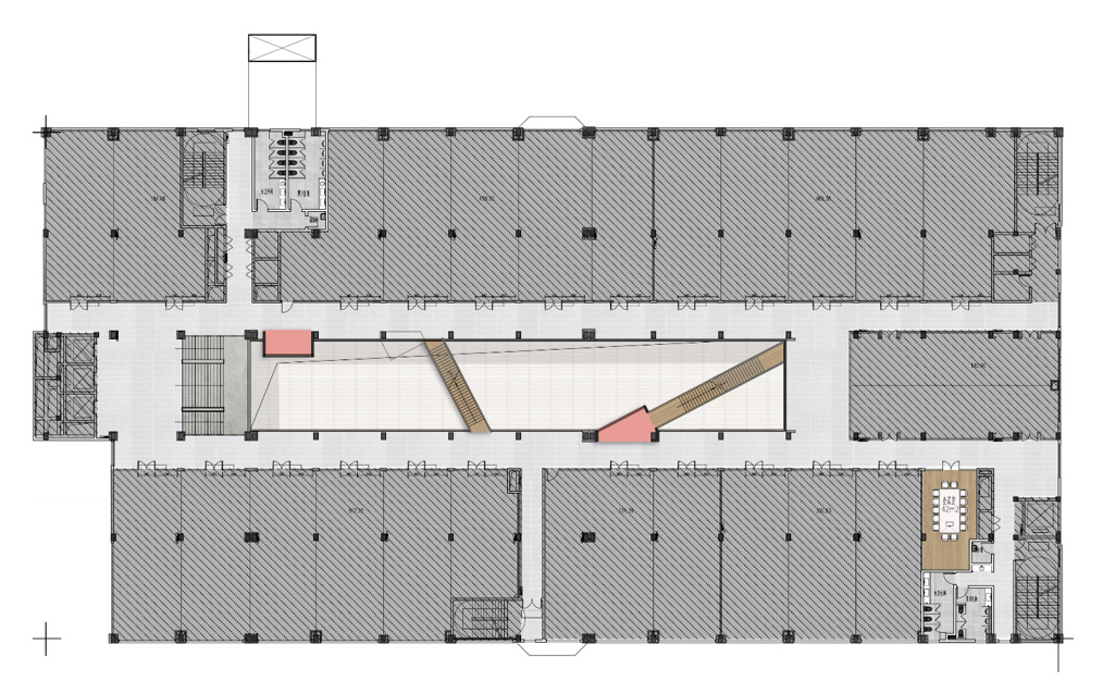
∇ 三層平麵圖
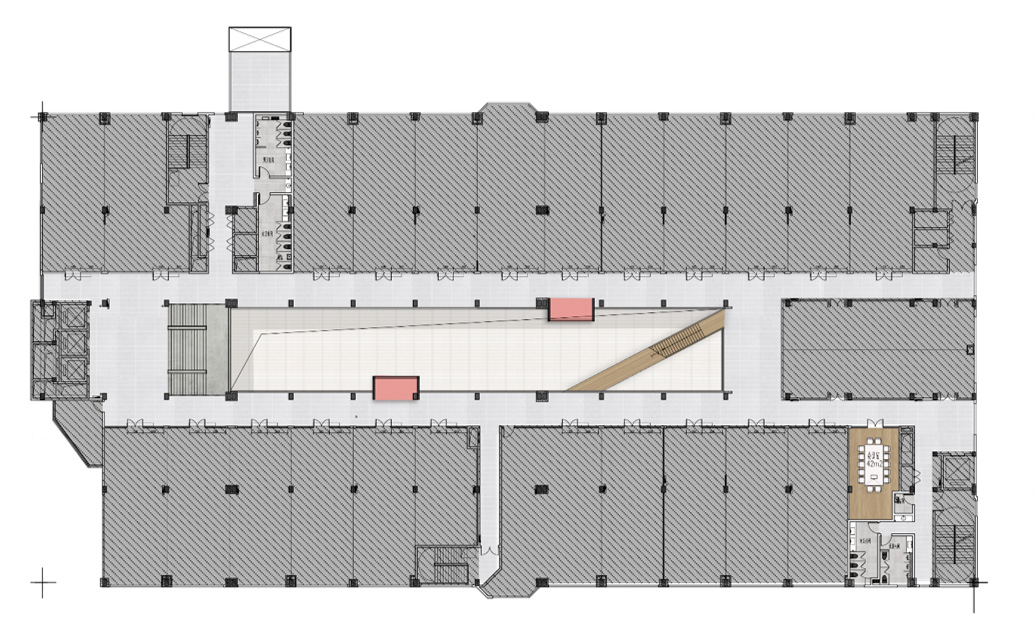
∇ 四層平麵圖
∇ 五層平麵圖
∇ 景觀總平麵圖
項目信息
項目名稱:金地威新·8號橋濱江園
地址:上海市盧灣區打浦路603號
設計麵積:約12000平方米
設計時間:2020.02-2020.12
建造時間:2021.01-2021.07
設計公司:予舍予築
項目總負責:陳瀟、許異、李誌強、高善通
室內設計團隊:龐禹、屠夏青、國丹陽、徐建國、周雪瑩
景觀設計團隊:鬱浩豔、馬江、朱敏成
機電合作單位:上海三匠機電科技有限公司
結構顧問:王毅
攝影:繁璽視覺
































