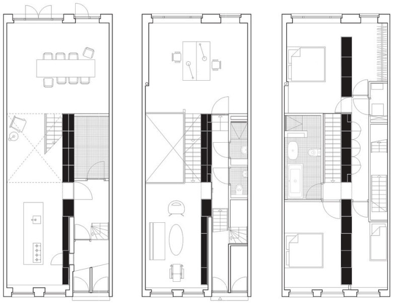
Vertical Loft位於鹿特丹市中心一處建於二戰前的建築內,這是一個大膽的嚐試,開發商根據市場的需求改造了這個樣板房式的垂直閣樓。
垂直閣樓最大的特點是三層空間共享一個特大號的儲物架,高度為9米,長度超過10米。它就像連接所有空間的紐帶,其模塊化係統的設計集成了廚房電器、書架、衣櫃等。中空的區域可以使陽光能更好的照射進將近14米的房內,鋼架樓梯的設計十分巧妙,為了能取放書方便,設計師把樓梯的結構整整取消了一半,樓梯和儲物架看起來更像是一個整體。
這將是一個熱愛讀書和熱愛收藏的人十分向往的居住形式,無論在房間內的哪個位置都能有書看。
Photos © Allen Vallejo
Content Copyright © www.online4teile.com
版權聲明:本站所有文章除投稿授權發布外,其他文字內容均為原創,享有著作權保護,未經許可不得以任何形式進行轉載(包括且不限於:媒體、網站、公眾號等)。所有項目照片/設計圖形版權歸原作者所有。本站部分內容源自網絡公開資源或用戶分享,如若侵犯了原作者的合法權益,可聯係我們進行處理。


























