Casa Cabrita Moleiro別墅位於葡萄牙Lagoa的高地上,旨在將舊的農業地產變成住宅空間,其靈活性以適應各種用途和共享是項目的主要條件。在這個地方,以現有的風井為主,曾經用於種植小麥,其他預先存在的東西,如磨坊主的老房子,打穀區甚至是一個小畜欄,共同強化了突出的鄉村特色及其構建元素。
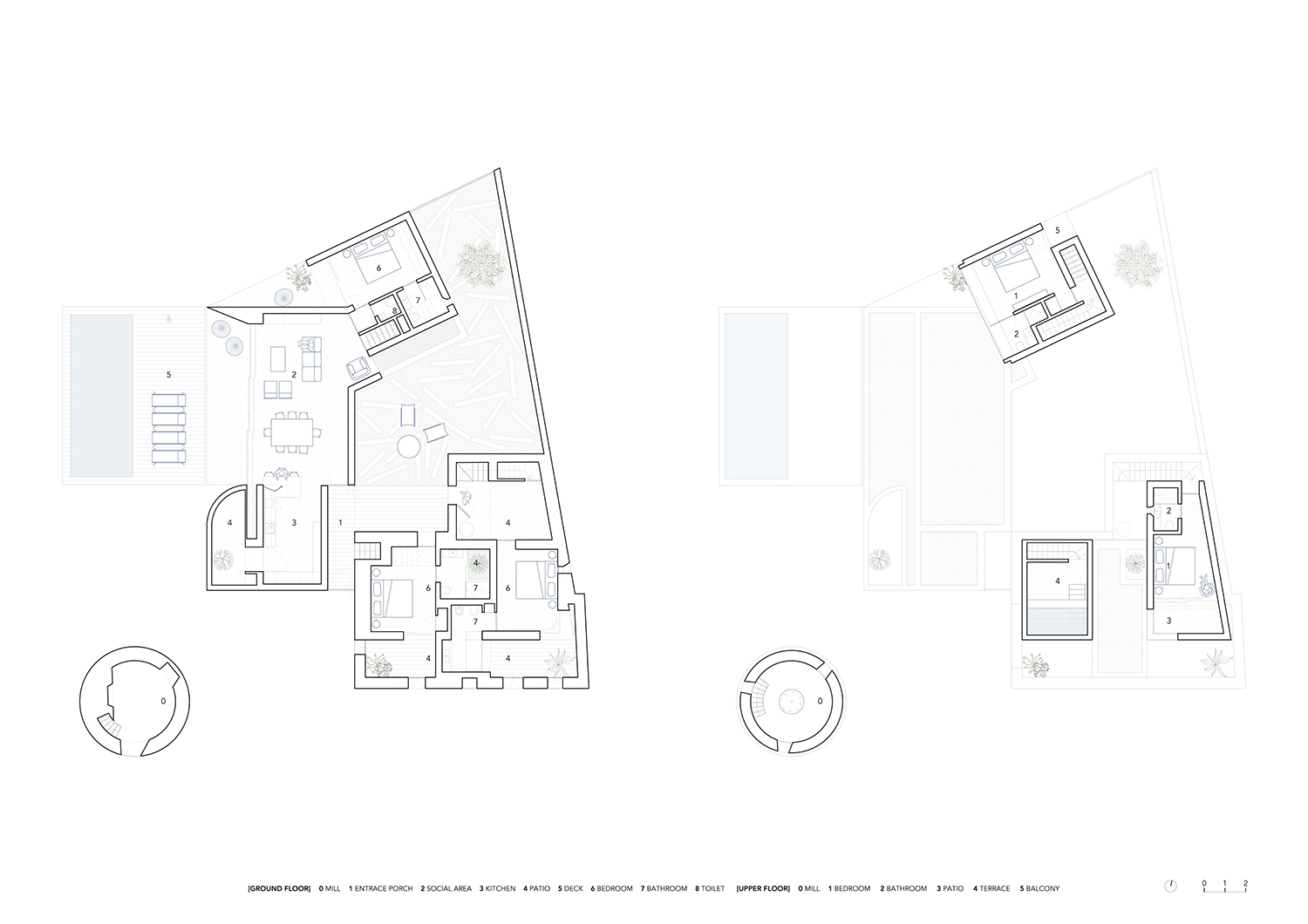
老房子周邊和新建區域之間的連接充當了房子不同空間的分布軸。這個分配軸使房子本身可以靈活地使用:一棟作為一個單元工作的房子,有五間臥室,或者從另一個角度來看,一棟有兩間臥室的房子,輔以一個獨立的翼樓,該翼樓還有三間臥室。
項目開發是由修複舊結構的需要推動,並將它們重新調整到新的使用和功能範圍,旨在將其中一些元素融入新的空間和體驗動態中,使它們屬於一個新的空間。舊牆被改造成一個新的界限,包含並構成了幹預的一部分。從這個新的限製中,出現了新建築體量的銜接,並且由於它們的布置,產生了空曠的空隙,強調了室內和室外之間的關係。同時,它們有助於更好地感知經曆不同階段和暴露水平的空間。
這種區分不同親密程度的空間漸進式建造過程,同樣從剖麵的角度進行了探索,其中不同高度的體量與周圍環境產生了不同的對抗,將我們的視野擴大到它的無限性,或者相反,將它框定在一個庭院的包含特征中。 空間規劃的分布考慮了公共和私人區域之間的區別,將它們與不同的特定體量聯係起來。
廚房、起居室和遊泳池(以及相關的戶外休閑區)所在的社交區域被放置在一層,其中心性強化了建立一個聚集歡樂和共享氛圍的核心的意圖,圍繞臥室體積的形狀。這種探索場地物理環境的設計也通過引入露台和觀景點得到加強,這是葡萄牙這一地區屋頂的傳統特征。所謂的“açoteia algarvia”被喚起並融入到項目中。
△ 場地鳥瞰
△ 設計演變
△ 平麵布置圖
△ 軸測圖




































