熾造新辦公室位於上海市靜安區平型關路138號,是一間單層麵積約40平米、淨高約5m的複式辦公空間,位於19層使得其擁有較為良好的風景視野。如何將辦公所需的各類功能合理地組合排布,並且體現熾造團隊關於“極致創意”的工作理念,成為了本次設計改造的重點。
白色&純淨 | White & Pure
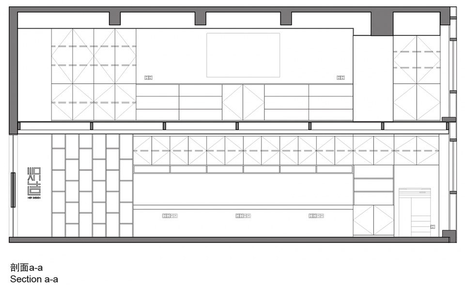
原始空間頂部的混凝土梁高低不齊,夾層樓麵又為黑色鋼結構體係,四處雜亂無章的管道等極大地放大了空間的混亂無序。為了凸顯熾造工作室秉持“未來先鋒”且“極致創意”的工作理念,我們決定將辦公室打造成一個純淨的白色空間,將一切輔助係統都藏身於白色可觸“肌膚”之下。地麵采用白色pvc地坪,施工便捷且耐汙性能較好,牆麵、櫃體、樓梯均選擇白色與之呼應。一樓兩側辦公桌采用白色微水泥,一方麵避免了成品板材拚合超長桌麵時不可規避的分割縫,一方麵將桌麵與微水泥台階完美地融為一體,形成統一的幾何語言。吊頂完美地將結構梁、強弱電線等係統遮蔽起來,為了進一步增強其“純淨值”,我們采用磁吸軌道燈作為空間主照明手段,極大簡化了吊頂語言元素,同時仍具備豐富且合理的照明層次。
光影&科幻 | Shadow & Sci-Fi
燈光在空間中扮演了重要的角色。工作室燈光的開啟或關閉呈現出兩種截然不同的體驗感——前者體現了輕巧靈動且科幻高技的韻味,後者則幾何構築感更強。入口的光影走廊成為室內外空間的過渡橋梁,迅速將人從喧囂塵市切換至創意辦公場景。吊櫃、書架等線型光不僅提供輔助照明,同時也勾勒出空間的韻律層次。主照明所用的磁吸軌道燈選用了格柵射燈+條型泛光燈+36°光束角射燈三類照明模式,配合內嵌式深筒防眩射燈,提供辦公空間不同功能與層次的照明需求。辦公桌與台階下側的光帶給予空間“懸浮”感,提供一種輕鬆且愉悅的工作體驗。
超薄&輕盈 | Thin & Light
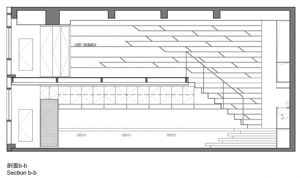
工作室打造超薄輕盈的質感來對抗層高限製所帶來的“壓迫”。由於空間寬度與進深並不寬裕,因此樓梯的尺寸與形式極大地影響了空間的感受。我們將台階的前4級與辦公桌融為一體,並選用5mm厚鋼板從牆體懸挑而出,成為連通上下空間的紐帶。我們不斷減小樓梯踏麵厚度以及欄杆截麵尺寸,弱化其存在亦能減少空間視線的遮擋,增強空間的通透性以及輕盈感。
引導性&流動感 | Guide & Flow
我們摒棄了傳統的網格式書架布局,意圖讓書架參與空間氛圍的塑造。入口的書架層層遞進凸出,一方麵形成半遮掩型照壁,劃分出入口空間區域;另一方麵具有視線與行為導引性,暗示了右側通向二樓的路徑。樓梯一側的通高牆壁設計了線型書架,同時根據樓梯的斜度趨勢增加傾斜格擋,這樣以來整麵牆體充滿了“流動感”——不僅具有通向二樓行走的引導性,同時也暗含了設計團隊的蓬勃發展和不斷創新的源動力。除此之外辦公桌、吊頂磁吸軌道等布局也呼應了線型書架的“湧動”方向,使得整個空間似靜非靜,有一種箭在弦上,揚帆起航之勢。
寬敞&自由 | Cozy & Free
空間的布局給予辦公者極大的活動自由,其中一樓主要為辦公區,包含打印機及水吧等配套功能,二樓主要為會議區,同時配套休憩角。一樓設有6-8個辦公席位,人均享有1.7m寬空間,連通辦公桌的台階不僅承擔通行功能,同時也具備放置建築模型等展覽性質物件;水吧台位於入口台階處,方便上下層的人過去使用;二樓設置了5m超長辦公桌,靠近樓梯一側是可容納8-9人會議的會議區,靠近窗戶的則是雙座辦公位。而靠近入口一側的盡端,則是可供閱讀和冥想的休憩角。
∇ 一層平麵圖 ©熾造設計工作室
∇ 二層平麵圖 ©熾造設計工作室
∇ 剖麵圖 ©熾造設計工作室
項目信息
項目名稱:熾造辦公室改造
設計:HOT Design熾造設計
主持建築師:王祥、嚴珂
項目位置:上海市靜安區平型關路138號
麵積:84m2
設計周期:2021年7月-9月
施工周期:2021年9月-12月
施工:上海煜榫裝飾工程有限公司
主要材料:白色生態板、PVC地坪、微水泥、乳膠漆、磁吸軌道燈
模特:唐銘
攝影:劉俊男































