這棟海景別墅位於神奈川縣的海邊,分為地下1層,地上2層的結構。該地點位於沿海的一個別墅區。小川晉一(Shinichi Ogawa & Associates)團隊建築師在南側規劃了一個大開口,可以俯瞰大海,一樓的露台和遊泳池在現有的護岸擋土牆上形成了一個向大海突出的白色體量的立麵。
在北立麵,建築師計劃了一個通往屋頂的大樓梯。爬上大樓梯到屋頂,在壯麗的海平麵和遠處的富士山的映襯下,會發現一個透明的藍色天池,由透明亞克力板的四個側麵組成,大小為 3m x 8m。從門廊,穿過門廳,下樓梯,映入眼簾的是大全景。
客廳和餐廳位於一樓,大開口由六扇高4.5 m的窗扇組成。打開窗扇,就變成了客廳和露台相連的空間,無邊際泳池通過露台和泳池一直延伸到大海。 在客廳旁邊的半外空間中,由玻璃隔開,一個18m的水池向海延伸,構成了通往無邊際水池的場景。房間以白色為基色,簡約,沒有多餘裝飾的中性空間是一個可以感受自然瞬息萬變的空間。“SKYPOOL VILLA”,可以在生活空間中以清晰的空間構圖欣賞大全景。
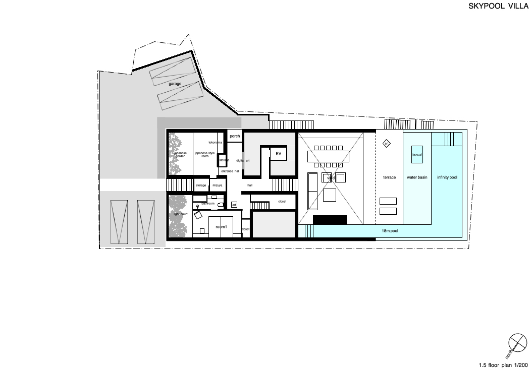
△ 地下一層平麵圖
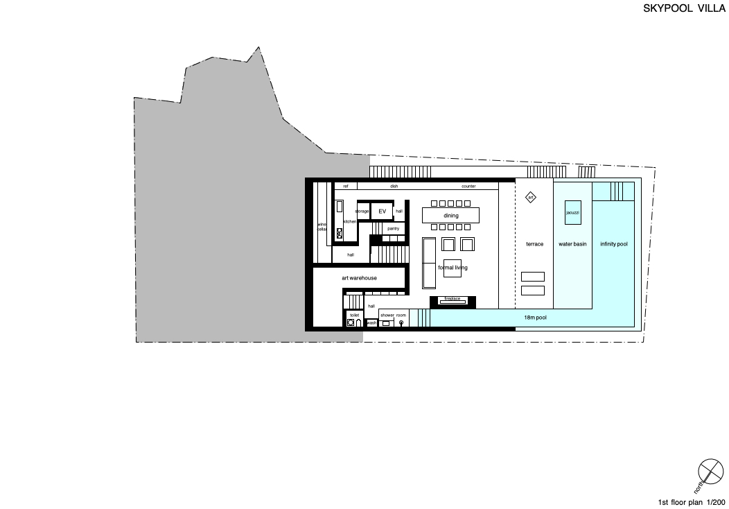
△ 一層平麵圖
△ 二層平麵圖
△ 屋頂平麵圖
△ 剖麵圖1
△ 剖麵圖2
版權聲明:本站所有文章除投稿授權發布外,其他文字內容均為原創,享有著作權保護,未經許可不得以任何形式進行轉載(包括且不限於:媒體、網站、公眾號等)。所有項目照片/設計圖形版權歸原作者所有。本站部分內容源自網絡公開資源或用戶分享,如若侵犯了原作者的合法權益,可聯係我們進行處理。






































