現有的花園在布局上受到了影響,天花板高度低,空間黑暗,與大型後花園的連通性差。作為建築師作品的長期追隨者,客戶委托ConForm設計一個精致、有質感的別墅庭院,利用並延伸到被成熟樹木包圍的大型後花園。
後部擴建的原始概念借鑒了對建築物裝飾性凸窗的重新詮釋和前立麵的華麗細節,這是整個保護區維多利亞式聯排別墅的典型特征。從概念上講,擴建部分被開發為一個現代的傾斜海灣,向後傾斜,以減少對鄰近物業的視覺影響,同時喚起維多利亞時代特色的街景。
通過借鑒典型飄窗的三部分元素——底座、柱子和山牆,每個元素都由不同的材料劃分,在剖麵上進一步增強了這一概念。混凝土樓板基準的底座,光滑的綠色水磨石柱和質地粘土色石膏的屋頂平麵。進入主走廊後,可以立即通過房間欣賞到遠處朝南的花園的精心策劃的景色。通過一係列天窗和玻璃設計,這些玻璃捕捉了自然光和花園的景色。
客戶希望將物業的起居空間重新定位到花園,同時也尋求最大限度地利用潛在的臥室以實現價值目的。為了幫助實現這一目標,ConForm在迄今為止的臥室中引入了一係列巧妙的視覺錯覺,通過天窗直接可以看到花園並提供通風。隱藏的三扇口袋門延伸到起居空間,以關閉另一間客臥,或在需要時營造舒適的空間。
廚房由精致的淺色橡木櫥櫃組成,為儲物和功能創造了充足的空間,同時通過在門上增加周邊框架細節來提供額外的裝飾價值。基座作為貫穿Terzetto設計的視覺連接,傳達了廚房、走廊和露台之間的關係,所有這些都通過一條統一的基準線連接起來。
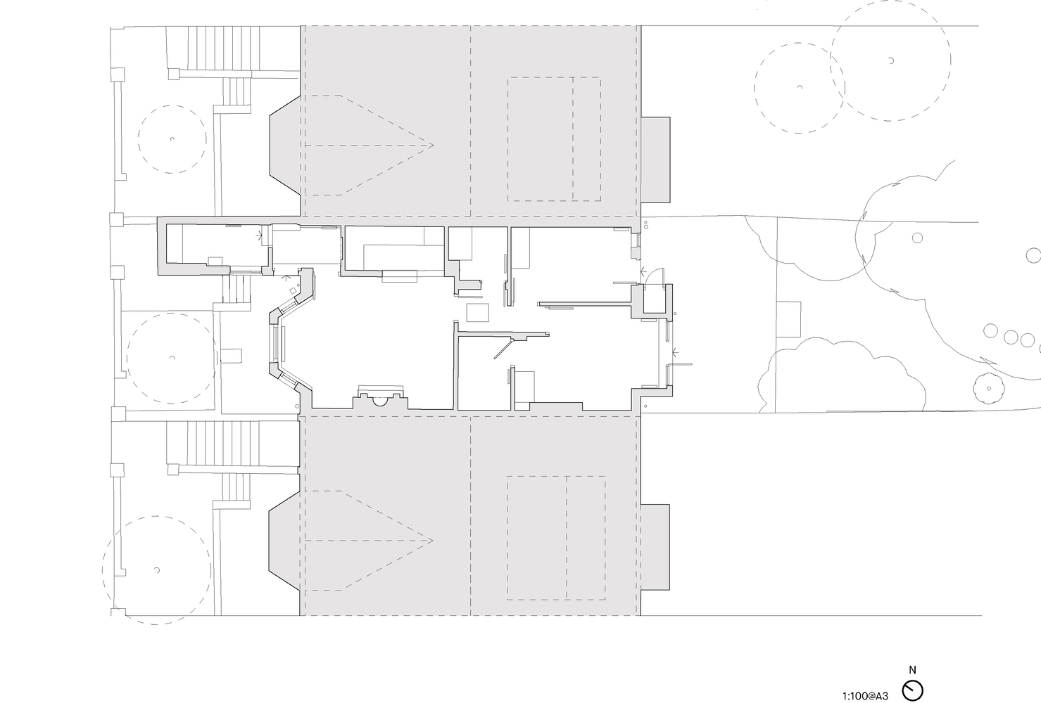
∇原始結構圖
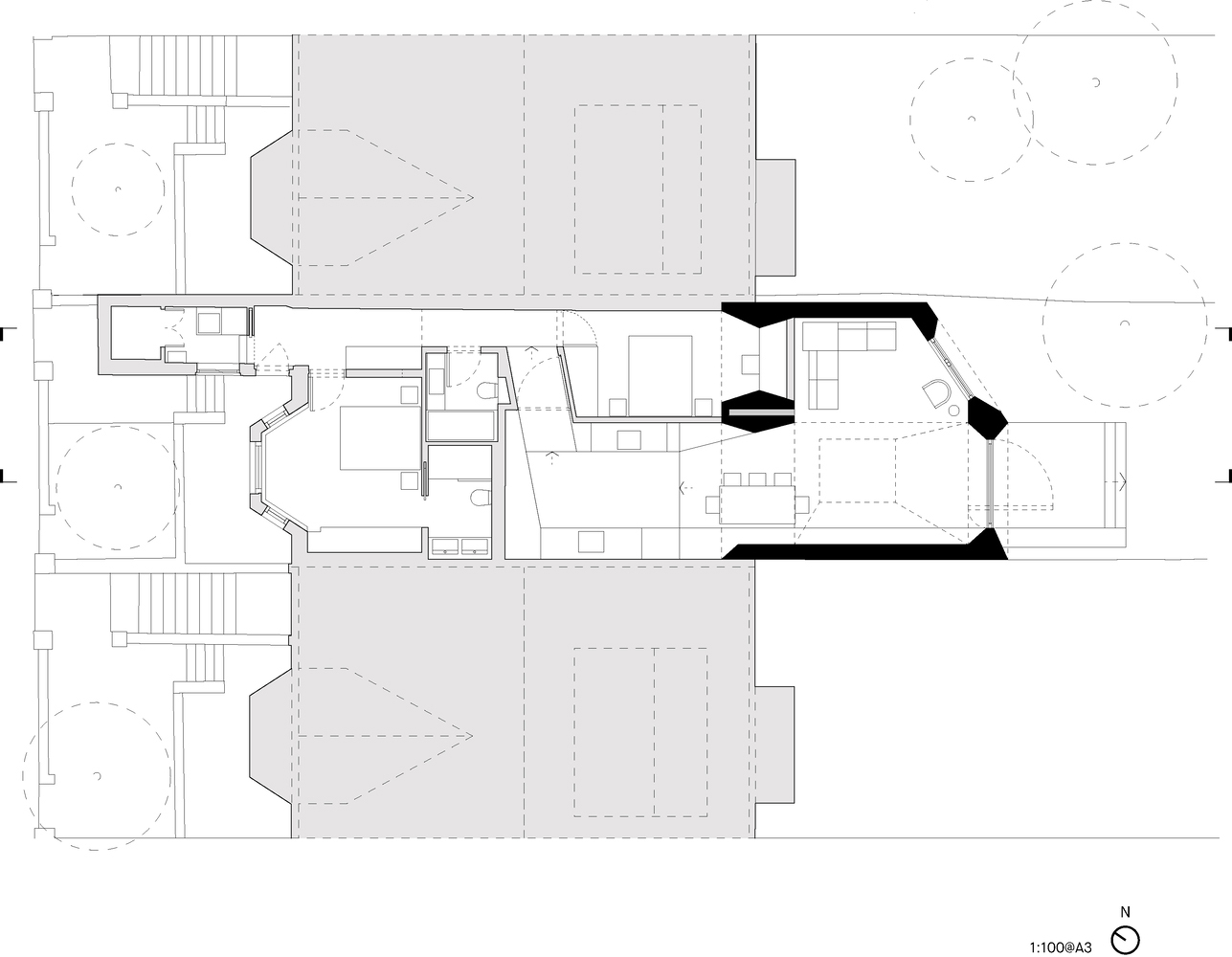
∇平麵布置圖
∇軸測圖
版權聲明:本站所有文章除投稿授權發布外,其他文字內容均為原創,享有著作權保護,未經許可不得以任何形式進行轉載(包括且不限於:媒體、網站、公眾號等)。所有項目照片/設計圖形版權歸原作者所有。本站部分內容源自網絡公開資源或用戶分享,如若侵犯了原作者的合法權益,可聯係我們進行處理。



































