向陽而生,逐光而行,讓光重煥20年老宅活力。
迎光之“庭” The atrium embracing the sunshine
中心光庭 | Central Atrium
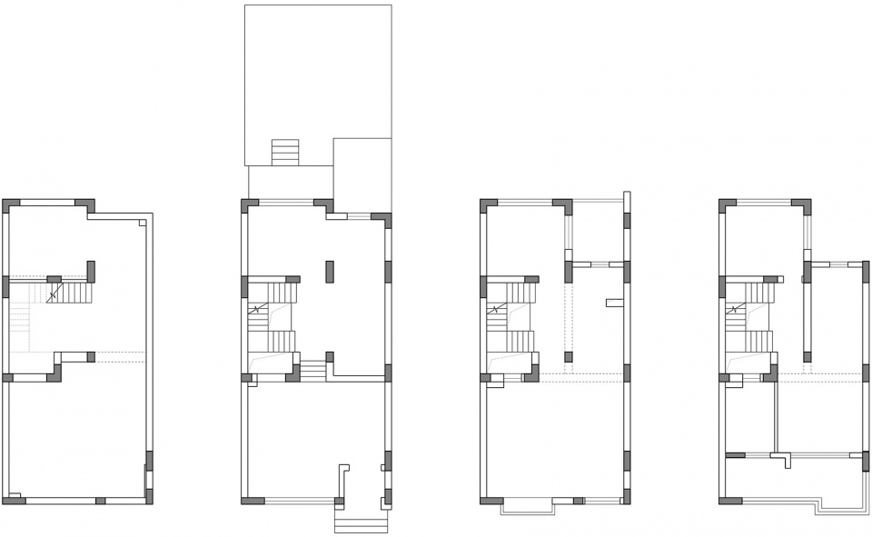
它是空間中的核心,原本是房屋的采光天井,而之前一次的改造將樓梯移到了這個區域,樓梯本不該去阻擋更為充足的光線到達各層,然而誰也無法拒絕樓梯挪位帶來的更多使用空間。
圍繞著房子中間的采光井,我們重新定義了幾個“庭”“園”,讓建築內部進一步切分成不同層次的“內”與“外”、“明”與“暗”、“曲折”與“開闊”區域。穿行於“光庭”中的“遊園”路徑,在便捷與有趣之間微妙平衡。
那麼光井和樓梯合二為一,沿邊盤旋而上的樓梯結合曲線欄板,形成柔和升起的態勢,白色材質讓頂部傾瀉而下的光線在樓梯體量間充分反射而混合均勻。白色曲線樓梯的引入讓光線有了可感知的體積和重量,而光線的又讓沐浴陽光的樓梯漂浮於一片明亮的“泡沫”中,輕盈升騰。
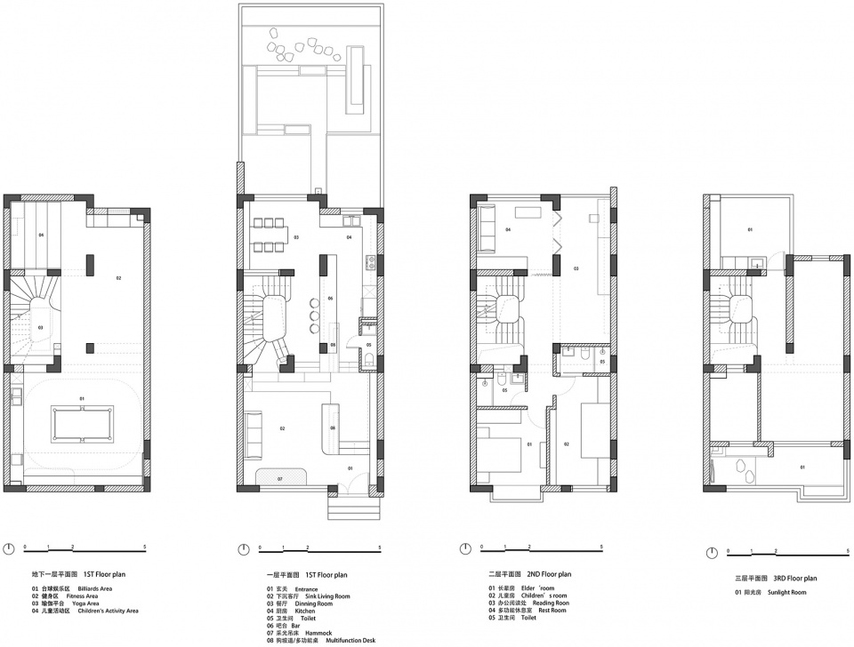
地下室活動空間、一層客廳餐廚、二層書房環繞光庭布置。如同城市中建築體量圍合而成的共享廣場。聚集功能、開放空間、充足光線帶來了家中更多層次的交流互動。
藍色光庭 | Blue Atrium
中心光庭的光線到達地下室時已經衰減大半,藍色光庭是我們新增加的一個自然采光井,它靠近客廳的南側,緊鄰窗口,陽光可以最直接的進入地下。正是這個光庭,讓原本密實不透的地下娛樂區,增加了生機,客廳和娛樂空間緊密聯係。之所以在光庭中覆蓋上藍色的軟包,意在讓光線穿過後反射的藍光讓下層空間仍能還原到它靜謐的狀態。
而在一層大多數位置並不會意識到這個光庭,光庭中間的拉網,避免了欄杆的出現,而引入的兒童活動恰到好處地與成人化的客廳混合。
紅色樂園 | Red Fairyland
它緊靠在中心光庭地下北側,布置了可以攀爬、遊戲的設施,雖是兒童專屬的遊戲場地,然而每一個成人都樂於參與其中,跟孩子“較量”一番。
紅色樂園一側的拱形洞口,讓遊戲世界鑲嵌進客廳空間中,視線交流、空間融合對這個缺乏挑高空間的房子尤為有意義。
邊庭 | Side Atrium
二層南側臥室空間以外的區域全部開放,它既可以對望中心光庭,也能俯瞰北側室外花園。布置書桌、書架、琴台,是家中的圖書館、音樂室。
遊園之“徑” The Paths
中心光庭螺旋上下的樓梯並不獨立,它與其他空間自然銜接。
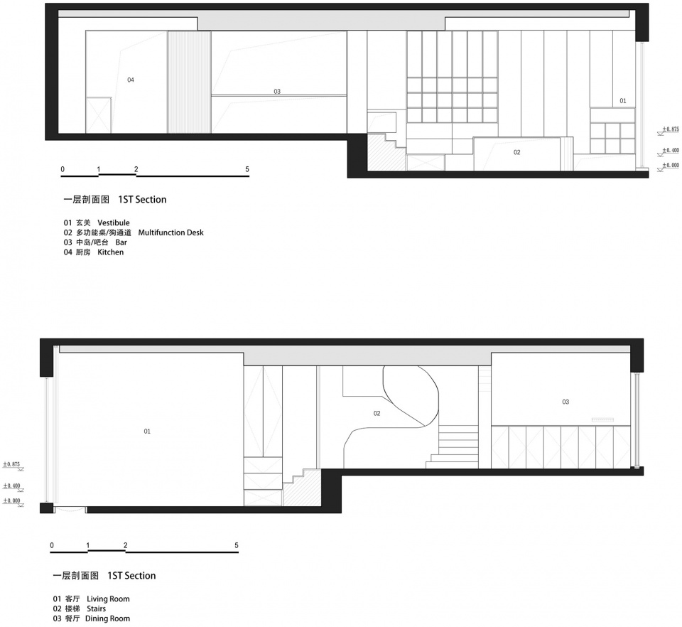
原戶型的客廳和餐廚、餐廳和北花園有1.2米的高差,陡峭的台階極大地割裂了各部分空間聯係。我們將直接集中的台階上下,分解成為“走走停停”,切分出更多更短暫的高差,入戶換鞋後先上兩個台階,移步至中心光庭位置,再上三步。穿行的抬高路徑,自然的切分出下沉的客廳、上抬的餐廚區,而中心光庭與它們間相互銜接,地下到客廳、地下到餐廚、餐廚到客廳,形成有趣的分叉路徑。它讓家裏的空間“遊動”起來。
變換的路徑也因家中有一隻年邁且後腿病壞的柯基,為它加設了一條無障礙路徑。客廳對麵處高起的台子,對於玄關來說是換鞋凳,對於客廳來說是吧台,而下麵的拱洞就是狗的通道,由它跨過第一次高差,然後在中心光庭和廚房間的台子,是家中的中島、餐台,也是狗跨過客廳、餐廳間高差的通道。
柔光中的雕塑 Sculptures bathed in subdued lights
當光庭呈現,路徑切分後,家中剩下的空間遵循著梁柱、設備、家具等自然地形成隆起的體量,它們又悄然地融進吧台、長桌、鞋凳、狗洞、儲納功能使用中。在柔和的光線中顯現出雕塑般的明暗轉折。
∇ 原始平麵圖
∇ 項目平麵圖
∇ 一層剖麵圖
∇ 樓梯間剖麵圖
項目信息
項目名稱:光庭
設計方:大海小燕設計工作室
項目設計 & 完成年份:2020-2021年
主創及設計團隊:郭東海,燕泠霖
項目地址:上海市靜安區
建築麵積:300m2
攝影版權:恩萬建築攝影









































