業主對於城市的喧囂以及繁重的日常工作有著無奈,借著這一次選擇新的生活空間鼓起了勇氣嚐試一個全新的生活模式,遠離城市、擁抱自然環境!新生活的基地鄰近中國·台灣高雄山區阿公店水庫旁低密度住宅區,主建築物二樓懸浮牆底下築起了綠色植坡,建築物盡可能的開窗麵對南向的丘陵地,在自己的庭院築起了自然草坡呼應丘陵邊坡的綠意。
環境氣候的劇烈變遷已經是全球住民所要麵對的首要問題,自然環境良好的通風更直接降低建築物空調的耗能。建築物盡可能的南北向開窗讓空氣流通並取得室內通光量,東西向建築外立麵采用懸浮式造型,藉以增加遮陰性避免陽光的直射。室內設計在建築開窗比例與外在自然環境良好的對應下盡可能的不做多餘的裝修,在地性環保回收材料的大量運用降低了碳排放量,期待為下一代地球的住民保留更多生活上的美好。






















∇ 設計分析





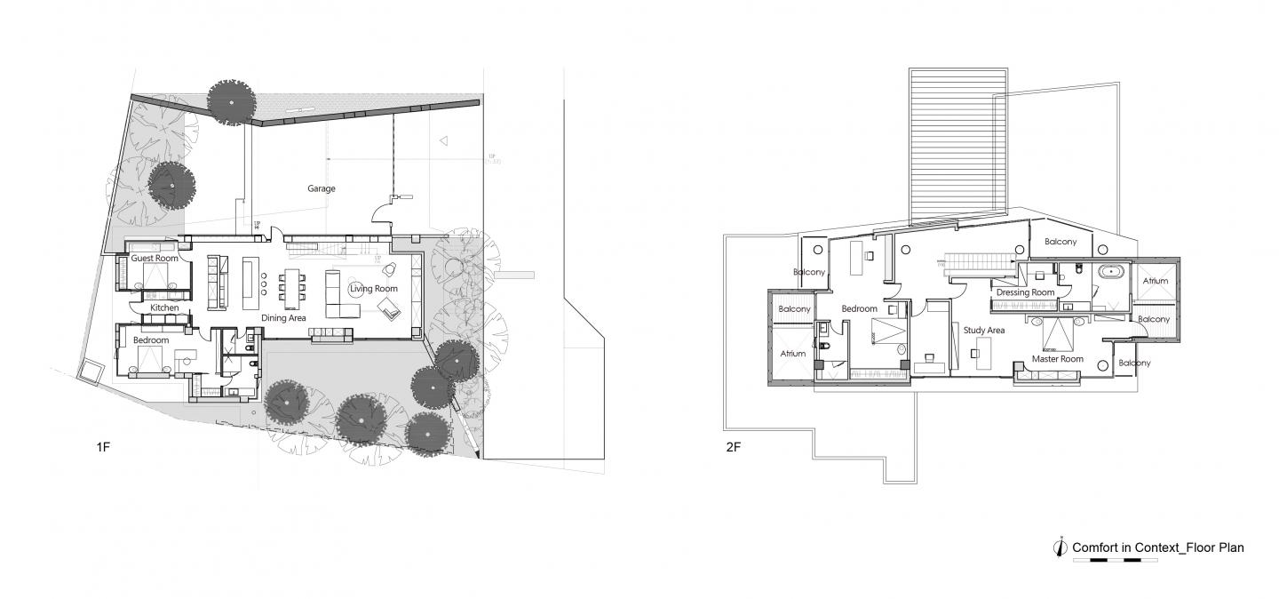
∇ 平麵布置圖

橙田建築/室研所
空間是人與環境之間一個重要的連結。
一個好的環境,應該要從建築到室內設計,做一致性的設計,內外空間的相互交融,成就一個完善的居住有機體,我們期許能夠創造出讓生活更貼近大自然的建築,讓使用者感受師法自然所帶來的美好。
空間是人與環境之間的重要紐帶。
一個良好的環境應該包括建築和室內設計。一致的設計和內外空間的融合,可以實現完美的生活共生。我們希望創造出讓生活更貼近自然的建築,讓用戶感受到大自然帶來的美。
羅耕甫 / 橙田建築│室研所主持設計
設計思想
盡可能的減少手段與方式,用純粹的感知和創造力去除一切多餘的元素,以簡潔的形式,客觀理想的反應事物的本質。
建築可以擁有許多的感性與想像空間,使人與自然的關係透過垂直向的錯落拉近彼此的距離,標準化的區域切割不再是唯一的選項,範圍無實界的空間思考,模糊的邊界,使得整體空間的使用上,更加寬敞與流暢,不僅降低人際的疏離感,也包容了創新無界限的意涵,期許能在環境、建築、居室與人之間創造出密不可分的關係,使人沉浸在自然語氣中。
概念
減少和去除一切多餘的元素,使純粹的感知和創造力能夠以簡單的形式和客觀的理想反映事物的本質。
建築物可以有許多歸納和想象的空間。標準化區域分離不再是唯一的選擇。使用模糊的邊界可以利用整個空間。這創造了一種寬敞和流動的感覺,有助於將居民聚集在一起。這也包含了創新無邊界的意義。我希望創造一種環境、建築、客廳和人密不可分的關係,讓人們沉浸在自然世界中。









