“作為設計師,我們希望辦公空間不是枯燥伏案的場所,而是一個以多樣化場景構成的可持續空間。這個’黑白容器’是我們為自己重新定義的辦公空間,在黑白的底色之上,我們將所需的輔助功能和分隔牆體同化,空間從而顯現出一種可感知的秩序感和流動性,輔以可自由轉換的空間場景,新的故事和未來的暢想在這裏不斷生長。”
line+上海辦公室選址於上海虹橋商務區內的諾亞財富中心。作為走出杭州的第一站,line+希望在此打造一個集企業展示、學術沙龍和舒適辦公為一體的空間。在新地域拓展業務的同時,新的辦公場地也將樹立更高品質的企業形象。
諾亞財富中心的建築由福斯特建築事務所設計。作為高端寫字樓,成熟的架空地板層、地送風係統以及天花集成係統為後續設計提供了良好的前提。端部開間擁有兩個連續幕牆麵,從而獲取了極好的城市景觀和自然光照。頂部的金色鋁板是立麵材料向內的延伸,保證了建築立麵的完整性,卻也成了室內既定的預設條件。
∇ 設計概念和空間原貌
和line+杭州辦公室一樣,我們希望這裏不是枯燥伏案的場所,而是設計師、業主、各類專家進行交流碰撞的空間。因此在功能排布上,設計要解決的是如何讓展廳、沙龍以及30人的辦公在不到300方的麵積內生動地展開。同時在空間形式上,如何盡量減少無法拆除的金色鋁板對最終效果的影響。
∇ 空間生成
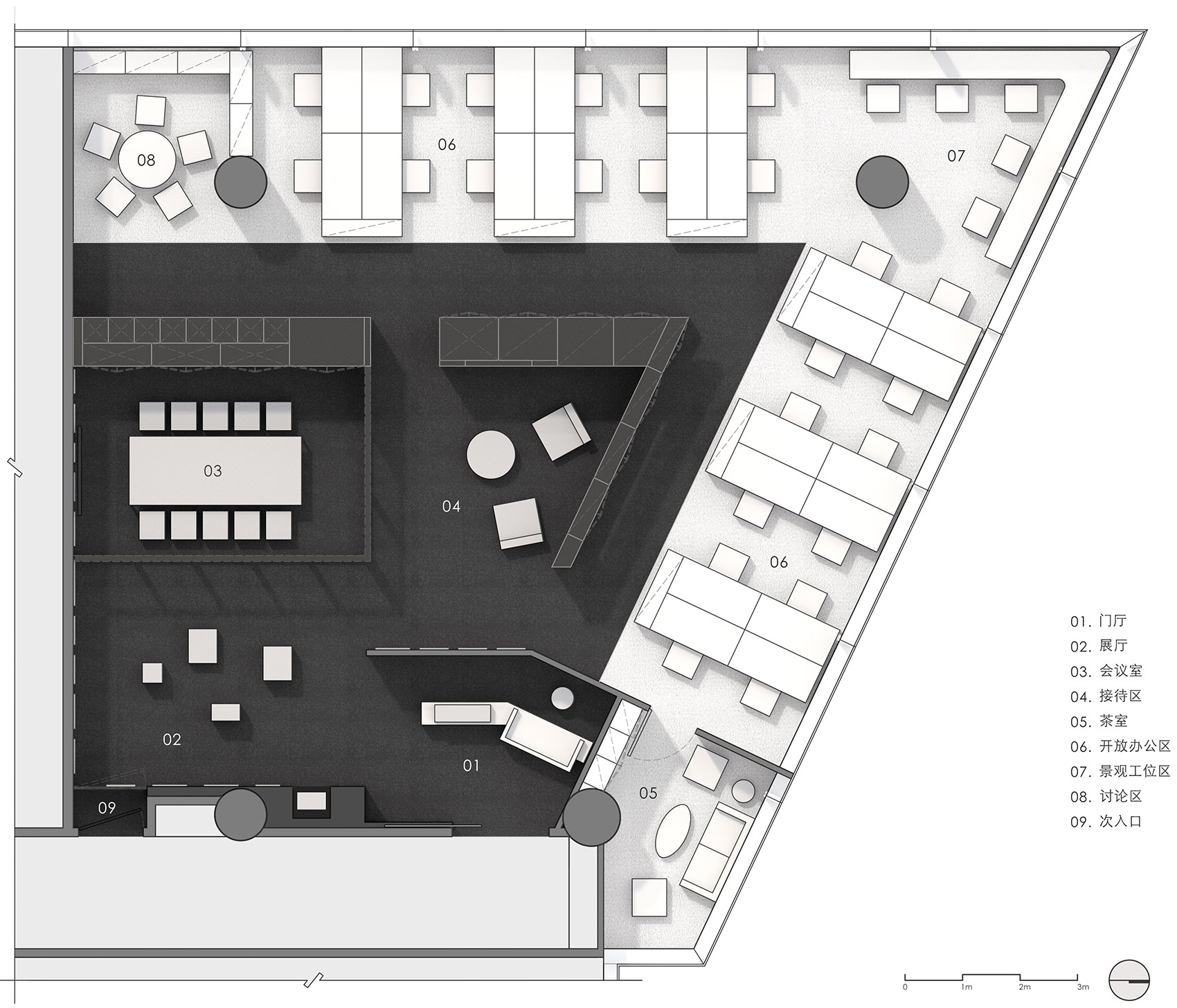
設計遵循原有的場地平麵邏輯,將空間分為辦公和公共兩個區域。辦公區域自然沿幕牆側展開,同時擁有敞亮的辦公氛圍和一定的私密性。公共區域則包含了前台、展廳、會議、接待等功能。
在空間上,兩個區域由中部的集中功能牆體分隔,在視覺上則采用黑白兩色的對比。空間和視覺分隔的錯位自然形成了主走道。
深色的牆麵地麵配合頂部的發光膜係統塑造了公共區域的純粹氣質,也更能凸顯展品本身。考慮到所受光照條件的不同和材質本身的差異,牆麵的乳膠漆、烤漆麵以及地麵的地毯都做了專門的顏色挑選,以確保呈現效果的統一。
移動隔斷則使得公共區域可以在常規會議、沙龍和展覽等不同模式間隨意切換。這樣的靈活性帶來的是更高的空間利用頻率。
為了讓功能區域最大化,我們將所有輔助功能集中在用以做空間分隔的中部牆體。水吧台、打印機、服務器機櫃、書籍模型展櫃以及儲藏等功能對應地向兩側提供服務。牆體保證了兩個區域一定的獨立性並豐富了空間層次。在銳角側打開的取景框對應建築形體,不僅讓接待區的使用者享受城市景觀,更是對不同區域間互動溝通的促進。
由白色辦公家具和白色地毯組成的辦公區域和公共區域的深色形成對比,將自然光照形成的明朗氛圍最大化。頂部原有的金色鋁板由此得以自然地納入,對室內空間的影響降至最低。端部窗側的景觀工位給午餐的員工帶來更好的心情。
胡桃木、跳色家具在黑白兩色的純淨環境中尤為凸顯,為空間帶來溫暖和品質感。
日常工作中,員工開會討論、休閑咖啡亦或是客戶來訪參觀,都穿行於兩個區域間。即使麵積不足300平,空間和色彩的轉換也同樣能帶來豐富的體驗。
∇ 日常辦公室模式平麵圖
∇ LINK模式平麵圖
項目信息
項目名稱:line+上海辦公空間
項目位置:上海市諾亞財富中心
項目麵積:290㎡
設計建成:2021.03-2021.05
設計單位:line+建築事務所
主持建築師:孟凡浩、朱培棟
項目主創:祝駿
設計團隊:祝駿、楊莉、張思思、邱麗瑉
家具:杭州智楷家具、Enjoyspace
攝影:yuuuunstudio雲眠



































