“To see the world,things dangerous to come to. To see behind walls,draw closer;to find each other and to feel,that is the purpose of life. “
開拓視野,衝破艱險,看見世界,身臨其境,貼近彼此,感受生活,這就是生活的目的。
∇ 門廳
生活坐標
越來越多的時候,我們感覺生活處於懸浮中,不滿於當下,想要擺脫眼前,但缺少方法,渴望逃離。認知坐標的缺失、選擇依據的混亂,或許是時代的痛點。
家是我們最後的堡壘,庇護著人的身體與靈魂,深深紮根於我們的意識和無意識中。充滿夢想的、孤獨的、幻想的、激情的空間,總能激起我們內在的感知。
設計不是一種單純的技巧表達,它是對時代的反饋,思考後的答案,一種人置身於何處的認知坐標。私宅設計要實現認知自我,平衡與周圍人、事、物的關係的隱性需求,不斷地接近、表達內心最真實的思考。
這座位於上海的600㎡的獨棟別墅裏,設計師常恩經過大量的空間改造,使其成為一個流動開放的空間,與自然無限連接,奢侈的三代人的共享空間,大麵積的黑色,極具摩登都市的自由姿態。從家宅看見世界,貼近彼此,感受生活,再勇往直前。
建築是故事的容器,私宅尤其如此。居住者把全部的經曆與情感投注到空間裏,把它變成無限溫柔與美好的所在。
幸福的空間是無法標準化的,設計師要做的,是發掘每個家庭成員的生活方式與生活夢想,為每種習慣、每種偏好、每種心情找到可以安放的位置。
當一切都做對了,家就成了一曲和諧的樂章,那流淌著的,就是生活。
∇ 客廳
∇ 餐廳
∇ 起居廳
以秩序構建空間
設計一個空間,就像導演一部電影,講述故事,營造情境,傳達感情,擁有起承轉合的結構。在這個場域裏,設計師常恩希望賦予其精神屬性,讓空間擁有人的情緒、故事和情感,讓每一個居住其中的人演繹與空間的交互故事。
以“自由”和“秩序感”為關鍵詞,設計師將空間重組,整個一層在不同功能之間保持開放性,以牆體的阻隔、下沉、材質的變換作為空間區隔的界限,開敞自由,消解了心理上的空間概念,而把人的行為軌跡、生活方式、情感交互作為參照係和空間串聯紐帶,形成獨特的空間記憶。
中庭挑高作為空間的核心精神,設計師在縱向與橫向上以兩條設計線完成整個空間的排布和功能劃分。
光線從頂部傾瀉而下,視野開闊不受遮擋,空間的縱深感由此展開。黑色的樓梯如折紙層疊向上,空間的張力如戲劇衝突達到頂點。
橫向上圍繞著中庭形成洄遊動線,在迂回的場域中自由穿梭,引導人體驗空間的豐富性。整個一層從入口玄關開始,依次分為客廳、餐廳和中西廚區、長輩臥室與起居廳,正中間為內庭院。家庭公共生活、共享空間、情感交流是故事主線。
∇ 樓梯
捕捉光與自然
柯布西耶說,氛圍生於光,空間成於光,建築訴諸於光。
一杯咖啡,一把舒服的椅子,一縷光,聆聽時光潺潺流淌的聲音。陽光是極好的鎮靜劑,日子悠長,時而激揚,時而懶散,享受當下,生活如此快樂。
設計師在每個空間是最大限度的開窗,召喚光線的參與,空間繞光而行,自然通透。更有頂部傾瀉而下的光,裁剪出不同的空間形態,以陰影重塑造型。
樓梯以黑色詮釋自由精神,摩登、先鋒,是一種生活態度,褪去不必要的繁瑣,以極致的工藝呈現出藝術姿態。
∇ 中庭
客廳平衡了舒適的功能性和正式的社交需要,低飽和度的色調,以咖啡色和棕色表達情緒。與入戶玄關以石材牆麵作為分隔,水墨紋理,如遠山煙雨,山澗流水,變幻萬千,透露出靜謐與禪意。大麵積的開窗,充足的光線灑滿客廳,讓一切充滿生機和能量。
來自gufram的仙人掌色彩大膽,波普的藝術風格時尚前衛。不僅是置衣架更是空間裏的一方雕塑。
開放式的西廚簡潔凝練,黑色的中島岩板台麵與木色的櫥櫃冷暖交替。橫向長條開窗,拉伸了空間視覺,臨窗是戶外庭院,景色怡人,樹影婆娑頗具野趣。
一疊一味,在中國人的文化裏用餐就是煙火人間,一頓飯裏有著最質樸的親情,一張圓桌是最熟悉的團圓之意。黑色的圓桌椅頗有東方文化的雅致和內斂,現代極簡主義燈飾,又融入了當代潮流的生活理念,落地窗將庭院裏的竹子引入室內,“寧可食無肉,不可使居無竹。”
除了完善的生活機能,開放式的起居廳既可以作為共享空間,亦可成為長輩的休閑區域,家庭活動、喝茶、練習書法,是父母家人相處的親密空間。
∇ 客廳
安靜優雅的休憩空間
午後,樹影的綠意和陽光透過百葉篩出的光包裹整個空間,進入一個完全自我的世界裏,在書中尋找另一個世界,以梵高的熾烈、畢加索的粗獷剛勁滌蕩浮躁,在安寧裏沉澱純粹的快樂,享受閑適。
哲學家蘇格拉底曾說:未經審視的生活是不值得過的。
男主人的書房空間以線條勾勒出人字形頂麵,黑色的牆麵、書櫃顯露出沉穩的性格,紅色的辦公椅跳動著一抹熱情。設計師打開牆體,以兩扇獨特的窗戶與中庭形成互動。
主臥更像是一種生活儀式,大麵積木質背景穿插石材,詮釋出理性主義的簡約。淺米色絨麵床與地毯,讓空間更加舒適隨性。材質的碰撞在細節上豐富了空間的體驗。步入式衣帽間與尺度奢華的洗漱區,表明出主人對品質生活的追求。
白色純粹、溫暖、流暢;而黑色沉穩、超現實、炫酷。男孩房以極具個性的黑色線條彰顯空間的氣質,黑色的玻璃衣櫃與床充滿摩登氣息。灰色的書櫃和低飽和度的黃色又讓空間更顯靈動。
書架上的空山基的Future Micky是2004年為慶祝迪斯尼(Disney)重要角色米老鼠(MickyMouse)誕生的75 周年,玩具廠牌MEDICOM特別與空山基合作的。有高達三十二處的可動機關,炫酷有趣。
∇ 書房
∇ 主臥
∇ 次臥
整個地下室,設計師打造了一個灰色空間,舒適時尚。Superloon落地燈,是Jasper Morrison 為 FLOS 設計的,靈感來自於太空和月球,燈光如同月亮一樣。通過燈架上的調光旋鈕調節亮度,如同月亮般陰晴圓缺。牆角的qeeboo金剛照明燈來自THE SHOUTER 潮流家居買手集合店,誇張的造型和色彩,與空間實現完美的碰撞,生活就該多一些趣味和新鮮感。
木質條案帶著一種侘寂美,「侘」在日語中的意思是「簡陋安靜中融入質樸的美」,「寂」則包含「人性中的寂寞感、時間易逝和萬物無常」,設計師希望整個空間呈現出樸素和本真,為主人留下生活中最值得珍惜的體驗,也提醒著主人品味當下。
∇ 活動室
結尾:
住宅以人為核心,空間的構造、美學的創造、情感的導向都基於對獨特的居者生活方式的洞察。在日常與超越日常之間,一個舒適的、
開闊的、明媚的、友好的、充滿藝術感的家呈現於眼前。
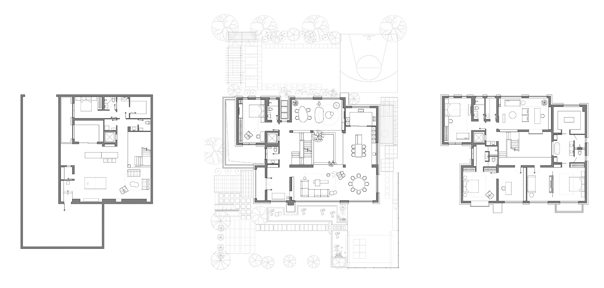
∇ 平麵圖
項目信息
項目名稱 | 翡翠私宅別墅
項目麵積 | 800㎡
項目地址 | 上海 浦東
設計總監 | 常恩
設計團隊 | 常恩設計事務所
全案統籌 | 常恩設計事務所
項目攝影 | 瀚墨視覺
品牌管理 | 回響之外
硬裝品牌 | 漢諾地板 居穎木作 奔朗石材 雅步樓梯
軟裝品牌 | THE SHOUTER

























































