很高興,西岸小宅曆時八個月的裝修並且已經入住一年有餘了;借此機會與大家分享我個人關於住宅設計的一點心得體會;
曝光自己家宅這件事,一直是心有餘悸的;畢竟對於一個室內建築師而言,住宅的設計才是回歸空間原點的本質思考,它同樣是對自己職業生涯一個階段性的審視;
∇ 模型圖
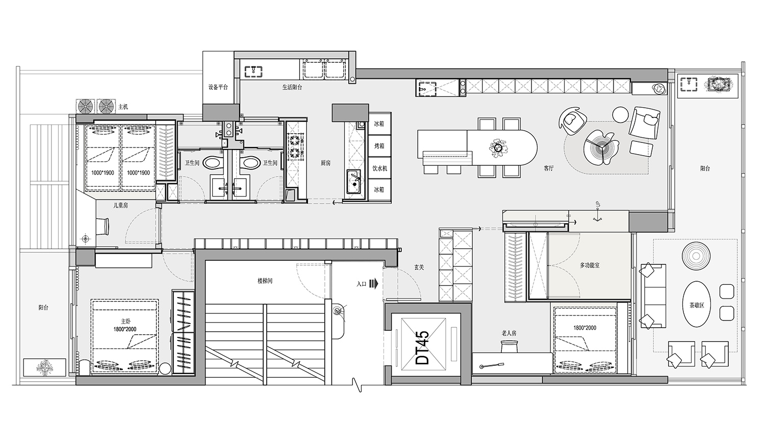
∇ 平麵圖
∇ 軸測圖
真 | 善 | 美
不怕大家笑話,從業二十年,我對家宅設計的理解就是這麼“土”的三個字
建築的本質是人與自然的關係
我們做過、感受過,這代表著–存在
而存在的原點是真
真實的生活存在感
自然材質的肌理、觸感更易喚起我們關於存在的感知和體驗
降低視覺上的噪音幹擾,去除商業化工業化的浮華包裝,所見所聞所觸皆是自然的真實氣息
可以光著腳漫步在室內的任意空間,體會四季的真實,這是舒適而放鬆的感覺而且是健康的
善意的家人關懷
關切家裏每個人的生活功能需求,並讓他們的身體可以感知到
孩子可以在家裏自由的奔跑、嬉戲(陽台、客餐廳、廚房、小孩房、榻榻米房采用推拉門,平時空間是完全打開流動的狀態)
女主人要有寬敞明亮的衣櫃、廚房、中島、洗衣房,因此而樂於家務;一個閑暇之餘可以飲茶交友的休閑陽台是女主人最愛待的地方(為了提升戶外沙發的舒適坐感,還特地把沙發腿鋸短了7厘米)
男主人在陪伴家人的同時還可以工作、學習、閱讀;(兩個帶書桌的臥室可以隨時躲避孩子的幹擾,當然客廳的中島一體餐桌才是我平時最愛待的地方)
美感體驗無處不在
空間藝術化,一靜一動皆美
讓藝術品、生活擺飾、小朋友的手做塗鴉等,都能融入空間裏
讓遙不可及的美感、美學,落實到家中每一個角落,提升居住者的美感體驗
讓真、善、美的觀念落實到我們每一個人的家中
這無關乎風格和造價
當代東方人的空間美學意識終將引領未來
項目信息
項目名稱:深圳·紅樹西岸
Project Name: Shenzhen · Mangrove West Coast
項目地址:廣東·深圳
Project Location: Shenzhen, Gangdong
設計機構:逸森建築空間整合設計
Design Agency: SUPPER TREE DESIGN
主案設計:崔傳石
Project Director: STONE CUI
軟裝陳設:崔傳石/STD團隊
Soft Outfit: STONE CUI /STD Team
設計團隊:崔傳石/STD團隊
Design Members: STONE CUI /STD Team
空間攝影:彥銘
Photography:Yan ming
設計麵積:約150㎡
Project Area: 150㎡
設計時間:2020.04
Design Time: April, 2021
完工時間:2020.12
Completion Time: Dec, 2022









































