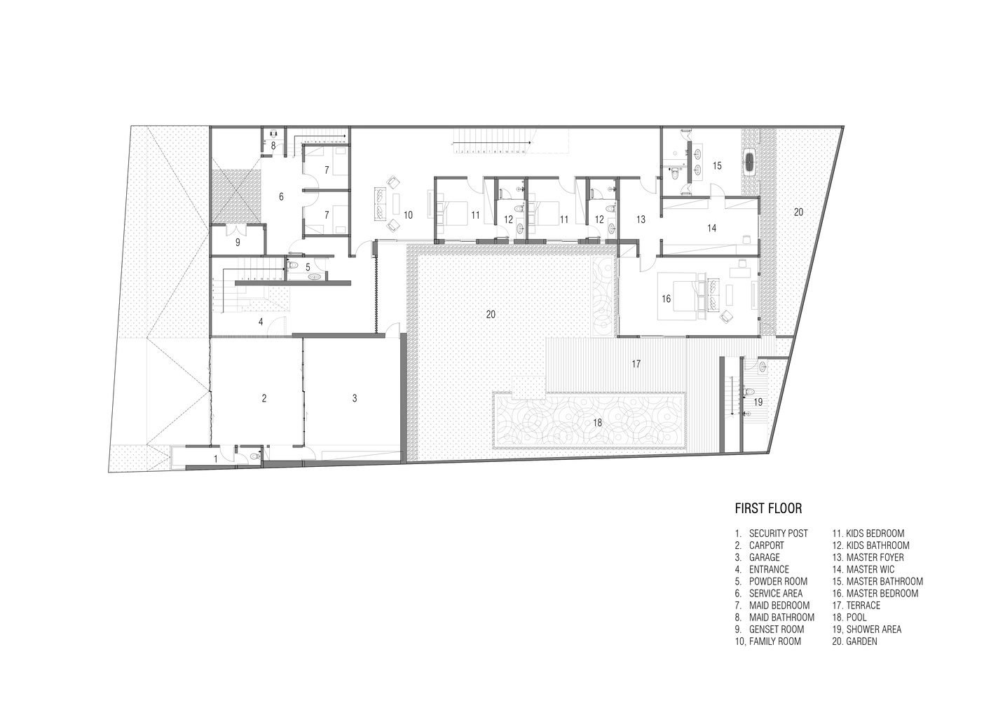
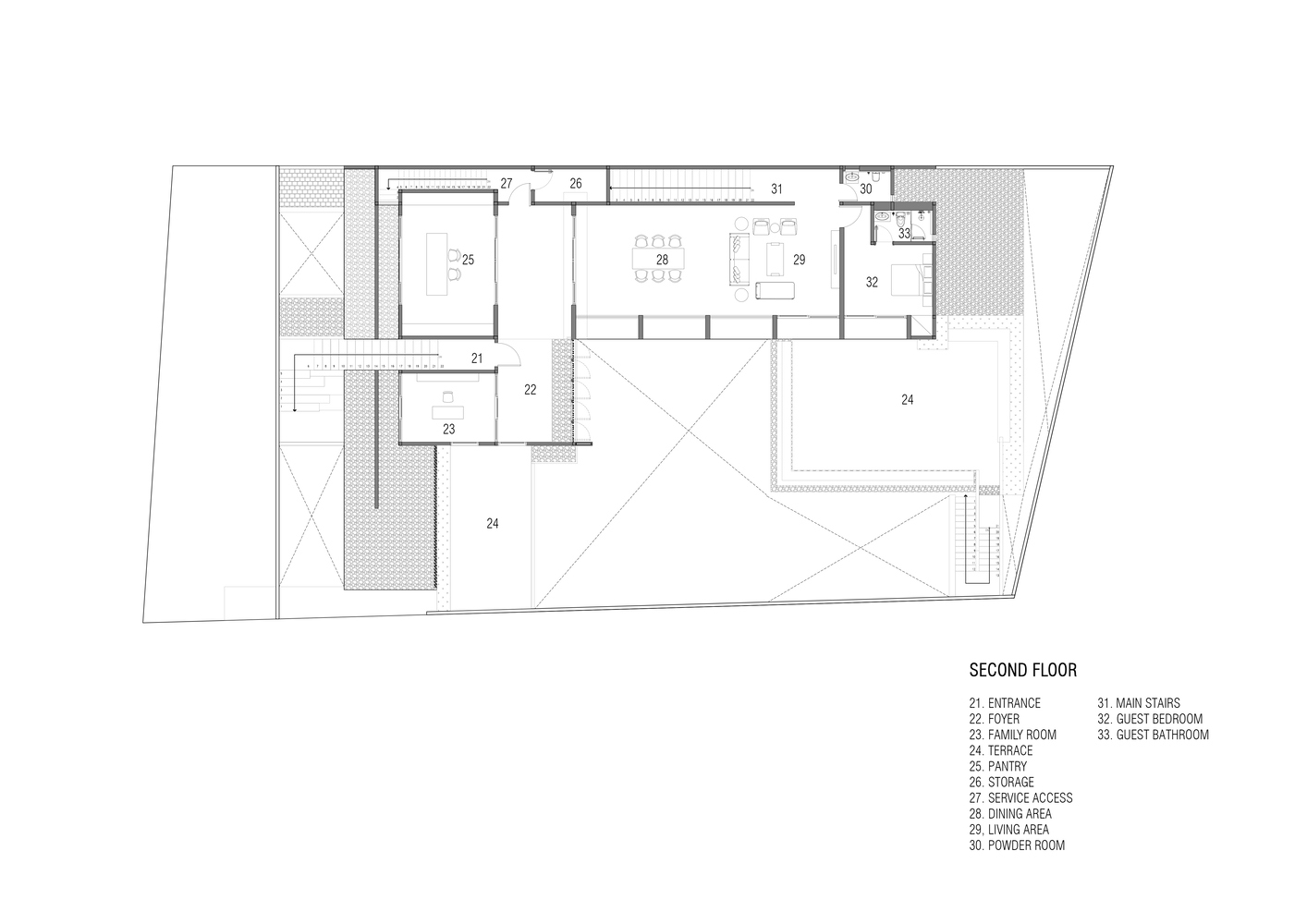
Grey Palace鄉村別墅位於印度尼西亞日惹市的郊區。被稻田包圍,這使得景觀成為這所鄉村別墅的主要焦點。這所鄉村別墅由兩層組成,分為公共區域和私人區域。廚房、餐廳和客廳三個主要區域位於二樓,而私人區域則位於一樓。二樓公共區域的目的是創造一個戶外露台生活,讓人們能夠以更高的視角體驗周圍的景色。盡管公共區域位於二樓,但主入口設計有一個門廳,作為公共和私人通道之間的過渡。
這座鄉村別墅的設計專注於創造熱帶大地色調的元素,如木材、石頭和混凝土。由於它的位置,立麵設計有堅實的元素,為別墅提供隱私和安全。進入私人區域後,有一個庭院,是為一個種滿許多熱帶植物的大草坪設計,還有一個遊泳池,作為這所別墅的吸引力。遊泳池被設計成通過室外樓梯連接到公共區域。
第二條被設計為公共區域的通道可以從通往主入口的長樓梯進入。當我們進入別墅時,有一個門廳連接著儲藏室、工作室和服務通道。起居-用餐區設計為開放式布局,透明元素使人們可以欣賞周圍的景色。
∇ 一層平麵圖
∇ 二層平麵圖
版權聲明:本站所有文章除投稿授權發布外,其他文字內容均為原創,享有著作權保護,未經許可不得以任何形式進行轉載(包括且不限於:媒體、網站、公眾號等)。所有項目照片/設計圖形版權歸原作者所有。本站部分內容源自網絡公開資源或用戶分享,如若侵犯了原作者的合法權益,可聯係我們進行處理。






























