2021疫情下的世界,高度文明的現代都市突然一下回溯到原始的荒野,安靜的城市下,沙沙的風聲從樹葉中穿梭而過,鬆鼠們跳躍在斑馬線之上,流動的植物生機盎然生長。無法想象在當下的城市,文明與荒野的自然如此的貼近,而人們卻渾然不知。這些強烈的深刻記憶,是行走在西湖KNOWIN時候傳達給我們的畫麵。
Our civilized world went back to the ancient wild duringCovid-19, the quiet city, the wind blow thtough leaves, all plants growing withoutnoticed , animals occupy the city again. It is acutally the first time that naturegetting so close to the city , and the boundary in between city and naturebecoming so blur.
“荒野探索”是我們這次概念的主題,在文明與荒野之間不斷跳躍,時而是機械化的現代文明,時而是屹立永久的荒野大地。在文明與荒野中探索,不斷探索找尋契合自己的文明生活方式。潮服 / 潮鞋 /潮玩 / 畫廊 / 聯名咖啡 /都是空間中蘊含的元素。
Exporing the nature is the concept of this project,we put the nature and civilized word adjacent to each other, machanical elements and natural materials mixed and co-existed in this space. Streetcultures products will be displayed in this mixed space. People are welcome to come in and search for their life style. Street culture fashion, sneakers, toys, geallry and cross over coffee will co-exist in this space.
85米的沿街外立麵,如同展開的大地卷軸。我們用燈光線條來模擬荒野大地的裂紋隨機性,輕輕的訴說著,不要溫和地走進那個良夜,勇敢去開闊跟探索。
The 85 meters facades stands for the land cracking and encourages us to come inthe store.
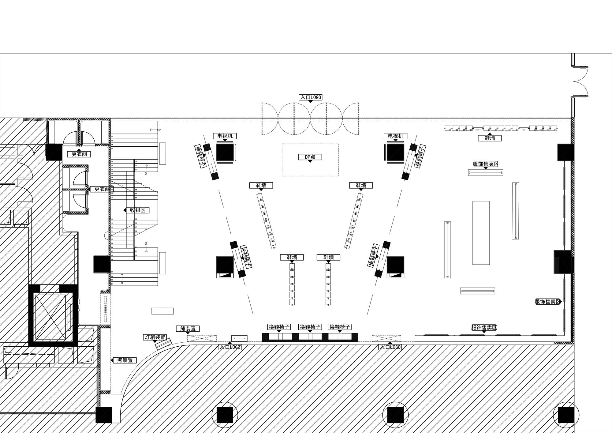
一層空間長方形空間形成三個區域,“荒野大地”,“銜接之地”,“機械文明”。荒野大地是展示不同的潮服,道具采用岩石的連綿不斷,風化後的橫截麵凹凸不平,服裝飄動其中,等待潮人們的挖掘。大的展區道具結合回字形的劃分。形成空間的探索趣味性。
The first floor has 3 parts , the wildland, the connecting and themachanical world, they stand side by side and wait for us to explore. The wildland designed for clothes display, everything here will be like “weathered stones”with a loop circle.
銜接之地如同洞穴之間的十字通道,連接各個區域的中心軸。作為球鞋的展示售賣,產品琳琅滿目,應有盡有。
The connecting is the corssroad, sneakers will be displayed here. Transparency is important to stimulate customers’curisity.
機械文明作為潮玩 / 收銀 / 更衣間的集合之地,采用穿孔的泡沫鋁,綠色的木紋主題色來傳達自然的文明機械感。在綠意盎然的魔幻更衣間中,玩味反射不斷變化的身影。在不斷的銜接跟對比場景中,希望空間再次激活人與人,人與物,空間與物之間的銜接性,這種堅硬跟不斷變化的柔軟也是潮流本身帶有的蓬勃生命。
The machanical world designed for toys, reception and fittingroom, green dyed veneers and aluminum foam mixed use in this space, We try to imagine a way highly developed machinical civilation co-existing with nature.
∇ 平麵圖
項目信息
客戶 | Client:KNOWIN
項目地址 | Location: 杭州市,湖濱88 | Hubin88, Hangzhou
項目麵積 | Project area:400㎡(店內)1000㎡(外立麵改造) | 400㎡ (store)1000㎡(Facade)
項目類型 | Project Type:新零售空間設計 | New-Retail Design
設計內容 | Design scope:室內設計、道具設計、外立麵改造設計 | Interior design,Display design, Facade intervention
設計周期 | Design period:2021.11 — 2021.12
施工時間 | Construction period:2021.11—2022.01
設計團隊 | Team:楊添堡,孫誌偉,褚夫豔,王鵬一,毛天怡,謝誠儒 | Yang Tianbao, Sun Zhiwei, Chu Fuyan, Wang Pengyi, Mao Tianyi, Ru Chen
合作團隊 | Cooperating Team:上海境季建築裝飾工程有限公司 Topin Design 上海尚格建築裝飾設計有限公司 ShangGe Design
材料 | Material:泡沫鋁板,木紋染色,藝術塗料,天鵝絨,陽極氧化鋁板, 鏡麵不鏽鋼, 地磚及岩板 | Aluminum foam, Dyed Veneer, Paints, Velvet, Anodized Aluminum, Polished SS. Tiles . wayflor 編織地毯
攝影師 | Photographer:陳灝 | Chen Hao






























