總部位於悉尼的時尚零售商Above The Clouds已在 Surry Hills 的 Crown Street 上一個顯眼的街角選址。由零售愛好者和全能巨星——Pattern Studio設計的室內空間呈現出一係列相互協調的矛盾。 2021 年,雖然許多悉尼時裝零售商的大門仍然緊閉,但在雲端之上的導演 Dimitri Calligeros 和 John Paul Wager 正在製定一個有點獨特的 Covid 應對措施。“在普遍的不確定和恐懼中,兩人正在升級,” Pattern Studio 的 Josh Cain 和 Lily Goodwin 解釋道。“ Above The Clouds 的在線銷售正在蓬勃發展,盡管這座城市正處於長期封鎖之中,但他們還是抓住了一個占據更大零售空間的機會。” Calligeros 和 Wager 在 Josh 和 Lily 的幫助下,讓他們的新實體店煥然一新。
新的裝修是為了反映獨立品牌的演變,同時至關重要的是忠於其起源。“以‘Above The Clouds’並不完全適合任何一個類別、風格或流派這一事實為榮,設計反應需要說明品牌日益增長的信心和成熟度,”兩人說。 新店在適當時尚的環境中充當新的和更高端的係列的盡職管理人,不會恐嚇或疏遠任何忠實的客戶群。
圖案巧妙地將品牌的魅力和獨特性轉化為空間體驗。新的內飾展現了對二元性的探索——看似不同的概念和諧共存,產生了一種新鮮而誠實的美感。 這家商店給人一種既精致又原始、放鬆的感覺,既散發出青春活力,又散發出挑剔的精致。細節在某些領域是基本的,而在其他領域則非常光滑,而材料調色板將超工業與俏皮並列。 腳手架、鋼帶和鬆木等飾麵出現在活潑的粉彩平麵旁邊;眼鏡櫃中的黃油黃色和天藍色的銷售點櫃台參考了日本玩具品牌 MediCom 的 Bearbrick 的歡樂色彩。
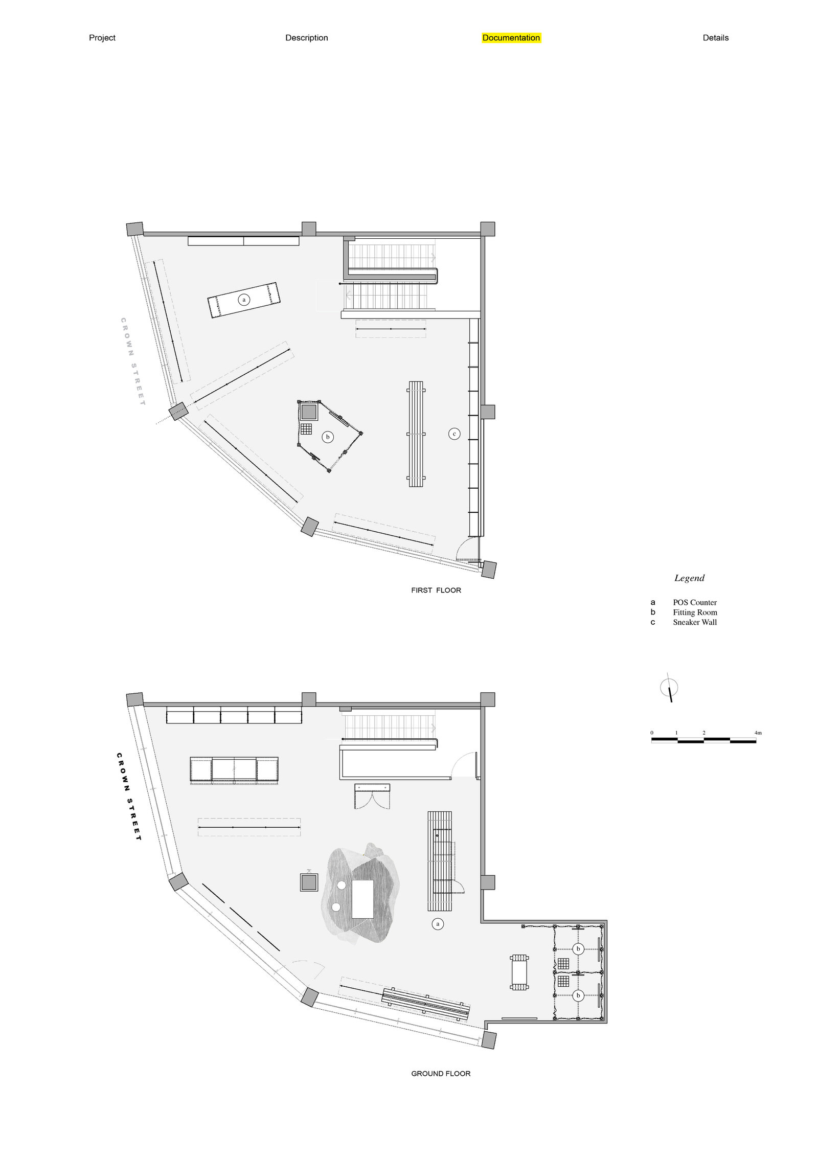
然而,這家商店的亮點無疑是 Sneaker Wall。對一些人來說,運動鞋文化與宗教信仰密切相關。Pattern 融入了這個概念,為鞋子構想了一個適當的虔誠聖地。巨大的牆壁跨度八米,發出柔和的光芒,以寧靜的優雅展示產品。Josh 和 Lily 說:“從體驗上看,這一舉措更像是畫廊或寺廟,而不是傳統的零售店。” 廣闊而超凡脫俗的展示旨在贏得即使是最虔誠的運動鞋愛好者的喜愛。 看到避免嚴格分類、限製和不靈活標簽的品牌越來越受歡迎,這令人耳目一新,但也許並不奇怪。雲之上代表了新一波零售商,其包容的態度和前瞻性的思維方式受到消費者的好評。他們端莊時尚的新空間是任何對當下、獨立時尚和創意文化感興趣的人的天堂——無論是年輕人還是內心年輕的人。
∇ 平麵圖
































