項目位於日本神奈川縣相模灣的逗子海岸住宅區,ROOVICE事務所為一對夫婦翻新了他們的公寓。盡管這裏隻是多層住宅中的一個單元,但一進入室內,鄰裏的存在感就完全消失了。這種效果歸功於住宅的特殊形狀,它提供了直接私人的專有景觀,給人帶來被大自然擁抱的體驗。
為此,第一步便是將廚房沿走廊方向移動以拓展客廳,壓縮交通空間,通過客廳的水平長窗引入海灣的壯麗景色。
能夠欣賞海灣景色的客廳大開窗成了公寓最鮮明的特色。改造旨在將其打造為家庭核心來突出強調這一優勢。由於客廳和入口分別位於公寓的兩端,讓客廳成為進入室內時最先遇到的空間成了項目最大的挑戰。
服務房間沿走廊兩側的網格布置,臥室和朝北的工作室都擁有自己的窗戶,可以看到建築的公共空間。衛生間、浴室和廚房儲藏室位於平麵的中間,有助於在睡眠區和起居區之間形成明顯的分隔。
設計旨在創造一個盡可能清爽透氣的空間,賦予住宅更多的沿海氛圍。將所有內牆漆成白色的簡單手法是達成目標的重要策略之一,對天花板高度的增加進一步完善了室內空間。改造後,房間和走廊都留下了白色未完成的天花板,電子線路和管道元件自然地暴露出來。
室內綠化與周邊自然環境的融合至關重要,客廳的葉子植物通過其天然的綠色質感在舒適的室內和野生的室外間形成了良好過渡。作為呼應,吊燈采用生動的綠色電線,使人聯想起植物的樹枝。
翻新工程的最後一個重要地方是客廳一角的飄窗,這裏設計了一個可以躺下來感受風景的區域,為整個生活帶來放鬆舒適的感覺。
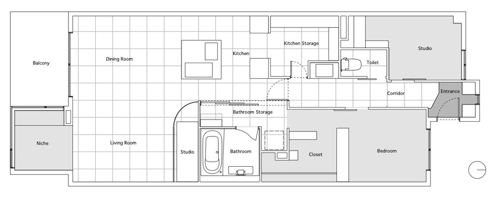
∇ 平麵圖
版權聲明:本站所有文章除投稿授權發布外,其他文字內容均為原創,享有著作權保護,未經許可不得以任何形式進行轉載(包括且不限於:媒體、網站、公眾號等)。所有項目照片/設計圖形版權歸原作者所有。本站部分內容源自網絡公開資源或用戶分享,如若侵犯了原作者的合法權益,可聯係我們進行處理。


























