葫蘆裏裝___? What’s in the Hulo?
HULOHULO意為葫蘆,是一個探索東西方文化融合的咖啡品牌,主打創意咖啡、茶酒冰滴,通過咖與酒的組成,融入為品牌特製的組裝式裝置家具,實現更具品牌特色的社交場景。葫蘆是一個充滿東方色彩的符號,在古代,葫蘆被視為一個有魔力,能儲存珍貴物品的容器,我們將此作為品牌的符號識別,在葫蘆圖形的運用上去結合火焰的視覺設計,通過動態呈現,體現出「咖啡煉丹爐」的品牌概念,同時也希望葫蘆作為品牌載體能創造出更多新奇內容。未知、新奇、探險是HULOHULO的品牌調性,我們用比擬手法去詮釋精粹後的咖啡文化,希望HULOHULO可以成為眾多咖啡品牌中獨樹一幟的東方品牌。
葫蘆架下生葫蘆 Prospriety Grows inside Hulo
在麵臨場地條規與時間挾製之下,我們提出以「葫蘆架」作為空間概念,基於品牌本身以「煉丹爐」的概念出發,衍生出葫蘆元素,我們將其具像化用「葫蘆架」來構設空間,也是對空間設計的詮釋與回答。
我們理解的「葫蘆架」並不隻是傳統印象中被固定化的架子,它是一個包含拆卸、組合、移動性質的靈動空間,HULOHULO的空間就像一個大的「葫蘆架」,相對常規的空間塑造來說,我們希望能最大程度去「活動」所有物體,不管是其中帶有功能性的吧台及桌椅,還是具有零售功能的展示櫃體,基本結構性的天花等,它們都可以做到被活動和拆卸,這種靈活的運用方式會給空間帶來更多的便利性;一個空間中70%的內容都可以被移動複製到另一個空間中,這種有趣的塑造方式,是我們尋求的,也是在限製條件之內去盡最大可能的滿足項目的需求。
空間中一些比較具象的塑造呈現,例如水吧台與展示櫃體,展示櫃體們就像一個個「煉丹爐」,它就像一個承載工具,我們在這些「煉丹爐」中灌入不同的內容,可以化身為音響裝置,可以成為戶外綠植培養箱,可以收納咖啡豆也可陳列各種器皿,這也是我們點題品牌概念的另一種趣味性體現。
∇ 家具軸測分解圖
做咖啡與生活的解法 Responding Life with Coffee
如果HULOHULO在白晝的屬性是適合商談或愜意放鬆的空間,那夜幕中的HULOHULO則是靈動鮮活的社交場所,用咖、酒鏈接創意及多元化的生活方式,構建出更貼近HULOHULO的品牌氛圍。
除了注重把控出品的質量,我們同樣關注人與人之間的互動感受,通過回訪和交流不斷的提升和輸出產品,完善待客服務與運維好品牌文化,如同品牌標識葫蘆的特點一樣,不斷蔓延、生長及結果,如同「葫蘆藤蔓攀星空,葫蘆腹中有內容」的句子般,以咖、酒為媒介,空間為載體,光臨於此的顧客都是共同建設品牌的參與者。
∇ 空間軸測分解圖
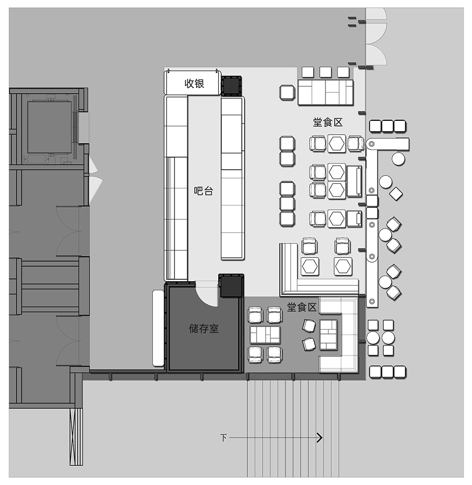
∇ 平麵圖
項目信息
項目名稱:HULOHULO
項目類型:咖啡店
設計方:SORA
項目設計:2021
完成年份:2022
設計團隊:SORA
項目地址:廣東省深圳市南山區萬象天地北區L4層NL412(抱抱象下方)
建築麵積:99㎡
攝影版權:YUAN STUDIO
合作方:SORA:品牌策劃/品牌設計/空間設計 OCD甲古文創意 x IPUN:文創設計
客戶:HULOHULO
材料:水洗石、噴砂不鏽鋼、麻石、榆木
































