我走入森林
因為我想過著
有意識的生活
——湖濱散記
梭羅兩年多的隱居歲月,他剔除一切與生活無關的內容,用最基本的形式,簡單、簡單、再簡單,將起居與心靈逼至無從遁逃的空蕩清澈,由此紮實。
藏於天地,棲於山水
居所藏於天地之間,落在淡水河畔,臨水的詩意使人放下文明世界的凡此種種,專注於純粹、原生的精神。
水相設計以灣流為伴的生活方式,放任自然,滲入性靈。融合臨窗南向的公共區域,從茶室、客餐廳到開放廚房,建築依著宛如河道的曲麵窗景而生。
景色中最豐富的元素
就是有一點天真無邪的陽光
——湖濱散記
為了無邊景致,設計師為了避免布局細碎分割,簡化動線及材質,以廊道轉折、地麵材質劃分屬性。客廳采用組合式的沙發,如溪裏的石,挪動位置便改變水流方向,或歧或散,生活可有意識地轉變或容納,為生活創造無盡的詩意。
將茶室入口格柵拉門平日收進牆裏,舒展成隔屏還能切換直欞錯位關係以改變透視感,豐富空間組合形式。
托身山林
不染聲色的人
是不會幽抑結滯的
——湖濱散記
遊走、沉思、發呆、閱讀,與窗外光影更迭交織成輕柔的散文詩,既淡離城市又隱居河畔,日常毋需僵化邊界,釋放感官,更能體驗深邃的生活滋味。
刻意窄化狹長玄關,黑色地麵更顯曲徑通幽之雅,對比懸浮片牆後一室開闊,自然營造戲劇性擴張流動感。
而壁爐於冬日揚起明澈的焰,靜寂奔舞中藏著若有似無的規律,光是凝視就能淨化世俗雜質,一切隻剩輕靈的專注。
湖泊
是大地最美麗豐富的一部分
它是大地之眼
凝視湖泊
可以量出自己的深度
——湖濱散記
河流意向隱隱約約地滲入空間,建構河景、建築輪廓與室內型態的抽象性,設計師在天花板結構及立麵轉折創造深淺各異的彎折,順應河道和建築曲線安靜流淌,繞過四季晨昏。
以中式木造建築構想層架的鬥栱承托結構,細究十字工字形貌,一文一物、舉折平緩。
墨色細格柵拉門如一層儒雅煙色,維持空間串連卻也朦朧了兩側距離,盈疏有度、淡而不浮。
東方建築語彙亦施展於長軸線上木質立麵,豎向細柱陣列出文化語境,層層遞進,秩序清雅,在節製的構圖中忘卻執著,順其自然,繼而縮短人與居室、生活與水岸自然的精神距離。
為了營造大自然的閑適和諧,設計師選擇色調中性、紋路低調溫暖的材質,使整體明亮平和,再添入細節待人放慢步調,耐心地靠近,慢慢感受。
一片孤寂沉靜
我沉浸幻想
直至西窗日落
或遠處路上傳來遊人的馬車聲
我這才想起時間的忽逝
——湖濱散記
光,抒寫生活的詩章
雨果曾說:“哪裏有陰影,哪裏就有光”。室內開關隔柵使各處皆能賞景迎光,但陰影收斂在旁如沾水筆勾的邊,光有了輪廓、飽滿或銳利,在室內柔和蕩漾或漸弱低迴,像河流潮汐有強弱變化的韻律。
觀察潮汐,讓時間緩慢下來,行走時都帶著冥想般的澄澈,起居坐臥,風起亦無痕,在水天之間解放心緒。
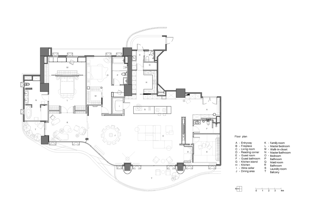
∇ 平麵圖
項目名稱|豐盈海_張宅
空間設計|李智翔、郭瑞文、黃昱誠/水相設計
項目地址|新北市
室內麵積|350㎡
空間格局|客廳、餐廳、廚房、起居室、主臥室、主衛浴、次臥室、次衛浴、茶室、更衣室、客衛、儲藏室、陽台
設計時間|2020.10-2021.05
施工時間|2021.07-2022.02
主要材料|歐洲橡木地坪、鋼刷橡木皮、和紙席、馬鞍皮革、鏽銅漆、手工漆、羅馬白洞石、雪白蒙卡花崗石、印度黑花崗石、水磨石、米色薄板磚
項目攝影|李國民空間攝影事務所
項目視頻|遙空映畫
水相設計
Waterfrom Design
成立於2008年的水相設計跨足室內與建築領域,秉持設計應如『水』的初衷,純淨、有機又多變,本質上保持其原有的簡潔性,意念上展現無框架的可能性。致力關注於空間的故事脈絡及時間光線,創造一個具有情感沉澱及訊息想象的空間。
李智翔
水相設計總監
從事設計迄今十餘年,作品揉和極簡與幽默,畢業自紐約普瑞特藝術學院室內設計碩士與丹麥哥本哈根大學建築研究。帶著藝術、人文、哲學的思考,李智翔的學習養成到執業,有著建築設計般的理性思維,亦有藝術家的叛逆本質,他喜歡在規則的例外對既有秩序重新定義,在不可預知的不準確性下發現驚奇。








































