項目位於杭州濱江的一個老小區內,頂樓複式外加一層閣樓,總麵積223㎡,業主是一對年輕的教師夫婦,養了一隻柴犬。業主的願望非常明確:他們希望這個家能成為一個讓人感到輕鬆、自在的空間,一個讓他們可以盡情享受生活,沒有拘束與束縛的地方。
設計概述
我們嚐試盡量用最直白、簡單的途徑將客戶的所有需求融入到空間的方方麵麵,使之呈現出家的形態。通過簡潔的材質分割,凸顯家的氣質和氛圍。同時最大程度減少空間的阻隔,讓每個時間段的陽光都能勾勒出某個角落的輪廓。
盡管位於五樓,得益於老小區常年生長的綠化,踏進家門的第一眼,便能望見窗外蔥鬱的綠色。為了不破壞窗景的完整性,同時也為了便於日後窗戶的清潔,我們在邊上設置了一個小巧的隱蔽窗,默默地服務這片綠意之間。
柴犬和它的樂園
初次前往客戶住處溝通的時候,我們發現家中的小狗迅速且熟練的躲到了茶幾底下,隨後的溝通中得知它生性膽小,見到生人就會躲起來,並且暗中觀察。隨著交談的深入,我們得知這對業主在附近的學校擔任教職,偶爾會邀請一些同事和朋友到家中小聚,同時,他們也希望平日裏餐廳能保持整潔寬敞的狀態,於是便有了柴犬和它的多功能樂園。
∇ 餐廳的多種形態
狗狗樂園隧道由10把凳子以及餐邊櫃底部的空間組成,日常可以把凳子都收起來,保持餐廳整潔寬敞。
∇ 狗狗樂園隧道
玄關
下沉式的玄關,獨立但不封閉,一進門,向右可一覽廚房的全貌,直至望向窗外。向左,則透過懸空層板的間隙,可以感受到客廳落地窗灑進來的陽光。
廚房和餐廳
我們將餐廚空間設置成了家中的咖啡館,設有吧台、長桌以及寬敞的飄窗卡座,一應俱全。清晨的第一杯咖啡,夜晚的一杯香茗,都能在此享受到輕鬆愜意的時光。
客廳和書房
從餐廳穿過樓梯旁的過道,來到客廳和書房所在的空間,沙發從中間作為兩個區域的分隔,角落裏的電視,更多時候扮演著播放空間背景音樂的角色,女主人喜歡在坐在寬敞的書桌前記錄著她的“人類觀察日記”,再邊上的洞洞板牆麵則掛著男主人最心愛的網球拍。
書桌前的窗戶,同樣充滿了綠意,閱讀寫作的間隙,時不時可以瞥一眼窗外的風景。
傍晚,陽光透過一樓衛生間的窗戶,灑在地麵,幾乎要爬上客廳的東牆。
二樓公區
二樓的氛圍會顯得更為寧靜,空間相對獨立,主臥和未來的兒童房都設於此層,另外一間較小的房間則做成了多功能式的榻榻米房。由於整棟房子的衛生間都不算寬敞,且一樓沒有設計臥室,我們因此將一樓的衛生間省去了淋浴設施。為此,我們將二樓的衛生間進行了三分離設計,確保各功能區域可以同時使用,也提升了衛生間的舒適性。洗衣、烘幹等功能全部放到了北麵的陽光房。
樓梯間麵積較狹小,三邊又都是高牆,為了讓樓梯間顯得通透明亮,我們在榻榻米房和主臥的牆麵分別開了玻璃窗,緩解樓梯間的壓抑感和昏暗感。
我們把二樓原本起居空間的一部分做成了獨立的淋浴間,淋浴間沒有把窗戶全部包進去,留下了一道縫隙,方便陽光隨時鑽進來。
臥室
兩個臥室都配備了寬敞的步入式衣櫃,充分滿足日常衣物和床品的整齊收納需求,保持了空間的整潔和井然有序。臥室隻用了純淨的白色與溫暖的木色,沒有多餘繁瑣的造型,營造寧靜舒適的休息環境,讓人感受到寧和輕鬆的氛圍。
步入式衣櫃立在主臥和樓梯間之間,我們在衣櫃頂部前後都設置了長條窗,使得主臥良好的采光得以滲透到衣櫃和樓梯間。
在項目進入軟裝階段時,正值業主們的暑假假期。他們希望更多地參與到家的落地過程中,於是我們設計了一係列包括梳妝台、床頭櫃、狗窩等榫卯結構的家具。我們精心繪製了詳細的組裝說明,將家具加工成板件的形式。最終,業主們親自動手,將這些家具組裝完成。
∇ 家具組裝說明
房子主要通過新風係統實現空氣的流通,兒童房的窗戶采用了整麵定玻的設計,擁有更好的視野和安全性。
畫室
閣樓的整個空間作為女主人的畫室,原本頂麵的結構、保溫、防水等基礎功能都保持完好,重新刷上白漆,打上一整排的收納櫃,再放上可移動的畫桌和邊櫃,一個極具氛圍感的創作空間就完成了。累了便可以到外麵鋪滿碎石的露台小憩。
我們根據坡頂的高度來設置了收納櫃的深度,避免撞到低矮區域的天花板。
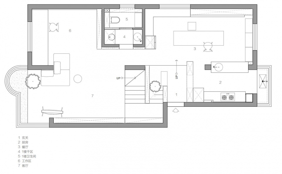
∇ 一層平麵圖
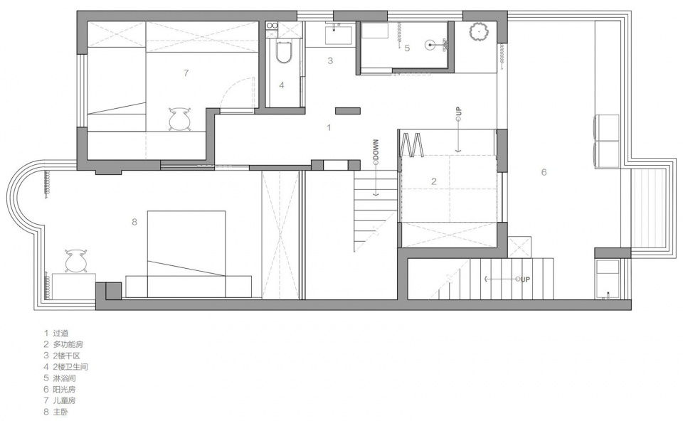
∇ 二層平麵圖
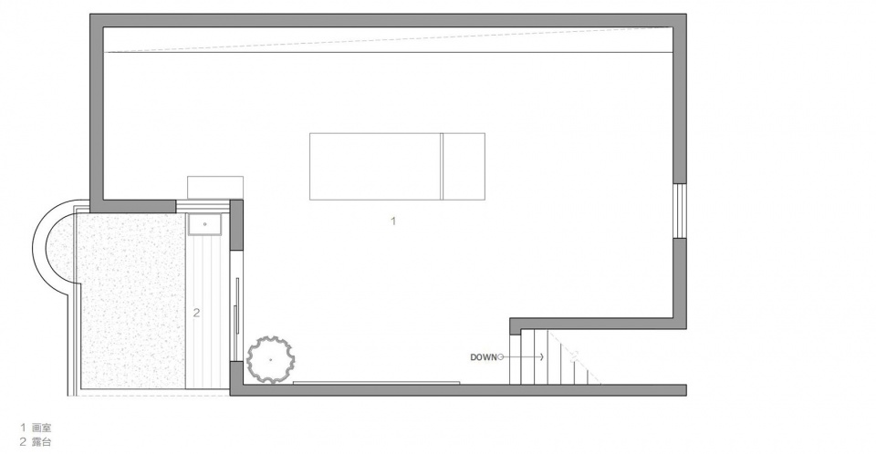
∇ 閣樓平麵圖
項目信息
項目名稱:之江公寓老房改造
設計方:大不了地設計工作室
項目設計:2022.5
完成時間:2023.9
主持設計:王成
設計團隊:王成,王喻孺
項目地址:杭州濱江
項目麵積:223㎡
攝影版權:洪江平
材料:樺木膠合板,不鏽鋼,瓷磚,木地板,塗料
品牌:野口勇,宜家,MUMO木墨


















































