arredo 愛樂多 X 西安
全新一代沉浸式設計體驗中心
西安厚重,人文亦藝術,古都昔日璀璨的雕塑藝術完全可以媲美菲迪亞斯時代。
Xi’an is thick, humanistic and artistic. The brilliant sculpture art of the ancient capital in the past can be comparable to that of the Phidias era.
arredo的優雅與韻致,既是源自那個遙遠時代的理念之美,也生長自當代藝術勃勃生機之中,而 art-inside 的新表達方式在作為arredo品牌的西安首店大概就猶如入口的THE FOUTH PLINTH表達一樣,同樣在張望著古都的新碰撞。
arredo’s elegance and charm are not only derived from the beauty of ideas in that distant era, but also from the vitality of contemporary art. The new expression of art inside in Xi’an’s firststore as arredo brand is probably like the expression of the foot plot at the door, also lookingforward to the new collision of the ancient capital.
Humanity & Order
“空間,作為氛圍的發生場,除了人文就是秩序”
“Space, as the occurrence field of atmosphere, is order in addition to humanity”
“我們希望塑造融合與獨立之間的平衡”,在未跨入arredo西安店的那一刻,我們希望創造一種謙虛的優雅,讓適當的視覺觸發感知,知性,發現潛在詩性。
“We hope to shape the balance between integration and independence”. At the moment before entering arredo Xi’an store, we hope to create a modest elegance, so that appropriate vision can trigger perception, intellectuality and discover potential poetry.
入口的閉與合,立麵的高度對比與人本的協調,以及被稱之為“灰度空間”的深度比例,並延續至完整的生活空間,完成了參觀的移動動圖與空間靜態和諧,並感知人文與品牌的關切。正如意大利雋永藝術文藝複興時期的建築對於20世紀末期的中北部的藝術影響一樣,並延續至今。
The closure and integration of the entrance, the height contrast of the facade and the coordination of humanism, as well as the depth ratio of what is called “gray space”, and continued to the complete living space, completed the mobile dynamic map and static harmony of the space, and perceivedthe concerns of Humanities and brand.
Art Space
–
“我們寄希望於愛琴海的湛藍與西西裏島的陽光能讓你在片刻忘記些什麼”
“We hope that the blue of the Aegean Sea and the sunshine of Sicily can make you forget something in a moment.”
“我們確實在數數中忘記了煩惱,當站著這裏我把弄不清的都交給了康德”
“We really forgot our troubles here. When standing here, I handed over all the confusion to Kant.”
livingroom
我們當前的任務一點不少於生活本身,因為一切都圍繞著讓具體的形式開口表達。
—— H.施拉德
Our current task is no less than life itself, because everything revolves around the expression of specific forms.
—— H. Schrader
正是這樣子一個理念讓西安店的設計從生活周圍徐徐展開,“自從在清涼的廊下有了一張凳子,才發現遠處的風景可以慢慢欣賞”。漸漸的淡雅與濃烈擺滿了懸掛客廳邊櫃,靜待佳人小酌;錯落有致的書香飄自具有藝術氣質的組合書架,隨手捏來的靈魂交流。
It is this idea that makes the design of Xi’an store slowly expand from around life。”Since I had a stool under the cool corridor, I found that the scenery in the distance can be enjoyed slowly.”
Cloakroom
–
藝術的本質是生活的真相,家具的使命便是不停的幫助我們揭露真相,art-inside在arredo身上不是一句slogan,而是猶如Inigo jones對於Palladianism意大利風格的追求,充滿意式浪漫氣質的衣帽間,期待您在與家具的交流中與自己的藝術涵養不斷共振。
The essence of art is the truth of life, and the mission of furniture is to constantly help us reveal the truth. Art inside is not a slogan in arredo, but a cloakroom full of Italian romantic temperament, just like Inigo Jones’ pursuit of Palladianism Italian style. We look forward to your continuous resonance with your artistic self-cultivation in your communication with furniture.
Social kitchen
The powerful functional convenience and natural artistry are particularly true in arredo’s kitchen furniture, so that a good kitchen can carry all life dreams and immerse life in art.
Project Overview
arredo的意式極簡為空間塑造詩性,並與您一起擴展時間。
arredo Italian minimalism creates poetry for space and expands time with you.
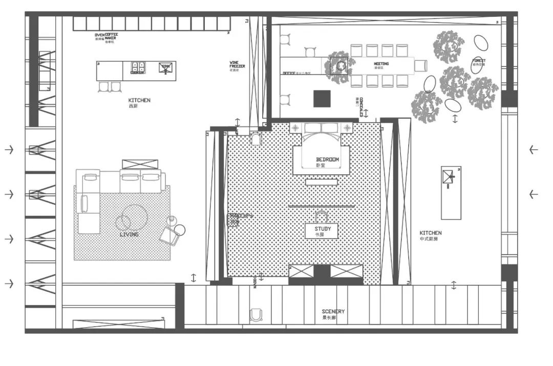
∇ 平麵布置圖
INFO
項目坐標 / 中國 · 西安
Project Address / China Xi’an
項目麵積 / 330㎡
Project Area / 330㎡
主創設計 / Nick
設計團隊 / arredo 蘇州設計中心
Design Company / arredo Design Department
軟裝設計 / 周海生
項目攝影 / 項目視頻 | 周海生












































