Prime Seafood Palace (PSP) 位於西皇後區的中心地帶,是遠離加拿大人口最多的城市–多倫多繁華街道的美食天堂。
PSP 被想象成一座光線充足的木質大教堂,襯在一座原本不起眼的現有磚砌建築內,融入了城市的肌理。這是對 Omar Gandhi Architect (OGA) 住宅工作的改進並將這種嚴謹性貫徹到這個商業項目中。
主要目標是創造一個永恒的空間,不受潮流影響,使用當地的天然材料。使用木材和燈光進行設計是設計的起點。主要由白色楓木和黃銅組成的中性材料調色板為主要空間創造了背景 – 加拿大廚師 May Matheson 樸實無華但非凡的食物。PSP 的設計還受到 May 的東海岸根源以及對日本和斯堪的納維亞建築的啟發。May 的職業生涯始於多倫多著名的法國小酒館 Le Select,這有助於他了解美食世界。
PSP 發現 May 回到了他在 Le Select 最初磨練的廚房基本原則——餐廳的菜單反映了對經典牛排館原則的崇敬,並以非凡的克製呈現。餐廳的采購、技術和菜單展示了他們有意提升經典牛排館概念的方式,在該概念中,產品與肉類和海鮮一樣受到尊重。這是通過使用當地農場的櫻桃木烹飪、從 May 自己的 Blue Goose Farm 采購產品、安大略省的牛肉和大西洋的海鮮來實現的。簡而言之,食物的新鮮度和質量是餐廳的明星——以直截了當的方式呈現。
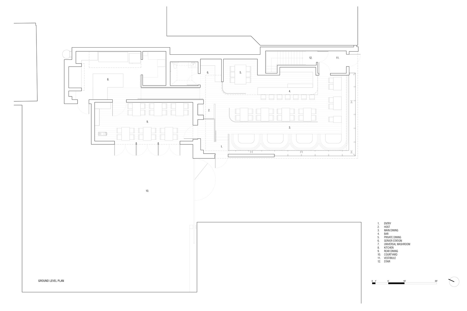
PSP 出乎意料 – 一個真正親身體驗的空間。主入口位於一個安靜的庭院中,將顧客從皇後街西熱鬧的城市活動中吸引了出來。進入主餐廳後,顧客會看到一個從屋頂懸掛下來的兩層木板拱頂。一片覆蓋著木頭的雲層沿著餐廳的長度延伸,過濾了間接的自然光,在室內營造出明亮的氛圍。垂直的黃銅屏風過濾來自街道的活動,以提供隱私和親密感,同時保持與街景的柔和連接。
OGA 與 Coolican & Company 合作定製家具,包括帶有隱藏抽屜的大型展台桌,用於放置來自法國 Thiers 的餐廳 Perceval 牛排刀。Coolican 的特別版楓木“Edwin 椅子”結合了黃銅主軸,以參考整個主要用餐空間的黃銅屏風。
May 和他的團隊與 OGA 在空間設計、細節開發以及產品和飾麵的選擇方麵密切合作。這一合作過程包括參觀磨坊工人的商店以查看拱頂和展位的全尺寸模型,以及參觀 Coolican 的工作室以測試定製家具。
主用餐區的橡木地板沿著緩坡延伸至開放式概念廚房,讓您可以一窺才華橫溢的烹飪團隊在開放式燃木壁爐上烹飪的內部運作。
∇ 平麵圖



































