所學隔山海,山海皆可平;
翻閱書海,不忘初心。
項目概況 Project overview
多麼工作室受委托為書一設計其蘇州分店-書一·山海集自習室。項目位於蘇州市姑蘇區石路商圈,老城區有著悠久的曆史文化氛圍:不管是百年石路、山塘街、觀前街,還是護城河環繞的西園寺宇,這裏的一磚一瓦都是曆史的見證。同時,石路商圈又是現代文明飛速發展的親曆者,步行街和商業廣場為老城區增添了濃濃的煙火氣息,新的高樓大廈拔地而起,年輕的人群讓它重煥青春。一靜一動,一老一新,反差的衝擊如此強烈,讓人不禁感歎,卻又沉浸於他們的完美融合,和諧統一。
生活就像是盒子裏的巧克力 Life is like a box of chocolates
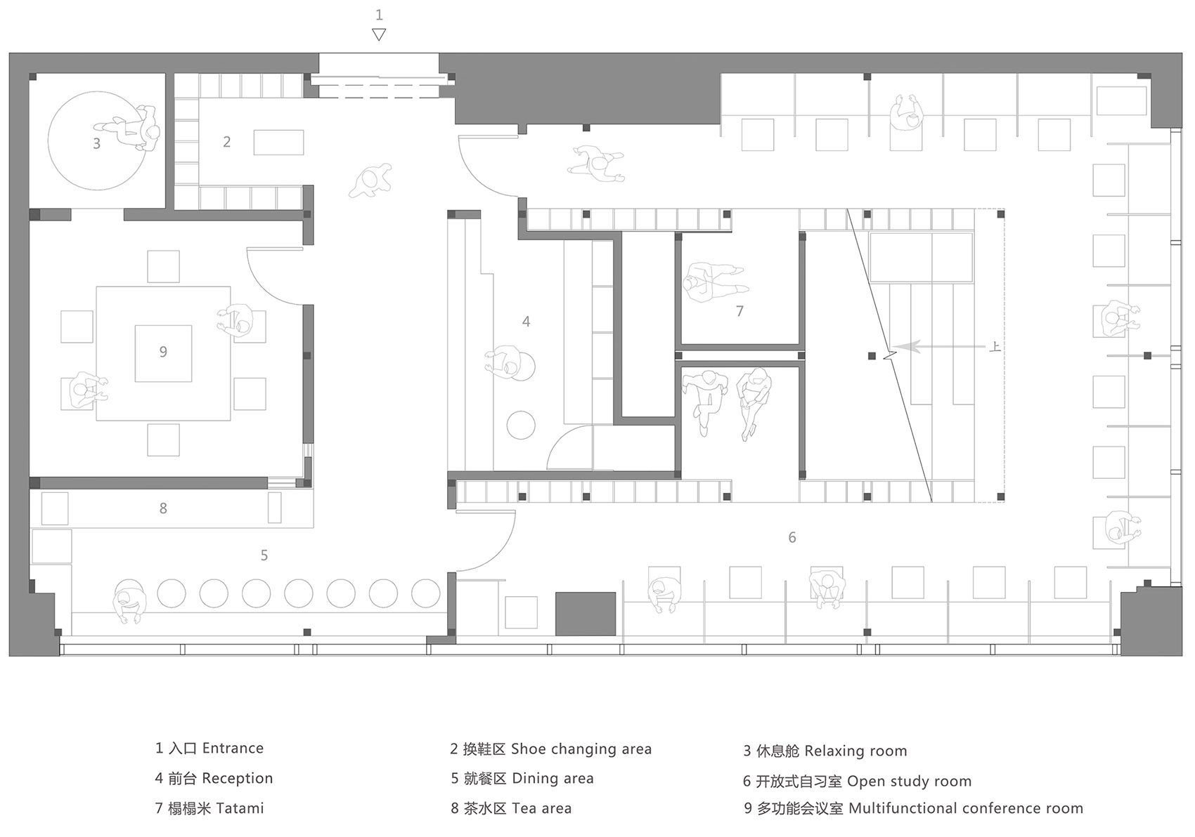
我們將項目分為前區(接待區)和後區(自習區)。進入到自習室,首先映入眼簾的是明亮接待區,這個區域包含著換鞋、儲物、前台、就餐、會議室幾個功能區塊。我們在前台的設計裏加入了一個個可開啟的儲物櫃,每一個格子好像待人開啟的巧克力盒子,你可以從中取出任何賦予學習的動力。
平行空間 Parallel universes
推開木門進入學習區,兩側被朦朧的陽光板遮蔽,隻能看到用功學習的背影和遠方藍色的天際。半透明的隔斷是兩個座位之間的分割線,也是連接點。在各自隔斷內自習的人如同兩個平行空間裏的人,看似沒有交集,卻又做著一件相同的事情。連續的半開放隔間陣列成有序的組件,光透過陽光板將空間渲染成層疊的書頁,一層一層,一頁一頁,與光同塵,與影同伴。
虛即是實 Virtual is real
開放自習區多以半透明的材質渲染出明亮且開放的空間氣質,沉浸區則以溫暖的多層板營造靜謐深沉的氛圍,兩種不同氣質的材質在空間裏碰撞,虛實結合形成鮮明對比,人、空間、活動、環境和諧而統一。少量的材質,很少的細節,半透明的質感,虛空的氣質,這是我們對於純粹空間的理解和追求。虛空並不代表“無”,而是無中生有,正因為容器是空的,所以才能盛放物體,一無所有中蘊含著所有。
登高遠眺,視野越來越清晰 Aim high and look far
室內空間是一個規則的長方體,5.3米的建築層高要分為兩層空間會稍顯壓抑,於是我們將中央區域的二層樓板打開,植入一個大台階,以台階為中心連接上下兩層,極大地消除了層高不足的壓抑感。大台階作為交通空間的同時,也兼具了休閑的功能,使用者可以坐在台階上休息、看書、遠眺、放鬆。我們有意將大台階以東西方向布置,順著台階向上,翻越山丘式的半透明體塊,可坐可立,遠方的視野越來越清晰。坐在台階上麵朝東側城市景觀,遠處是蘇州高新區的地標性建築,近處是老城區的蘇式住宅。在不同高度的台階上看到的是不同的風景,眼前是煙火氣息的生活日常,遠方是眾星拱月的夢想山巔,人生亦是如此。夜幕降臨,台階下的小屋點亮暖意,輕聲翻閱書籍,裹一條毛毯,沉浸在自由和夢想的懷抱裏。
∇ 一層平麵圖
∇ 二層平麵圖
項目信息
項目名稱:書一·山海集自習室
設計方:多麼工作室
設計時間:2021年
建成時間:2022年
主創建築師 :王維、盛樂
設計團隊:顏菲、豆會會
項目地址:蘇州,中國
建築麵積:220㎡
攝影版權:SongImage

































