隨時隨地,自然而然。
go anywhere,go anytime。
gogoland位於惠州野島文化社區,這裏飽含曆史感的建築環境與宜人的公共空間,其獨特的地理位置對品牌創立具有決定性意義。Informal異規設計通過設計將人寵陪伴與天然環境緊密相連,創造一間以寵物樂園為主題的自然社交空間。
用少量的綠色點綴整體空間氛圍,活潑的品牌色像葉子一樣散落在空間各個角落。從進入空間的那一抹綠色開始,寵物的爪印就是創作靈感的原點,不規則地呈現在各處,像寵物歡樂奔跑落下的每一爪空間印記。
∇ © 張超
而品牌輔助圖形圓形則作為空間線索,應用在門把手、防撞條、導視牌、寄養間的換氣孔等空間細節上,蔓延始終。
∇ Icon © 異規設計
∇ © 張超
∇ © 駱駝牌工作室
原始建築前身是黃酒廠的員工宿舍樓,建築周圍被老式居民樓環繞。經園區改造後,長期閑置作為電動車臨時停放處。在建築內側有一塊沒有被植被覆蓋的場地,與周邊的蒼天大樹呼應形成一個巨型的綠色穹頂,創造了幾近完美的天然自然環境。設計團隊希望將自然引入室內,在建築和自然之間創造出無邊界的體驗。
∇ 原始場地照片 © 王盛
∇ © 張超
將原始建築牆麵進行拆除,西南側的過道與東北側的院落連接成一片完整的戶外公園。將核心功能房間向內收縮,從而形成由內向外擴展的連廊通道,地麵向外延伸,將自然引入室內,無形中擴展了建築體量。
∇ © 張超
利用空間入口處坡道逐漸遞減的高差,結合建築外立麵的窗景變化,視線由高及低,由窄變寬,從近至遠,營造出進入空間前的儀式感,激發著空間與街道的自然聯結與親密互動。
∇ © 張超
光影隨著時間軌跡推移,柔和的走進室內,給這個社區空間帶來舒適與溫暖。臨街麵飄板挑簷向外延伸,結合街道的坡度高差,形成了新的半戶外空間。而挑簷向內延伸,結合裸露的梁柱,將室內營造出戶外感。
∇ © 張超
空間入口內退形成一個U形門廳,創造了一個標誌性的停留入口,緩衝了入口與坡道的關係,正麵是寵物社交空間入口,左側是寵物服務空間。為了滿足多元的空間功能布局和營業時間,設計團隊圍繞右邊柱子設計了3個門,不同的組合開啟對應不同的營運需求,同時滿足了人寵對空間與時間的需求。
∇ © 張超
將所有功能間打造成兩個長方形盒子,內外連貫的獨立盒子不僅包容了吧台、後廚、儲物間、寵物酒店,還集合了貓咪洗護美容間、狗狗洗護間、狗狗美容間、寵物布草間。
∇ © 張超
將臨街的盒子立麵設計成樂園接待處和寵物歡迎點,形成包容開放的社區感。而盒體之外則保持場地的原始狀態,回歸自然樣貌。
∇ © 張超
盒體之外結合玻璃輔助劃分空間功能,將寵物社交空間與寵物服務空間完全分離,但在視覺上相互聯係,整體空間明亮開敞又相對獨立,使每一間房間都能享受到自然的采光和通風,與周圍建築和自然建立和諧關係。
∇ © 張超
∇ © 王盛 & © 張超
∇ © 張超
寵物社交空間兩端被大片玻璃及折疊玻璃門所包裹,將這些玻璃門完全推開,相鄰的花園立刻為室內活動區域蔓延舒展,將人寵引入靜謐的花園深處。在院子中庭的古老大樹和搖曳的樹影陽光下享受自在的快樂人寵時光。
∇ © 張超
保留原始建築的表皮肌理,以水泥混凝土地麵和臨街的灰色水洗石牆麵相呼應,讓室內溫暖的海洋板牆麵和幹淨的白色肌理漆完美糅合。這些材料的巧妙選用不太容易被人發現,仿佛是生長於老房子之上,坐落於植被之中,被陽光包裹著。
∇ © 張超
∇ © 王盛
∇ © 張超
與此同時,因時間推移而自然風化的肌理,則進一步增強了建築質感,以和諧的方式還原當地的曆史原貌,讓所有建築材料以自然狀態呈現,創造出一種雅致的簡約感。
∇ © 張超
空間上的家具細節打造為初次來到這裏的寵物提供安全感,靠牆的固定座位用燈柱支撐,將座位下方空間留給小狗,安撫其來到陌生空間的情緒狀態。而長凳下方的懸空設計,是為了僅可能減少對寵物玩耍的阻礙,提供給寵物停留的足夠自由度。
∇ 家具圖 © 異規設計
所有的活動家具特意增強自重,四條腿的正方形桌子穩定性極強,給予人在空間工作與用餐的安心,桌角還預留了可以栓狗的貼心小配件。
∇ © 張超
椅子被設計成一個小窩,下方可以結合亞克力盒子,將小貓小狗臨時寄住的座位下兩側,分別設計可以栓狗和放杯子的小配件,椅背則可以前後調整角度,兩邊靈活就坐。
∇ © 張超
明亮自然的空間、柔和斑駁的氛圍和友好的功能設計,揉合出美妙的空間體驗,作為一個不斷探索人寵社交新生活的寵物樂園,gogoland滿足了當代人寵不斷尋找的理想社區模樣。
∇ © 張超
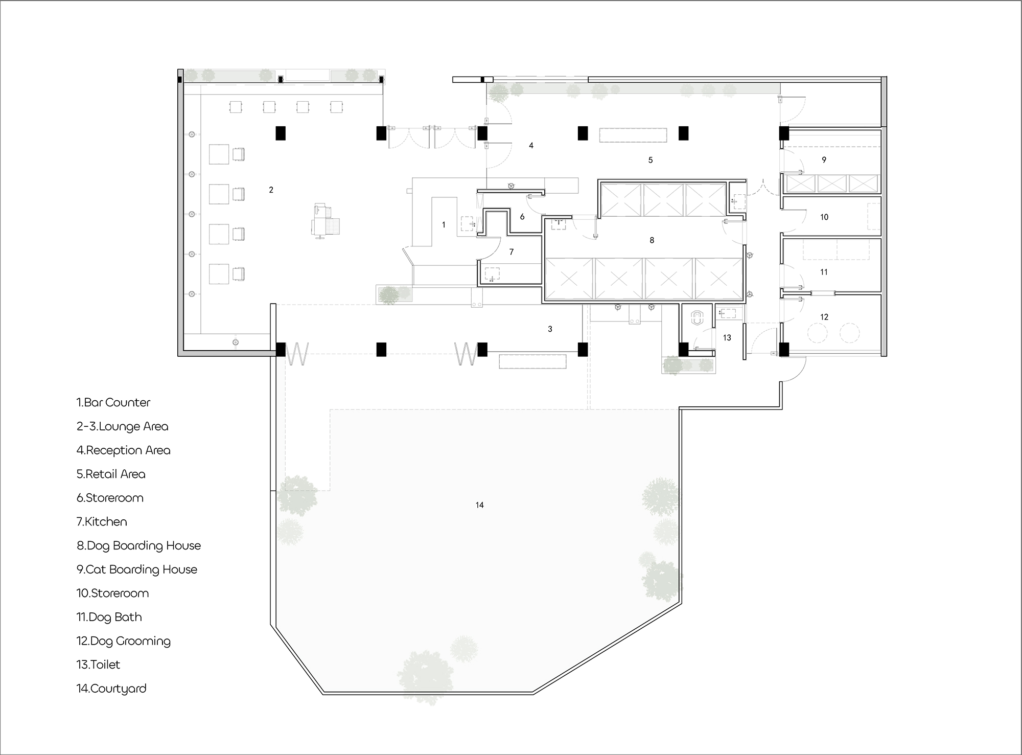
∇ 平麵圖 © 異規設計
∇ 立麵圖一 © 異規設計
∇ 立麵圖二 © 異規設計
∇ 軸測圖 © 異規設計
項目信息
項目名稱:gogoland
項目業主:gogoland
項目類型:人寵社交空間
設計公司:Informal異規設計
設計內容:品牌、視覺、空間、家具
空間設計:王盛、林樹彬、王傑、陳子龍
平麵設計:鄭晶、劉彥宏、符靖
品牌策劃:sumi huang、黃文琪
項目設計:2023年7月-2023年8月
完成年份:2023年10月
項目地址:廣東惠州
建築麵積:300㎡
施工單位:深圳市钜深建設有限公司
攝影版權:張超
























































