這間陽光、輕鬆氛圍的辦公室體現了國際谘詢公司 Accuracy 的獨特企業形象:是 L’Abri 通過設計的精致工作空間。建築師們以Maison Accuracy 的規範為基礎,為員工和訪客提供溫暖而寬敞的辦公室。
按照其設計-建造方法,L’Abri 和 Construction Modulor 的團隊從項目的最早階段就參與了為這家歐洲谘詢公司的蒙特利爾新辦事處尋找理想地點的工作。在遠程辦公的熱潮促使許多公司減少工作區域的時候,Accuracy 做出了進軍更大空間的大膽選擇。建築師應用基於公司運營的分析方法,提出了一種基於靈活性、舒適性和公共空間創建的新布局模型。
離開市中心的塔樓選在蒙特利爾老城,Accuracy 選擇了一個充滿個性和曆史的地方,這給建築師們帶來了強烈的啟發。無論是仔細地將新材料與原來的磨坊地板天花板分開,還是使用胡桃木和石灰灰泥等天然材料,該設計都突出了這座建於 1868 年的前倉庫的建築遺產,其擁有堅固的磚石牆、木結構和鋼結構。由兩個巨大的天窗覆蓋,形成內部庭院,寬敞的種植空間沐浴在自然光中,為其注入了獨特的個性和卓越的空間品質,室內建築將其空間感再次放大。
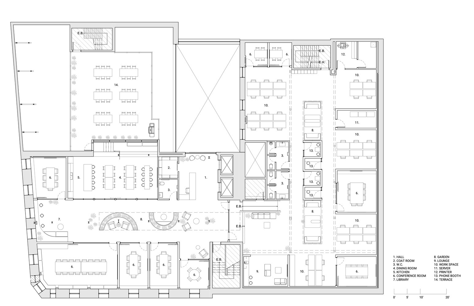
∇ 平麵圖
版權聲明:本站所有文章除投稿授權發布外,其他文字內容均為原創,享有著作權保護,未經許可不得以任何形式進行轉載(包括且不限於:媒體、網站、公眾號等)。所有項目照片/設計圖形版權歸原作者所有。本站部分內容源自網絡公開資源或用戶分享,如若侵犯了原作者的合法權益,可聯係我們進行處理。





























